Bénéficiez des services de nos partenaires locaux soigneusement sélectionnés
pour vous accompagner dans votre parcours d'achat immobilier

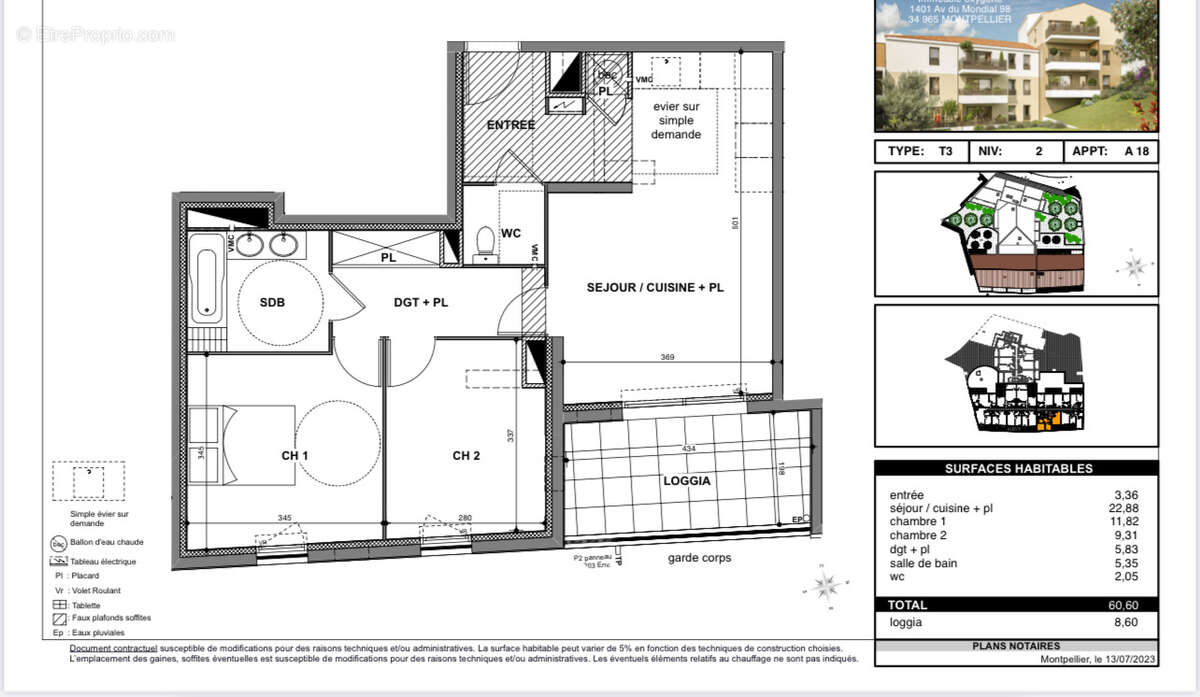
Nîmes quartier mont duplan appartement t3 60m2

— Nimes 30000 —
208 802 €
60 m²
3 pièces
parkingbalcon/terrasse

Nos partenaires locaux
NIMES- QUARTIER MONT DUPLAN A 8 minutes à pied de l'écusson , dans une résidence securisee Appartement de type T3 de 60m2 au 2eme étage comprenant un séjour avec une cuisine donnant sur une belle terrasse de 8,60m2 exposé est sans vis à vis , deux chambres ,une salle de bains et un wc. Ainsi qu’un emplacement de parking privatif en sous-sol.
TVA 5.5 % sous conditions de resources et résidence principale
Pour tous renseignements complementaires ou visite veuillez contacter: Jessica ANDRIEUX [Coordonnées masquées].- Agence AMJ IMMO
Voir plus

Honoraires à la charge du vendeur.
Barème des honoraires

Prêt immobilier

Vous souhaitez connaître votre capacité d’emprunt et trouver le meilleur crédit immobilier ?
Réaliser une simulation gratuite

Appartement à NIMES
Appartement à NIMES
Appartement à NIMES
Ce site est protégé par reCAPTCHA la Politique de confidentialité et les Conditions d’utilisation de Google s’appliquent.
Obtenir un prêt immobilier au meilleur taux ?

En poursuivant votre navigation sans modifier vos paramètres, vous acceptez l'utilisation de cookies susceptibles de réaliser des statistiques de visite. Cliquez ici pour plus d'informations