Bénéficiez des services de nos partenaires locaux soigneusement sélectionnés
pour vous accompagner dans votre parcours d'achat immobilier

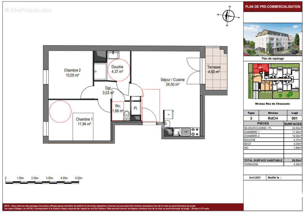
Appartement neuf angers t3 55.55m²

— Angers 49000 —
248 700 €
56 m²
3 pièces
parkingbalcon/terrasseascenseur

Nos partenaires locaux
ANGERS SUD: Calme et qualité caractérisent cette petite résidence élégante composée de 21 appartements et idéalement desservie par les bus, notamment la ligne TCSP 3 qui rejoint le coeur d'Angers en 8 minutes, A VENDRE beau type T3 neuf de 55.55 m² situé en rez de jardin intérieur dans cette résidence à l'architecture contemporaine comprenant un séjour cuisine de 24.50 m² ouvert sur une terrasse de 4.50 m² exposée Sud et deux chambres de 11.94 m² et 10.05 m². Une salle d'eau de 4.37 m² , un WC séparé et une place de parking privative en sous sol complètent les lieux, le tout à quelques minutes à pied de plusieurs commerces dont une pharmacie, une boulangerie, une supérette et un bureau de presse facilitant le quotidien. idéal investisseur Pinel ou Résidence principale Label Energie: RT2012 Prix: 248 700 euros (Frais de notaire réduits à 2.5% environ) (Prix direct promoteur, pas de frais d'agence pour nos clients acquéreurs) REF: 35716VC-001-32 Informations auprès Gwénaëlle GROU , 07 72 41 01 29 spécialiste Immobilier Neuf, Centre-ville d'Angers, quartiers de la Gare, la Madeleine, Doutre, Lafayette, Visitation, place du lycée, Quinconce, Saint Léonard, Jeanne d'Arc et du Lac de Maine, Belle-Beille, Avrillé, Saint Barthélemy ... pour trouver votre solution immobilière en Résidence principale ou secondaire, LMNP, Location, Gestion immobilière. "Les informations sur les risques auxquels ce bien est exposé sont disponibles sur le site Géorisques : www.georisques.gouv.fr" Copropriété de 21 lots - dont 21 lots habitation.(Pas de procédure en cours).
Voir plus

Bien en copropriété. Nombre de lots : 21.
Honoraires à la charge du vendeur.
Barème des honoraires

Prêt immobilier

Vous souhaitez connaître votre capacité d’emprunt et trouver le meilleur crédit immobilier ?
Réaliser une simulation gratuite

Appartement à ANGERS
Appartement à ANGERS
Ce site est protégé par reCAPTCHA la Politique de confidentialité et les Conditions d’utilisation de Google s’appliquent.
Obtenir un prêt immobilier au meilleur taux ?

En poursuivant votre navigation sans modifier vos paramètres, vous acceptez l'utilisation de cookies susceptibles de réaliser des statistiques de visite. Cliquez ici pour plus d'informations