Bénéficiez des services de nos partenaires locaux soigneusement sélectionnés
pour vous accompagner dans votre parcours d'achat immobilier

Appartement 319m² à guingamp

— Guingamp 22200 —
397 250 €
319 m²
14 pièces

Nos partenaires locaux
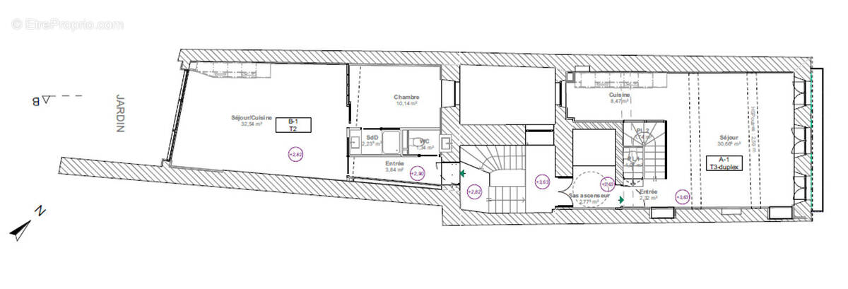
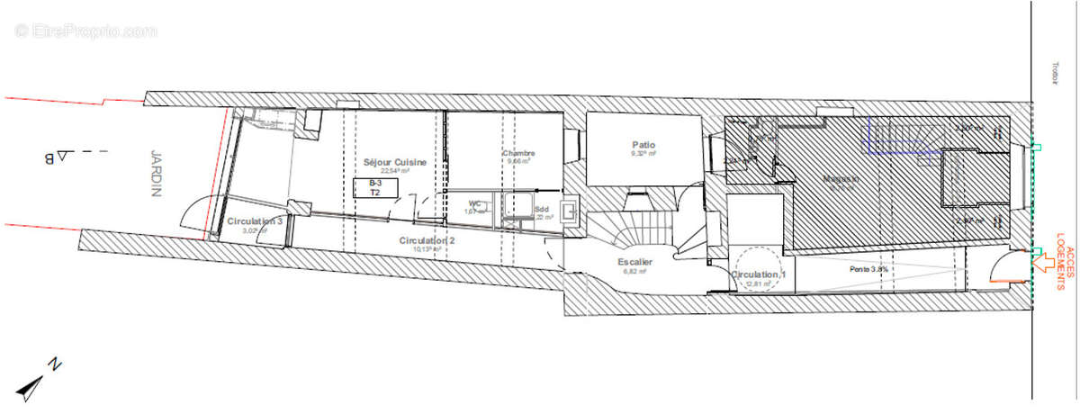
22200 - GUINGAMP - BRETAGNE - HYPER CENTRE - IMMEUBLE de RAPPORT 473 m²+ TERRAIN CONSTRUCTIBLE 400 m² - PERMIS DE CONSTRUIRE VALIDÉ

Efficity le leader des estimations en ligne vous propose cet immeuble situé en plein cœur de CENTRE VILLE pour PROMOTION ou INVESTISSEMENT en déficit foncier.

L'immeuble bénéficie d'une TOITURE NEUVE, d'une rénovation de charpente et la démolition a été réalisée. Il est à aménager entièrement.

Il comprend un local commercial actuellement LOUÉ avec un BAIL COMMERCIAL ( 750 €/mois) et 6 PLATEAUX à aménager.

Le PERMIS de CONSTRUIRE est VALIDÉ pour 5 APPARTEMENTS de standing avec ASCENSEUR. Il est possible de réaliser deux autres lots supplémentaires.

Prévu dans le permis de construire :
Un T3 duplex 88 m2 ( peut être redivisé)
Un T4 Duplex 80 m2 (peut être redivisé)
Un T2 Duplex 53 m2
Un T2 50 m²
Un Studio 35 m²

De plus, un JARDIN PRIVATIF et CONSTRUCTIBLE de 400 m2 complète ce lot idéal pour INVESTISSEUR ou MARCHAND de BIENS.

La vente par plateau ou en VEFA serait envisageable.
Les informations sur les risques auxquels ce bien est exposé sont disponibles sur le site Georisque : georisques. gouv. fr
Jean-Bernard Gautron - EI - est Agent Commercial mandataire en immobilier, immatriculé au Registre Spécial des Agents Commerciaux du Tribunal de Commerce de Rennes sous le n°753518919.
Siège social du mandant : effiCity, 48 avenue de Villiers - 75017 PARIS - Société par Actions Simplifiée, société au capital de 132 373,05 euros, immatriculée au RCS Paris 497 617 746 et titulaire de la Carte professionnelle CPI 75[Coordonnées masquées]02 025 - CCI Paris IDF - Caisse de Garantie : GALIAN Assurances 89 rue de la Boétie 75008 Paris
Voir plus

Référence: 174880
Honoraires d'agence de 4.82% à la charge de l'acquéreur
Barème des honoraires
DPE
A
B
C
D
E
F
G
GES
A
B
C
D
E
F
G

Prêt immobilier

Vous souhaitez connaître votre capacité d’emprunt et trouver le meilleur crédit immobilier ?
Réaliser une simulation gratuite

Appartement à GUINGAMP
Appartement à GUINGAMP
Appartement à GUINGAMP
Appartement à GUINGAMP
Appartement à GUINGAMP
Appartement à GUINGAMP
Appartement à GUINGAMP
Appartement à GUINGAMP
Appartement à GUINGAMP
Appartement à GUINGAMP
Appartement à GUINGAMP
Appartement à GUINGAMP
Appartement à GUINGAMP
Appartement à GUINGAMP
Appartement à GUINGAMP
Appartement à GUINGAMP
Appartement à GUINGAMP
Appartement à GUINGAMP
Ce site est protégé par reCAPTCHA la Politique de confidentialité et les Conditions d’utilisation de Google s’appliquent.
Obtenir un prêt immobilier au meilleur taux ?

En poursuivant votre navigation sans modifier vos paramètres, vous acceptez l'utilisation de cookies susceptibles de réaliser des statistiques de visite. Cliquez ici pour plus d'informations