Bénéficiez des services de nos partenaires locaux soigneusement sélectionnés
pour vous accompagner dans votre parcours d'achat immobilier

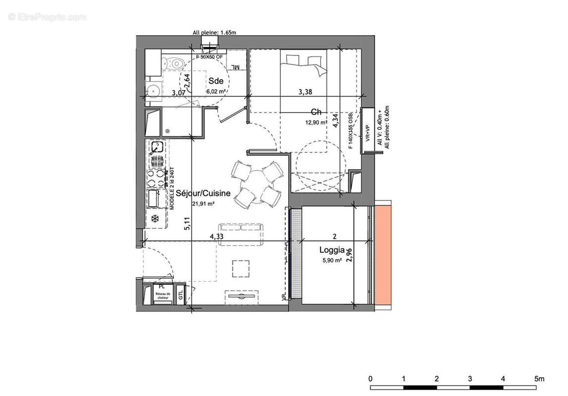
Appartement t2 - 41m2 - loggia - parking - 234 000

— Angers 49100 —
234 000 €
41 m²
2 pièces
parkingascenseur

Nos partenaires locaux
APPARTEMENT T2 - 41m2 - LOGGIA - PARKING - 234 000 euros Appartement T2 de 40,83m², au 3ème étage d'une résidence, exposé Sud-Ouest avec un loggia de 6m² donnant ainsi qu'une place de parking en sous sol. Adresse : RUE HENRIETTE BICARD, 49100 - ANGERS Disponible le 4ème trimestre 2025 Offre spéciale : 5 000 euros de REMISE par pièce. Idéal 1er achat : TVA réduite à 5.5% et Prêt à Taux Zéro Prix direct promoteur, pas de frais d'agence supplémentaire. Bien situé entre la place Ney et le futur grand quartier « Quai Saint-Serge ». Un emplacement fonctionnel à la lisière du quartier de la Chalouère, avec son Parc (à 650 m) et la Place Ney avec ses nombreux commerces. Parfaitement connectée au centre-ville grâce aux transports en commun, la résidence profitera de la future ligne B du tramway avec l'arrêt « Allonneau-Dunant » qui sera à moins de 8 min à pied et l'arrêt de bus « Vaillante » (ligne 10) au pied de la résidence. Pour des déplacements doux, de nombreux locaux à vélo sont mis à votre disposition. Accès direct à l'A11 et aux voies sur berges. La proximité immédiate avec le futur grand quartier d'Angers « Quai Saint Serge » comprenant la nouvelle patinoire, de nouvelles écoles, des bureaux et des logements. Achetez votre premier appartement en cumulant les avantages. La résidence se situe au coeur d'un projet de rénovation urbaine offrant la possibilité aux acquéreurs de bénéficier de prix très attractifs et d'une TVA réduite sous conditions. Cumulez cet avantage avec le Prêt à Taux Zéro, une aide de l'État vous permettant d'augmenter votre budget. Les informations sur les risques auxquels ce bien est exposé sont disponibles sur le site Géorisques : www.georisques.gouv.fr Tobias GABORIAU (EI) Agent Commercial - Numéro RSAC : 901144790 - Angers.
Voir plus

Barème des honoraires

Prêt immobilier

Vous souhaitez connaître votre capacité d’emprunt et trouver le meilleur crédit immobilier ?
Réaliser une simulation gratuite

Appartement à ANGERS
Appartement à ANGERS
Appartement à ANGERS
Appartement à ANGERS
Ce site est protégé par reCAPTCHA la Politique de confidentialité et les Conditions d’utilisation de Google s’appliquent.
Obtenir un prêt immobilier au meilleur taux ?

En poursuivant votre navigation sans modifier vos paramètres, vous acceptez l'utilisation de cookies susceptibles de réaliser des statistiques de visite. Cliquez ici pour plus d'informations