Commerce 113m² à orvault

— Orvault 44700 —
342 285 €
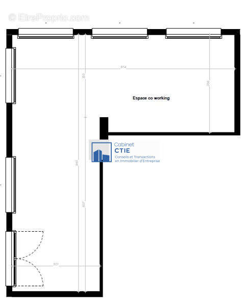
113 m²
parkingascenseur

Nouveau Bien ! Nantes / Orvault Route de Vannes, dans un ensemble immobilier à destination mixte, commerce et habitation, soumis au régime de la copropriété.

- Un local commercial à vendre, livraison fin 2026, d'une surface de 113 m². Le local est livré brut de béton, fluides en attentes, menuiseries extérieures posées et une place de stationnement en sous-sol.

- Au sein d'un nouveau quartier en pleine création, voisin de commerces moteur, environnement commerçant et d'habitation, Accès périphérique proche.

Le prix de cession est de 322 911 € hors taxes, hors honoraires d'intermédiation et hors droits d'enregistrement.

Les honoraires d'intermédiation à la charge de l'acquéreur sont de 6 % HT du prix d'acquisition net vendeur HT soit 13 374 € HT exigible à la signature de l'acte authentique.

Honoraires inclus de 6% à la charge de l'acquéreur. Prix hors honoraires 322 911 € HT. Dans une copropriété de 200 lots. Aucune procédure n'est en cours. Non soumis au DPE. Les informations sur les risques auxquels ce bien est exposé sont disponibles sur le site Géorisques : georisques.gouv.fr.

Votre conseiller Cabinet CTIE : Cedric LE GOFF
Agent commercial (Entreprise individuelle)
RSAC 2024AC00023
Voir plus

Référence: V24CLG31744E-STEVENEPIE
Bien en copropriété. Nombre de lots : 200.
Honoraires d'agence de 6% à la charge de l'acquéreur

Prêt immobilier

Vous souhaitez connaître votre capacité d’emprunt et trouver le meilleur crédit immobilier ?
Réaliser une simulation gratuite

Commerce à ORVAULT
Commerce à ORVAULT
Commerce à ORVAULT
Commerce à ORVAULT
Ce site est protégé par reCAPTCHA la Politique de confidentialité et les Conditions d’utilisation de Google s’appliquent.
Obtenir un prêt immobilier au meilleur taux ?

En poursuivant votre navigation sans modifier vos paramètres, vous acceptez l'utilisation de cookies susceptibles de réaliser des statistiques de visite. Cliquez ici pour plus d'informations