Bénéficiez des services de nos partenaires locaux soigneusement sélectionnés
pour vous accompagner dans votre parcours d'achat immobilier

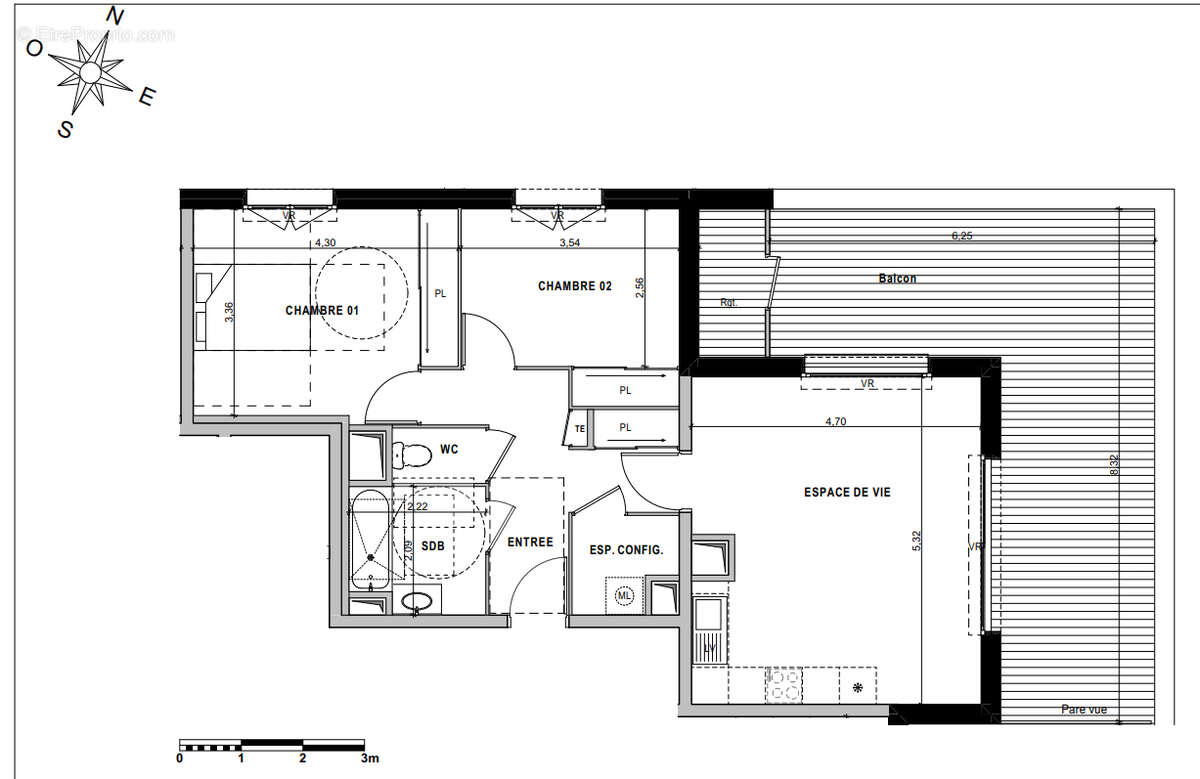
Attique sciez 3 pièces 65.59 m2

— Sciez 74140 —
366 900 €
65 m²
3 pièces
balcon/terrasseascenseur

Nos partenaires locaux
La plage à 7 minutes à vélo, commerces à 3 minutes à pieds, idéal pour résidence secondaire ou principale.
Ce T3 de 65 m² situé au dernier étage offre une entrée, un séjour-cuisine ouvert sur une terrasse de 33 m², deux chambres, une salle de bain et un wc.
L'accès à l'ensemble est entièrement sécurisé, et l' appartement est doté de prestations de qualité et bénéficie d'une place de parking intérieur et une place de parking extérieur ainsi que d'un cellier.
Des parties communes facilement accessibles et aux dernières normes de construction viennent compléter cet ensemble.

Disponibilité au 2ème trimestre 2027

Autres configurations de distribution interne possibles, me contacter pour plus d'informations. Photos non contractuelles.

Pour visiter et vous accompagner dans votre projet, contactez Jérôme BLANDIN-SIKLI, au [Coordonnées masquées] ou par courriel à [Coordonnées masquées]
Selon l'article L.561.5 du Code Monétaire et Financier, pour l'organisation de la visite, la présentation d'une pièce d'identité vous sera demandée.

Cette présente annonce a été rédigée sous la responsabilité éditoriale de Jérôme BLANDIN-SIKLI agissant sous le statut d'agent commercial immatriculé au RSAC thonon les bains 483844122 auprès de la SAS PROPRIETES PRIVEES, au capital de 40 000 euros, ZAC LE CHÊNE FERRÉ - 44 ALLÉE DES CINQ CONTINENTS 44120 VERTOU; SIRET 487 624 777 00040, RCS Nantes. Carte professionnelle Transactions sur immeubles et fonds de commerce (T) et Gestion immobilière (G) n° CPI 44[Coordonnées masquées]10 388 délivrée par la CCI Nantes - Saint Nazaire. Compte séquestre n°3[Coordonnées masquées] BPA SAINT-SEBASTIEN-SUR-LOIRE (44230) ; Garantie GALIAN - 89 rue de la Boétie, 75008 Paris - n°28137 J pour 2 000 000 euros pour T et 120 000 euros pour G. Assurance responsabilité civile professionnelle par MMA Entreprise n° de police 120.137.405

Mandat réf : 393 266. - Le professionnel garantit et sécurise votre projet immobilier.
Copropriété de 54 lots - dont 54 lots habitation. ().

Charges annuelles : 1000 euros.
Jérôme BLANDIN-SIKLI (EI) Agent Commercial - Numéro RSAC : thonon les bains 483844122 - .
Voir plus

Référence: 393266BSJ
Bien en copropriété. Nombre de lots : 54. Charges de copropriété : 83 €.
Honoraires à la charge du vendeur.

Prêt immobilier

Vous souhaitez connaître votre capacité d’emprunt et trouver le meilleur crédit immobilier ?
Réaliser une simulation gratuite

Appartement à SCIEZ
Appartement à SCIEZ
Appartement à SCIEZ
Appartement à SCIEZ
Appartement à SCIEZ
Appartement à SCIEZ
Appartement à SCIEZ
Appartement à SCIEZ
Ce site est protégé par reCAPTCHA la Politique de confidentialité et les Conditions d’utilisation de Google s’appliquent.
Obtenir un prêt immobilier au meilleur taux ?

En poursuivant votre navigation sans modifier vos paramètres, vous acceptez l'utilisation de cookies susceptibles de réaliser des statistiques de visite. Cliquez ici pour plus d'informations