Terrain 927m² à saint-germain-au-mont-d'or

— Saint-Germain-Au-Mont-D'or 69650 —
490 000 €
927 m²

69650 SAINT-GERMAIN-AU-MONT-D'OR - TERRAIN 927 M² AVEC PERMIS DE CONSTRUIRE -
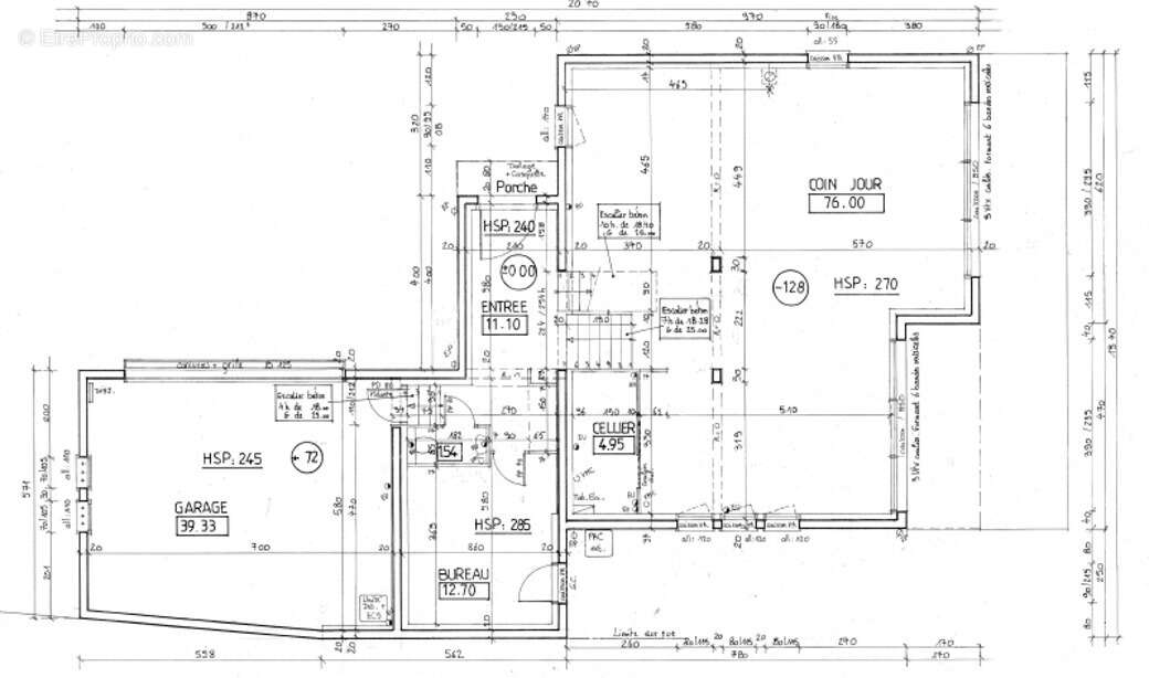
Efficity, l'agence qui estime votre bien en ligne vous propose ce beau terrain de 927 m², sur les hauteurs de Saint Germain au Mont d'or. Avec cette parcelle, un permis de construire déposé et accepté, vous offre la possibilité de faire une maison de 180 m² sur deux niveaux avec garage attenant de 40 m².
Sur ce plan, au rez-de-chaussée, vous trouverez une pièce de vie de 76 m², un cellier et un bureau ou première chambre de plus de 12 m², un WC séparé et le garage.
A l'étage, une suite parentale de 23 m² avec chambre salle de bains et dressing, 3 chambres de 12 m², une seconde salle de bains, un WC séparé et une buanderie.
Le tout sur une parcelle qui sera viabilisée.
Située à 20 kms de Villefranche-sur-Saone, 30 kms de Lyon de, 14 min de Limonest, 40 min de l'aéroport de Saint Exupéry.
Les informations sur les risques auxquels ce bien est exposé sont disponibles sur le site Georisque : georisques. gouv. fr
Adeline Gicquel - EI - est Agent Commercial mandataire en immobilier, immatriculé au Registre Spécial des Agents Commerciaux du Tribunal de Commerce de Bourg-en-bresse sous le n°808061444.
Siège social du mandant : effiCity, 48 avenue de Villiers - 75017 PARIS - Société par Actions Simplifiée, société au capital de 132 373,05 euros, immatriculée au RCS Paris 497 617 746 et titulaire de la Carte professionnelle CPI 75[Coordonnées masquées]02 025 - CCI Paris IDF - Caisse de Garantie : GALIAN Assurances 89 rue de la Boétie 75008 Paris
Voir plus

Référence: 170022
Honoraires à la charge du vendeur.
Barème des honoraires

Prêt immobilier

Vous souhaitez connaître votre capacité d’emprunt et trouver le meilleur crédit immobilier ?
Réaliser une simulation gratuite

Terrain à SAINT-GERMAIN-AU-MONT-D'OR
Terrain à SAINT-GERMAIN-AU-MONT-D'OR
Terrain à SAINT-GERMAIN-AU-MONT-D'OR
Terrain à SAINT-GERMAIN-AU-MONT-D'OR
Terrain à SAINT-GERMAIN-AU-MONT-D'OR
Ce site est protégé par reCAPTCHA la Politique de confidentialité et les Conditions d’utilisation de Google s’appliquent.
Obtenir un prêt immobilier au meilleur taux ?

En poursuivant votre navigation sans modifier vos paramètres, vous acceptez l'utilisation de cookies susceptibles de réaliser des statistiques de visite. Cliquez ici pour plus d'informations