Bénéficiez des services de nos partenaires locaux soigneusement sélectionnés
pour vous accompagner dans votre parcours d'achat immobilier

Maison 6 chambres pont-sur-seine

— Nogent-Sur-Seine 10400 —
187 000 €
140 m² / 643 m²
7 pièces
parkingjardin

Nos partenaires locaux
Vous êtes à la recherche d'un pavillon dans un lotissement calme ?
Ne cherchez plus !

Je vous présente "Ruby" ce joli pavillon de 140 m² habitable, situé sur un terrain de 643 m² dans la commune de Pont-sur-Seine à 10 minutes de Nogent-sur-Seine.

Cette maison comprend:

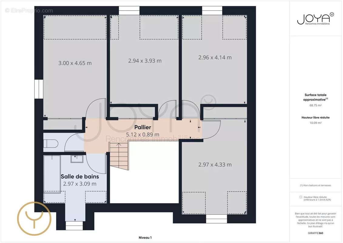
Au rez-de-chaussée: Un salon lumineux de 28 m² offrant un espace de vie harmonieux et élégant pour une famille nombreuse ou des amateurs de confort, une cuisine, un cellier, une salle de douche, un WC et deux chambres.

À l'étage: 4 chambres, un WC et une salle de bains.

Cette maison est également dotée d'un garage intégré, offrant un espace de stationnement sécurisé pour votre voiture, ainsi qu'un jardin offrant un espace de détente où vous pourrez vous ressourcer. Volets roulants électrique dans toute la maison et fenêtres double vitrage PVC.

Ne manquez pas cette opportunité unique d'acquérir une propriété charmante et accueillante, dans un cadre paisible et verdoyant.

Contactez moi dès maintenant pour organiser une visite et découvrir cette belle maison par vous-même. Annonce rédigée sous la responsabilité de E.i Stéphanie MARICOT, agent commercial Joya - Rencontres Immobilières Nogent
Voir plus

Référence: LB17
DPE
A
B
C
D
E
F
G
GES
A
B
C
D
E
F
G

Prêt immobilier

Vous souhaitez connaître votre capacité d’emprunt et trouver le meilleur crédit immobilier ?
Réaliser une simulation gratuite

Maison à NOGENT-SUR-SEINE
Maison à NOGENT-SUR-SEINE
Maison à NOGENT-SUR-SEINE
Maison à NOGENT-SUR-SEINE
Maison à NOGENT-SUR-SEINE
Maison à NOGENT-SUR-SEINE
Maison à NOGENT-SUR-SEINE
Maison à NOGENT-SUR-SEINE
Maison à NOGENT-SUR-SEINE
Maison à NOGENT-SUR-SEINE
Maison à NOGENT-SUR-SEINE
Maison à NOGENT-SUR-SEINE
Maison à NOGENT-SUR-SEINE
Maison à NOGENT-SUR-SEINE
Maison à NOGENT-SUR-SEINE
Maison à NOGENT-SUR-SEINE
Maison à NOGENT-SUR-SEINE
Maison à NOGENT-SUR-SEINE
Maison à NOGENT-SUR-SEINE
Maison à NOGENT-SUR-SEINE
Maison à NOGENT-SUR-SEINE
Maison à NOGENT-SUR-SEINE
Maison à NOGENT-SUR-SEINE
Maison à NOGENT-SUR-SEINE
Maison à NOGENT-SUR-SEINE
Maison à NOGENT-SUR-SEINE
Maison à NOGENT-SUR-SEINE
Maison à NOGENT-SUR-SEINE
Maison à NOGENT-SUR-SEINE
Ce site est protégé par reCAPTCHA la Politique de confidentialité et les Conditions d’utilisation de Google s’appliquent.
Obtenir un prêt immobilier au meilleur taux ?

En poursuivant votre navigation sans modifier vos paramètres, vous acceptez l'utilisation de cookies susceptibles de réaliser des statistiques de visite. Cliquez ici pour plus d'informations