Bénéficiez des services de nos partenaires locaux soigneusement sélectionnés
pour vous accompagner dans votre parcours d'achat immobilier

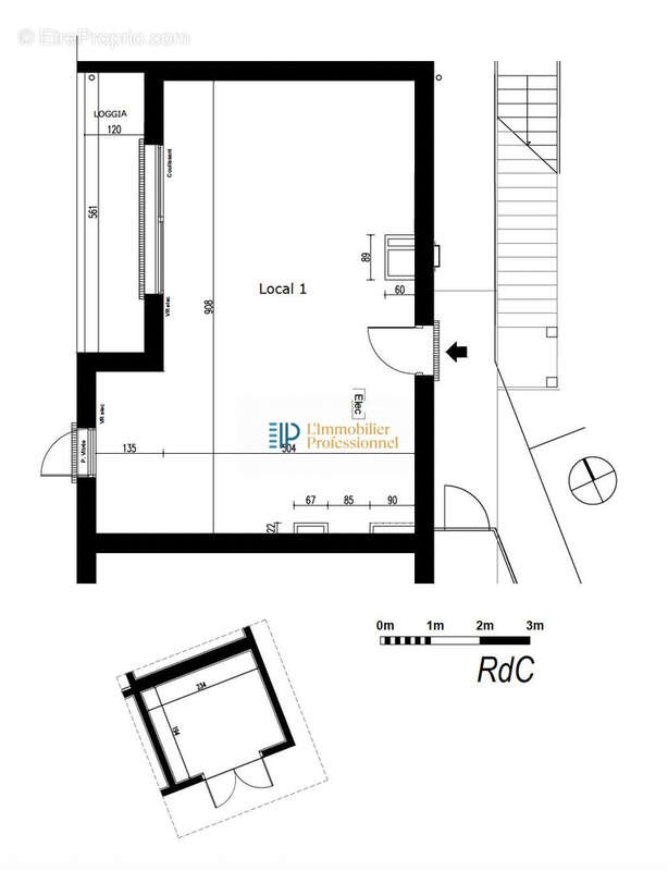
Commerce 69m² à sainte-helene

— Sainte-Helene 56700 —
n.c. €
69 m²
1 pièce

Nos partenaires locaux
PROGRAMME NEUF - SAINTE HELENE - CELLULES COMMERCIALES

Sur la commune de Sainte Hélène, nous proposons à la vente ces locaux commerciaux au rez de chaussée d'un un programme neuf à usage d'habitation et de commerce.

Deux cellules disponibles et possibilité des les réunir, idéal pour professions libérales souhaitant s'implanter ou se développer outre rade.

Profitez d'un ensemble aux dernières normes énergétiques, de stationnements à proximité et d'une beau linéaire de vitrine sur un axe principal de la commune.
- Cellule 1 : 49 m2 de surface utile
- Cellule 2 : 69 m2 de surface utile

Dans une copropriété de 18 lots. Aucune procédure n'est en cours. Non soumis au DPE. Les informations sur les risques auxquels ce bien est exposé sont disponibles sur le site Géorisques : georisques.gouv.fr. .
Les informations sur les risques naturels, miniers, ou technologiques, auxquels ces biens sont exposés, sont disponibles sur le site www.georisques.gouv.fr
Voir plus

Référence: VP2037-IMMOPROBZH
Bien en copropriété. Nombre de lots : 18.
Honoraires d'agence de 7% à la charge de l'acquéreur
Barème des honoraires

Prêt immobilier

Vous souhaitez connaître votre capacité d’emprunt et trouver le meilleur crédit immobilier ?
Réaliser une simulation gratuite

Commerce à SAINTE-HELENE
Commerce à SAINTE-HELENE
Commerce à SAINTE-HELENE
Ce site est protégé par reCAPTCHA la Politique de confidentialité et les Conditions d’utilisation de Google s’appliquent.
Obtenir un prêt immobilier au meilleur taux ?

En poursuivant votre navigation sans modifier vos paramètres, vous acceptez l'utilisation de cookies susceptibles de réaliser des statistiques de visite. Cliquez ici pour plus d'informations