Bénéficiez des services de nos partenaires locaux soigneusement sélectionnés
pour vous accompagner dans votre parcours d'achat immobilier

Vente maison 10 pièces de 231m² - 84300 taillades

— Taillades 84300 —
575 000 €
231 m² / 1 180 m²
10 pièces
parkingjardinpiscine

Nos partenaires locaux
Casavo vous propose à la vente cette propriété unique aux Taillades – Habitation & Activité professionnelle:
Située en zone artisanale, cette propriété des années 2000 offre une combinaison rare entre confort de vie et infrastructure professionnelle. Implantée sur un terrain de 1 200 m² divisible avec deux accès indépendants, elle est idéale pour les artisans, professions libérales ou entrepreneurs souhaitant allier travail et résidence principale.

Les atouts majeurs :

Résidence principale (140 m² - exposée plein sud)

Vaste séjour lumineux de 68 m² avec cheminée et accès terrasse couverte
Cuisine équipée de 18 m² et cellier
À l'étage : 4 chambres, salle d'eau double vasque et WC indépendants
Piscine sécurisée & pool house pour des moments de détente

Appartement indépendant (90 m² - R+1 de la partie professionnelle)

Séjour spacieux de 56 m²
Chambre de 21 m² + bureau/dressing
Grande salle de bain avec WC
Idéal pour location, habitation d'appoint ou activité libérale

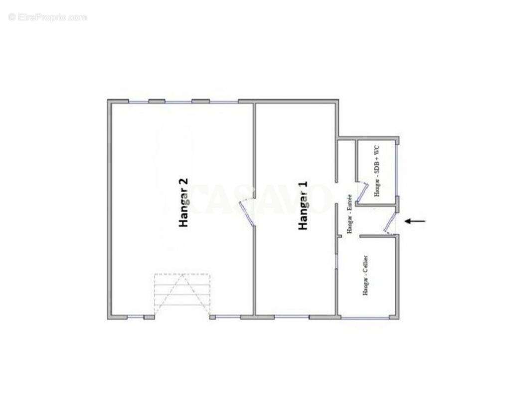
Espace professionnel (180 m²)

Deux hangars communicants (90 m² et 64 m²) avec accès indépendant
Salle d'eau avec WC, cellier et grand hall
Accès latéral avec rideau métallique – parfait pour stockage ou atelier
Informations techniques & travaux récents

Travaux effectués : électricité, plomberie et toiture (2007)
Isolation refaite en 2023, climatisation et double vitrage
Façade à prévoir pour harmonisation du bâti
Taxe foncière : 2 500 €/an
Charges lotissement : 230 €/an (entretien & assurance des espaces extérieurs)
Une opportunité rare sur le marché – Idéale pour combiner un cadre de vie agréable et un espace professionnel fonctionnel.

Contactez moi pour plus d'informations !

Ce bien est commercialisé par Casavo.

Intéressé par ce bien ? Plus d'informations sur le site de Casavo.
Voir plus

Référence: 26609
Honoraires à la charge du vendeur.
DPE
A
B
C
D
E
F
G
GES
A
B
C
D
E
F
G

Prêt immobilier

Vous souhaitez connaître votre capacité d’emprunt et trouver le meilleur crédit immobilier ?
Réaliser une simulation gratuite

Maison à TAILLADES
Maison à TAILLADES
Maison à TAILLADES
Maison à TAILLADES
Maison à TAILLADES
Maison à TAILLADES
Maison à TAILLADES
Maison à TAILLADES
Maison à TAILLADES
Maison à TAILLADES
Maison à TAILLADES
Maison à TAILLADES
Maison à TAILLADES
Maison à TAILLADES
Maison à TAILLADES
Maison à TAILLADES
Maison à TAILLADES
Maison à TAILLADES
Ce site est protégé par reCAPTCHA la Politique de confidentialité et les Conditions d’utilisation de Google s’appliquent.
Obtenir un prêt immobilier au meilleur taux ?

En poursuivant votre navigation sans modifier vos paramètres, vous acceptez l'utilisation de cookies susceptibles de réaliser des statistiques de visite. Cliquez ici pour plus d'informations