Bénéficiez des services de nos partenaires locaux soigneusement sélectionnés
pour vous accompagner dans votre parcours d'achat immobilier

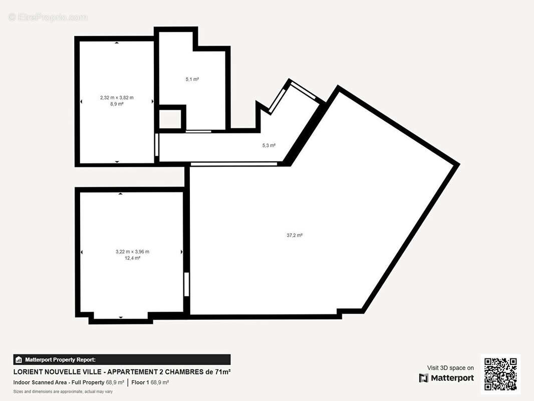
Lorient nouvelle ville - appartement t4 der 71m²

— Lorient 56100 —
196 100 €
71 m²
4 pièces

Nos partenaires locaux
LORIENT NOUVELLE VILLE - APPARTEMENT T4 der 71m² Au coeur du quartier recherché de la NOUVELLE VILLE et à proximité immédiate de tous les commerces et du centre ville, venez découvrir cet appartement de 71m² à la distribution originale au rez de chaussée (ancien commerce) situé au sein d'une petite copropriété de trois étages gérée en syndic bénévole. Il se compose d'une entrée avec rangement, d'un wc indépendant, d'un bel espace à vivre de près de 40m² intégrant une cuisine américaine aménagée et équipée, une salle d'eau avec fenetre et deux chambres (12 et 9m²) dont la plus est munie d'un dressing. Une cave est associée à l'appartement. Le chauffage est individuel électrique et les fenetres sont en PVC double vitrage avec volets roulants. Son prix est de 196 100 euros frais d'agence inclus dont 6% à charge acquéreur. APPARTEMENT ORIGINAL AVEC UN BEL ESPACE A VIVRE QUI RAVIRA TOUS LES CITADINS ! Les informations sur les risques auxquels ce bien est exposé sont disponibles sur le site Géorisques : www.georisques.gouv.fr. Découvrez toutes les originalités de cet appartement en vente en prenant rendez-vous avec notre agence immobilière Agence Barraine IMMO Lorient. (6.00 % honoraires TTC à la charge de l'acquéreur.) Copropriété de 9 lots (Pas de procédure en cours). Charges annuelles : 840 euros.
Voir plus

Référence: LT00275-MB
Bien en copropriété. Nombre de lots : 9. Charges de copropriété : 840 €.
Honoraires d'agence de 6% à la charge de l'acquéreur
Barème des honoraires
DPE
A
B
C
D
E
F
G
GES
A
B
C
D
E
F
G

Prêt immobilier

Vous souhaitez connaître votre capacité d’emprunt et trouver le meilleur crédit immobilier ?
Réaliser une simulation gratuite

Appartement à LORIENT
Appartement à LORIENT
Appartement à LORIENT
Appartement à LORIENT
Appartement à LORIENT
Appartement à LORIENT
Appartement à LORIENT
Appartement à LORIENT
Appartement à LORIENT
Appartement à LORIENT
Appartement à LORIENT
Appartement à LORIENT
Appartement à LORIENT
Appartement à LORIENT
Appartement à LORIENT
Appartement à LORIENT
Appartement à LORIENT
Appartement à LORIENT
Appartement à LORIENT
Appartement à LORIENT
Ce site est protégé par reCAPTCHA la Politique de confidentialité et les Conditions d’utilisation de Google s’appliquent.
Obtenir un prêt immobilier au meilleur taux ?

En poursuivant votre navigation sans modifier vos paramètres, vous acceptez l'utilisation de cookies susceptibles de réaliser des statistiques de visite. Cliquez ici pour plus d'informations