Maison 188m² à cazaubon

— Cazaubon 32150 —
409 000 €
188 m² / 84 136 m²
7 pièces
parkingbalcon/terrassejardinaccès handicapé

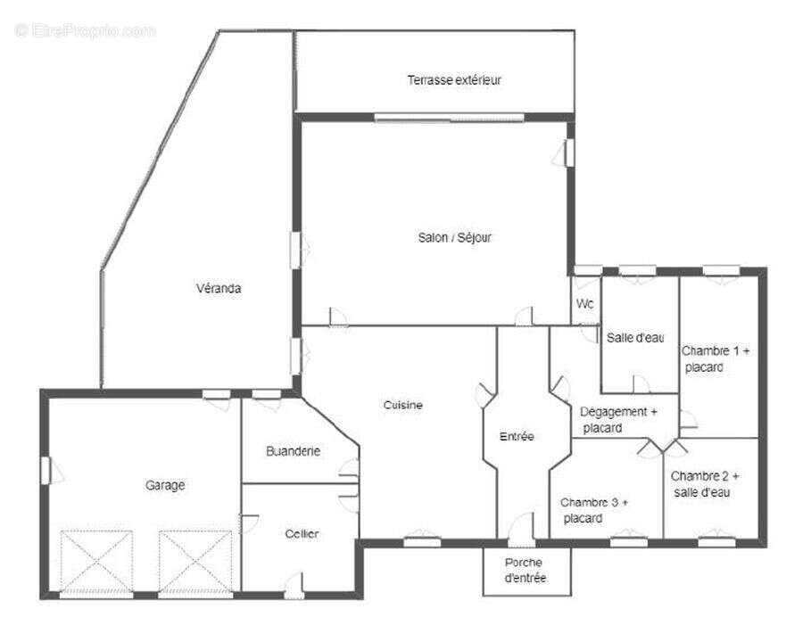
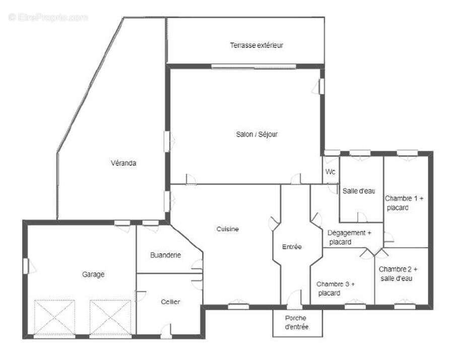
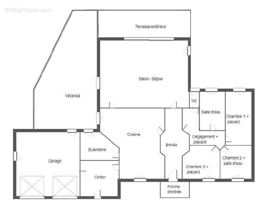
Découvrez cette magnifique villa de plain-pied de 188 m², située sur un vaste terrain de plus de 8 hectares, à seulement 3 km de Cazaubon et de toutes ses commodités. Idéalement située près de la station touristique de Barbotan les Thermes et de son célèbre Lac de l'Uby, cette propriété allie confort et fonctionnalité.



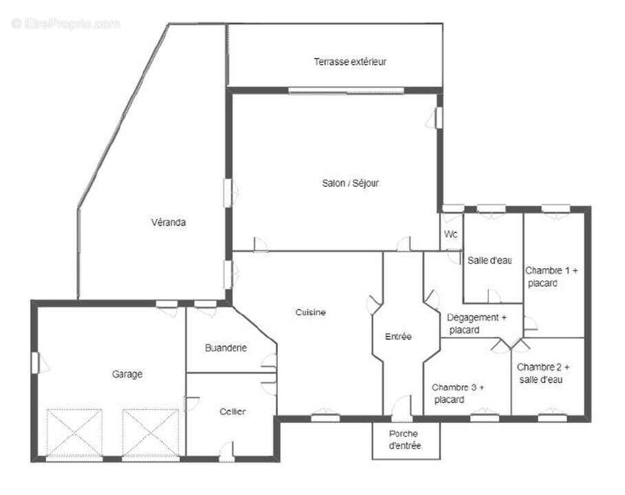
L'entrée spacieuse vous mène vers une cuisine équipée de 26 m², ainsi qu'un lumineux séjour/salle à manger de 40 m² agrémenté d'une cheminée. La maison comprend également trois chambres avec placards de 10 m², 12 m² et 12,5 m², dont une dispose d'une salle d'eau et de WC. Vous trouverez également un cellier, un WC séparé, une salle d'eau de 7 m² et une superbe véranda de 37 m² orientée au sud, idéale pour profiter du soleil et admirer la vue sur la campagne environnante.



À l'extérieur, une petite terrasse couverte avec barbecue et un jardin arboré et clos vous offriront un cadre de vie paisible et agréable. Deux garages de 33 m² et 28 m² complètent l'ensemble.



Le chauffage est assuré par des convecteurs électriques et deux climatiseurs, ainsi qu'une cheminée avec insert. Aucun travaux majeurs ne sont à prévoir, à l'exception d'un rafraîchissement pour personnaliser les espaces selon vos goûts. Cette belle maison est prête à vous accueillir.



Le terrain de 84136 , principalement constitué de prairies, entoure la maison. Vous y trouverez également deux hangars d'environ 1200 m², actuellement utilisés comme étables ou pour le stockage. Un terrain de pétanque a été aménagé, à l'abri des regards et des intempéries, pour des moments de détente.

Les bâtiments peuvent être conservés tels quels ou réaménagés selon vos projets, offrant de nombreuses possibilités pour accueillir des animaux, créer une ferme ou développer d'autres initiatives personnelles.

Cette charmante propriété située dans le Gers est disponible immédiatement.

INFORMATIONS DIVERSES:

Double vitrage, volets roulants et éclectiques, production eau chaude cumulus électrique 200 litres, présence d'une fosse septique, VMC, portail automatique.

Taxe foncière : 1300 E



Les informations sur les risques auxquels ce bien est exposé sont disponibles sur le site Géorisques : www. georisques. gouv. fr.

Pour plus d'informations et pour une visite, contactez Hervé DESPLAT : CLAIRIMMO Barbotan - 3 avenue des Thermes 32150 CAZAUBON - Service Transaction : [Coordonnées masquées] Service Location : [Coordonnées masquées] email : [Coordonnées masquées] RCS 851 986 620 Agent commercial indépendant du réseau national Clairimmo N° RSAC : 495 108 755
Voir plus

Référence: 11293DQ612
Honoraires à la charge du vendeur.
DPE
A
B
C
D
E
F
G
GES
A
B
C
D
E
F
G

Prêt immobilier

Vous souhaitez connaître votre capacité d’emprunt et trouver le meilleur crédit immobilier ?
Réaliser une simulation gratuite

#maison #type t4 #dépendances #sudouest #hangar #hectares - Maison à CAZAUBON
#maison #type t4 #dépendances #sudouest #hangar #hectares
#maison #type t4 #dépendances #sudouest #hangar #hectares - Maison à CAZAUBON
#maison #type t4 #dépendances #sudouest #hangar #hectares
#maison #type t4 #dépendances #sudouest #hangar #hectares - Maison à CAZAUBON
#maison #type t4 #dépendances #sudouest #hangar #hectares
#maison #type t4 #dépendances #sudouest #hangar #hectares - Maison à CAZAUBON
#maison #type t4 #dépendances #sudouest #hangar #hectares
#maison #type t4 #dépendances #sudouest #hangar #hectares - Maison à CAZAUBON
#maison #type t4 #dépendances #sudouest #hangar #hectares
Maison à CAZAUBON
#maison #type t4 #dépendances #sudouest #hangar #hectares - Maison à CAZAUBON
#maison #type t4 #dépendances #sudouest #hangar #hectares
#maison #type t4 #dépendances #sudouest #hangar #hectares - Maison à CAZAUBON
#maison #type t4 #dépendances #sudouest #hangar #hectares
#maison #type t4 #dépendances #sudouest #hangar #hectares - Maison à CAZAUBON
#maison #type t4 #dépendances #sudouest #hangar #hectares
#maison #type t4 #dépendances #sudouest #hangar #hectares - Maison à CAZAUBON
#maison #type t4 #dépendances #sudouest #hangar #hectares
#maison #type t4 #dépendances #sudouest #hangar #hectares - Maison à CAZAUBON
#maison #type t4 #dépendances #sudouest #hangar #hectares
#maison #type t4 #dépendances #sudouest #hangar #hectares - Maison à CAZAUBON
#maison #type t4 #dépendances #sudouest #hangar #hectares
#maison #type t4 #dépendances #sudouest #hangar #hectares - Maison à CAZAUBON
#maison #type t4 #dépendances #sudouest #hangar #hectares
#maison #type t4 #dépendances #sudouest #hangar #hectares - Maison à CAZAUBON
#maison #type t4 #dépendances #sudouest #hangar #hectares
Maison à CAZAUBON
#maison #type t4 #dépendances #sudouest #hangar #hectares - Maison à CAZAUBON
#maison #type t4 #dépendances #sudouest #hangar #hectares
#maison #type t4 #dépendances #sudouest #hangar #hectares - Maison à CAZAUBON
#maison #type t4 #dépendances #sudouest #hangar #hectares
#maison #type t4 #dépendances #sudouest #hangar #hectares - Maison à CAZAUBON
#maison #type t4 #dépendances #sudouest #hangar #hectares
#maison #type t4 #dépendances #sudouest #hangar #hectares - Maison à CAZAUBON
#maison #type t4 #dépendances #sudouest #hangar #hectares
#maison #type t4 #dépendances #sudouest #hangar #hectares - Maison à CAZAUBON
#maison #type t4 #dépendances #sudouest #hangar #hectares
#maison #type t4 #dépendances #sudouest #hangar #hectares - Maison à CAZAUBON
#maison #type t4 #dépendances #sudouest #hangar #hectares
#maison #type t4 #dépendances #sudouest #hangar #hectares - Maison à CAZAUBON
#maison #type t4 #dépendances #sudouest #hangar #hectares
#maison #type t4 #dépendances #sudouest #hangar #hectares - Maison à CAZAUBON
#maison #type t4 #dépendances #sudouest #hangar #hectares
Maison à CAZAUBON
#maison #type t4 #dépendances #sudouest #hangar #hectares - Maison à CAZAUBON
#maison #type t4 #dépendances #sudouest #hangar #hectares
#maison #type t4 #dépendances #sudouest #hangar #hectares - Maison à CAZAUBON
#maison #type t4 #dépendances #sudouest #hangar #hectares
#maison #type t4 #dépendances #sudouest #hangar #hectares - Maison à CAZAUBON
#maison #type t4 #dépendances #sudouest #hangar #hectares
#maison #type t4 #dépendances #sudouest #hangar #hectares - Maison à CAZAUBON
#maison #type t4 #dépendances #sudouest #hangar #hectares
#maison #type t4 #dépendances #sudouest #hangar #hectares - Maison à CAZAUBON
#maison #type t4 #dépendances #sudouest #hangar #hectares
#maison #type t4 #dépendances #sudouest #hangar #hectares - Maison à CAZAUBON
#maison #type t4 #dépendances #sudouest #hangar #hectares
#maison #type t4 #dépendances #sudouest #hangar #hectares - Maison à CAZAUBON
#maison #type t4 #dépendances #sudouest #hangar #hectares
#maison #type t4 #dépendances #sudouest #hangar #hectares - Maison à CAZAUBON
#maison #type t4 #dépendances #sudouest #hangar #hectares
Maison à CAZAUBON
#maison #type t4 #dépendances #sudouest #hangar #hectares - Maison à CAZAUBON
#maison #type t4 #dépendances #sudouest #hangar #hectares
#maison #type t4 #dépendances #sudouest #hangar #hectares - Maison à CAZAUBON
#maison #type t4 #dépendances #sudouest #hangar #hectares
#maison #type t4 #dépendances #sudouest #hangar #hectares - Maison à CAZAUBON
#maison #type t4 #dépendances #sudouest #hangar #hectares
#maison #type t4 #dépendances #sudouest #hangar #hectares - Maison à CAZAUBON
#maison #type t4 #dépendances #sudouest #hangar #hectares
#maison #type t4 #dépendances #sudouest #hangar #hectares - Maison à CAZAUBON
#maison #type t4 #dépendances #sudouest #hangar #hectares
#maison #type t4 #dépendances #sudouest #hangar #hectares - Maison à CAZAUBON
#maison #type t4 #dépendances #sudouest #hangar #hectares
#maison #type t4 #dépendances #sudouest #hangar #hectares - Maison à CAZAUBON
#maison #type t4 #dépendances #sudouest #hangar #hectares
Maison à CAZAUBON
#maison #type t4 #dépendances #sudouest #hangar #hectares - Maison à CAZAUBON
#maison #type t4 #dépendances #sudouest #hangar #hectares
#maison #type t4 #dépendances #sudouest #hangar #hectares - Maison à CAZAUBON
#maison #type t4 #dépendances #sudouest #hangar #hectares
#maison #type t4 #dépendances #sudouest #hangar #hectares - Maison à CAZAUBON
#maison #type t4 #dépendances #sudouest #hangar #hectares
#maison #type t4 #dépendances #sudouest #hangar #hectares - Maison à CAZAUBON
#maison #type t4 #dépendances #sudouest #hangar #hectares
#maison #type t4 #dépendances #sudouest #hangar #hectares - Maison à CAZAUBON
#maison #type t4 #dépendances #sudouest #hangar #hectares
#maison #type t4 #dépendances #sudouest #hangar #hectares - Maison à CAZAUBON
#maison #type t4 #dépendances #sudouest #hangar #hectares
#maison #type t4 #dépendances #sudouest #hangar #hectares - Maison à CAZAUBON
#maison #type t4 #dépendances #sudouest #hangar #hectares
#maison #type t4 #dépendances #sudouest #hangar #hectares - Maison à CAZAUBON
#maison #type t4 #dépendances #sudouest #hangar #hectares
Maison à CAZAUBON
#maison #type t4 #dépendances #sudouest #hangar #hectares - Maison à CAZAUBON
#maison #type t4 #dépendances #sudouest #hangar #hectares
#maison #type t4 #dépendances #sudouest #hangar #hectares - Maison à CAZAUBON
#maison #type t4 #dépendances #sudouest #hangar #hectares
#maison #type t4 #dépendances #sudouest #hangar #hectares - Maison à CAZAUBON
#maison #type t4 #dépendances #sudouest #hangar #hectares
#maison #type t4 #dépendances #sudouest #hangar #hectares - Maison à CAZAUBON
#maison #type t4 #dépendances #sudouest #hangar #hectares
#maison #type t4 #dépendances #sudouest #hangar #hectares - Maison à CAZAUBON
#maison #type t4 #dépendances #sudouest #hangar #hectares
#maison #type t4 #dépendances #sudouest #hangar #hectares - Maison à CAZAUBON
#maison #type t4 #dépendances #sudouest #hangar #hectares
#maison #type t4 #dépendances #sudouest #hangar #hectares - Maison à CAZAUBON
#maison #type t4 #dépendances #sudouest #hangar #hectares
#maison #type t4 #dépendances #sudouest #hangar #hectares - Maison à CAZAUBON
#maison #type t4 #dépendances #sudouest #hangar #hectares
Maison à CAZAUBON
#maison #type t4 #dépendances #sudouest #hangar #hectares - Maison à CAZAUBON
#maison #type t4 #dépendances #sudouest #hangar #hectares
#maison #type t4 #dépendances #sudouest #hangar #hectares - Maison à CAZAUBON
#maison #type t4 #dépendances #sudouest #hangar #hectares
#maison #type t4 #dépendances #sudouest #hangar #hectares - Maison à CAZAUBON
#maison #type t4 #dépendances #sudouest #hangar #hectares
#maison #type t4 #dépendances #sudouest #hangar #hectares - Maison à CAZAUBON
#maison #type t4 #dépendances #sudouest #hangar #hectares
#maison #type t4 #dépendances #sudouest #hangar #hectares - Maison à CAZAUBON
#maison #type t4 #dépendances #sudouest #hangar #hectares
#maison #type t4 #dépendances #sudouest #hangar #hectares - Maison à CAZAUBON
#maison #type t4 #dépendances #sudouest #hangar #hectares
#maison #type t4 #dépendances #sudouest #hangar #hectares - Maison à CAZAUBON
#maison #type t4 #dépendances #sudouest #hangar #hectares
#maison #type t4 #dépendances #sudouest #hangar #hectares - Maison à CAZAUBON
#maison #type t4 #dépendances #sudouest #hangar #hectares
Maison à CAZAUBON
#maison #type t4 #dépendances #sudouest #hangar #hectares - Maison à CAZAUBON
#maison #type t4 #dépendances #sudouest #hangar #hectares
#maison #type t4 #dépendances #sudouest #hangar #hectares - Maison à CAZAUBON
#maison #type t4 #dépendances #sudouest #hangar #hectares
#maison #type t4 #dépendances #sudouest #hangar #hectares - Maison à CAZAUBON
#maison #type t4 #dépendances #sudouest #hangar #hectares
#maison #type t4 #dépendances #sudouest #hangar #hectares - Maison à CAZAUBON
#maison #type t4 #dépendances #sudouest #hangar #hectares
#maison #type t4 #dépendances #sudouest #hangar #hectares - Maison à CAZAUBON
#maison #type t4 #dépendances #sudouest #hangar #hectares
#maison #type t4 #dépendances #sudouest #hangar #hectares - Maison à CAZAUBON
#maison #type t4 #dépendances #sudouest #hangar #hectares
#maison #type t4 #dépendances #sudouest #hangar #hectares - Maison à CAZAUBON
#maison #type t4 #dépendances #sudouest #hangar #hectares
#maison #type t4 #dépendances #sudouest #hangar #hectares - Maison à CAZAUBON
#maison #type t4 #dépendances #sudouest #hangar #hectares
Maison à CAZAUBON
#maison #type t4 #dépendances #sudouest #hangar #hectares - Maison à CAZAUBON
#maison #type t4 #dépendances #sudouest #hangar #hectares
#maison #type t4 #dépendances #sudouest #hangar #hectares - Maison à CAZAUBON
#maison #type t4 #dépendances #sudouest #hangar #hectares
#maison #type t4 #dépendances #sudouest #hangar #hectares - Maison à CAZAUBON
#maison #type t4 #dépendances #sudouest #hangar #hectares
#maison #type t4 #dépendances #sudouest #hangar #hectares - Maison à CAZAUBON
#maison #type t4 #dépendances #sudouest #hangar #hectares
#maison #type t4 #dépendances #sudouest #hangar #hectares - Maison à CAZAUBON
#maison #type t4 #dépendances #sudouest #hangar #hectares
#maison #type t4 #dépendances #sudouest #hangar #hectares - Maison à CAZAUBON
#maison #type t4 #dépendances #sudouest #hangar #hectares
#maison #type t4 #dépendances #sudouest #hangar #hectares - Maison à CAZAUBON
#maison #type t4 #dépendances #sudouest #hangar #hectares
#maison #type t4 #dépendances #sudouest #hangar #hectares - Maison à CAZAUBON
#maison #type t4 #dépendances #sudouest #hangar #hectares
Maison à CAZAUBON
#maison #type t4 #dépendances #sudouest #hangar #hectares - Maison à CAZAUBON
#maison #type t4 #dépendances #sudouest #hangar #hectares
#maison #type t4 #dépendances #sudouest #hangar #hectares - Maison à CAZAUBON
#maison #type t4 #dépendances #sudouest #hangar #hectares
#maison #type t4 #dépendances #sudouest #hangar #hectares - Maison à CAZAUBON
#maison #type t4 #dépendances #sudouest #hangar #hectares
#maison #type t4 #dépendances #sudouest #hangar #hectares - Maison à CAZAUBON
#maison #type t4 #dépendances #sudouest #hangar #hectares
Ce site est protégé par reCAPTCHA la Politique de confidentialité et les Conditions d’utilisation de Google s’appliquent.
Obtenir un prêt immobilier au meilleur taux ?

En poursuivant votre navigation sans modifier vos paramètres, vous acceptez l'utilisation de cookies susceptibles de réaliser des statistiques de visite. Cliquez ici pour plus d'informations