Bénéficiez des services de nos partenaires locaux soigneusement sélectionnés
pour vous accompagner dans votre parcours d'achat immobilier

Terrain 5636m² à bournazel

— Bournazel 81170 —
87 000 €
5 636 m²

Nos partenaires locaux
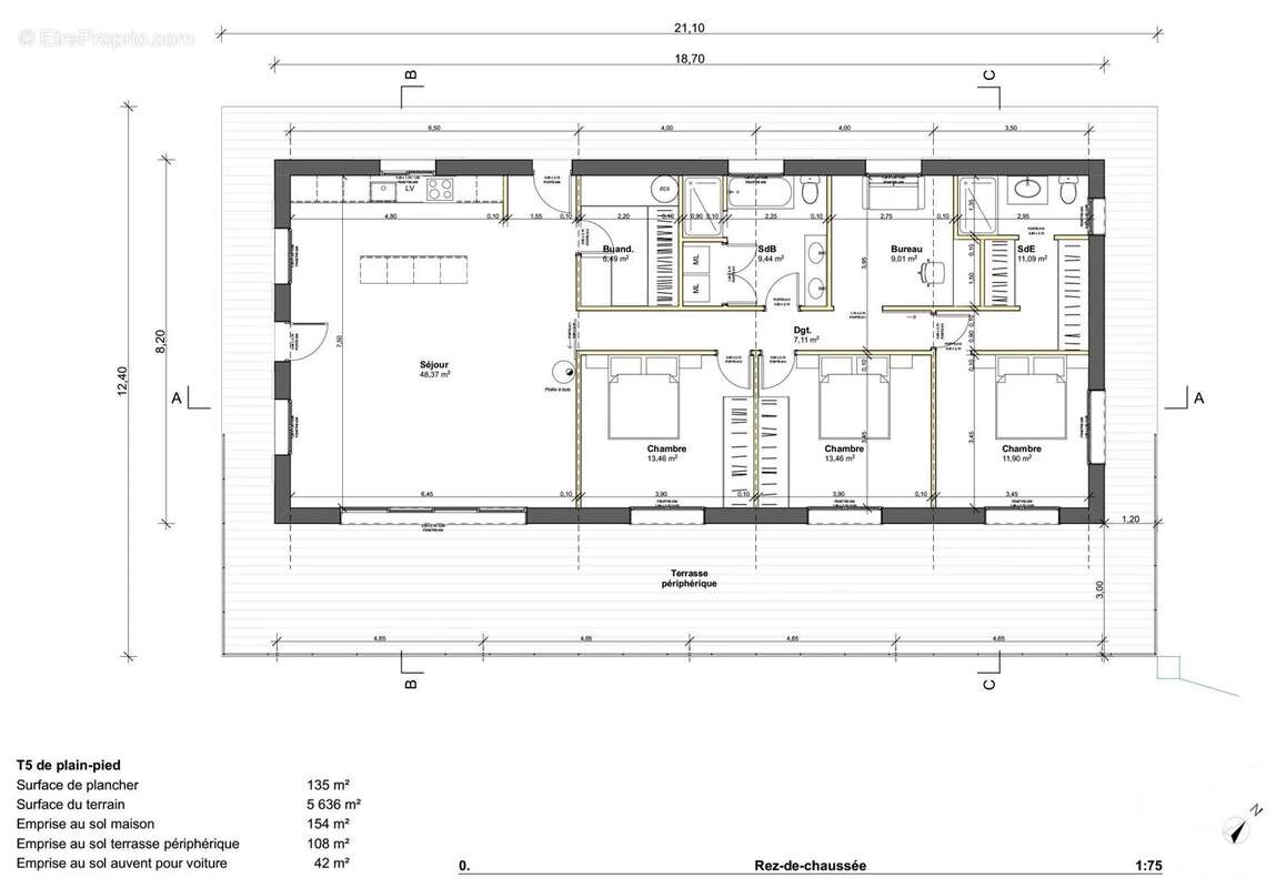
BOURNAZEL (81170), Vous rêvez d'un cadre unique pour votre futur chez-vous ? Découvrez ce superbe terrain viabilisé de 5 636 m², situé à l'entrée du charmant village de Bournazel. Les atouts de ce bien : - Vue dégagée et environnement préservé - Grand terrain offrant de multiples possibilités - Projet architectural inclus : un cabinet d'architectes a conçu une magnifique maison sur pilotis de 135 m², alliant modernité et intégration paysagère - Un véritable coup de cœur pour les amoureux de nature et d'authenticité, en quête d'un projet harmonieux et original - Un emplacement idéal : à l'entrée du village, dans un cadre paisible et verdoyant. Un très beau potentiel pour réaliser un projet de vie unique et hors du commun. Plus d'informations et visite sur demande. CENTURY 21 AGENCE SAINTE-CÉCILE [Coordonnées masquées], nous vous accueillons du lundi au samedi, 5 Place Sainte-Cécile à ALBI ! (en bas du Marché Couvert au pied de la Cathédrale) Bien proposé par Thibault POUGEOISE EI, agent commercial (RSAC 492737440)
Voir plus

Référence: 12809

Prêt immobilier

Vous souhaitez connaître votre capacité d’emprunt et trouver le meilleur crédit immobilier ?
Réaliser une simulation gratuite

Terrain à BOURNAZEL
Terrain à BOURNAZEL
Terrain à BOURNAZEL
Terrain à BOURNAZEL
Terrain à BOURNAZEL
Terrain à BOURNAZEL
Terrain à BOURNAZEL
Terrain à BOURNAZEL
Ce site est protégé par reCAPTCHA la Politique de confidentialité et les Conditions d’utilisation de Google s’appliquent.
Obtenir un prêt immobilier au meilleur taux ?

En poursuivant votre navigation sans modifier vos paramètres, vous acceptez l'utilisation de cookies susceptibles de réaliser des statistiques de visite. Cliquez ici pour plus d'informations