Nice cimiez- superbre appartement dernier étage 153m2 - terrasse & solarium

— Nice 06100 —
1 190 000 €
153 m²
4 pièces
balcon/terrasseascenseur

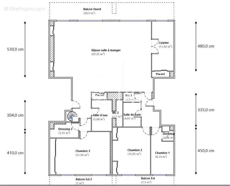
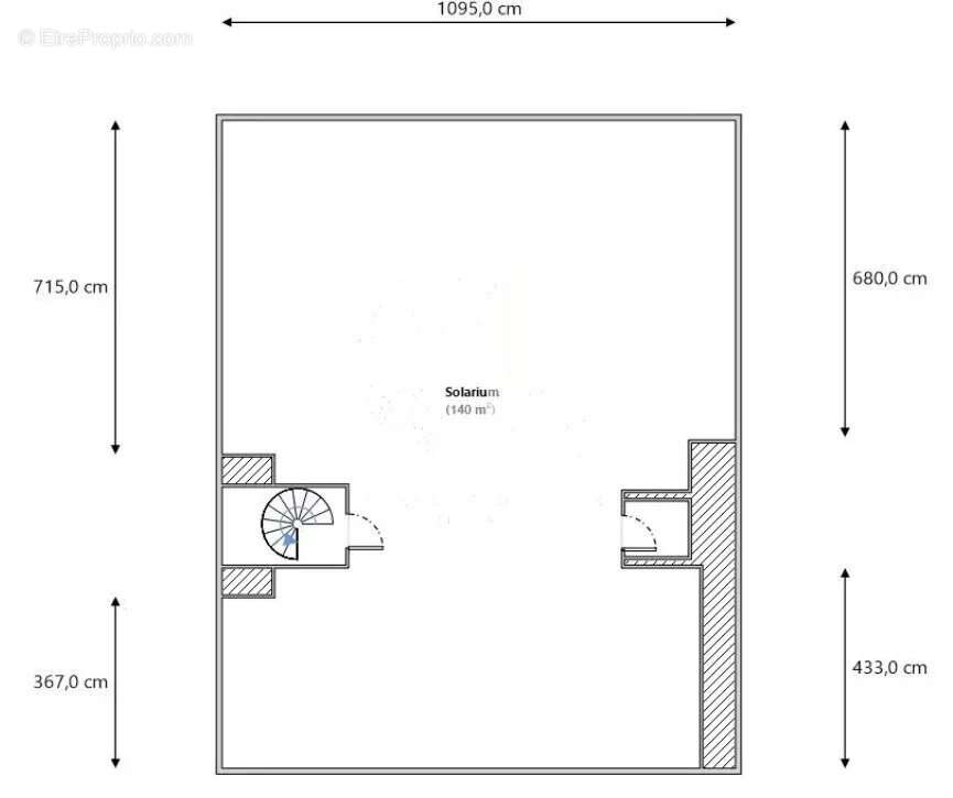
Amanda Properties vous propose ce Superbe Appartement Haut Standing à proximité de la clinique Saint Georges. Appartement 4 Pièces de 153m2 et d'une superficie totale de 328m2 disposant de 3 terrasses et d'un magnifique Solarium de 140m2 privé accessible depuis l'appartement.

Sejour/Salle à manger de 67m2. Cuisine aménagée et équipée. Coté nuits, 3 Chambres spacieuses dont une plus réduite de 8m2 pouvant être bureau.Salle de bains et Salle d'eau. Deux caves et un garage complètent ce bien d'exception..
**Ce Bien est à rafraichir...

Proximité : Clinique, Transports, Tramway, Commerces
Voir plus

Référence: 9130V
Barème des honoraires
DPE
A
B
C
D
E
F
G
GES
A
B
C
D
E
F
G

Prêt immobilier

Vous souhaitez connaître votre capacité d’emprunt et trouver le meilleur crédit immobilier ?
Réaliser une simulation gratuite

Appartement à NICE
Appartement à NICE
Appartement à NICE
Appartement à NICE
Appartement à NICE
Appartement à NICE
Appartement à NICE
Appartement à NICE
Appartement à NICE
Appartement à NICE
Appartement à NICE
Appartement à NICE
Appartement à NICE
Appartement à NICE
Appartement à NICE
Appartement à NICE
Appartement à NICE
Ce site est protégé par reCAPTCHA la Politique de confidentialité et les Conditions d’utilisation de Google s’appliquent.
Obtenir un prêt immobilier au meilleur taux ?

En poursuivant votre navigation sans modifier vos paramètres, vous acceptez l'utilisation de cookies susceptibles de réaliser des statistiques de visite. Cliquez ici pour plus d'informations