Bénéficiez des services de nos partenaires locaux soigneusement sélectionnés
pour vous accompagner dans votre parcours d'achat immobilier

Maison mitoyenne 4 pièces - 90,66 m2- brison saint innocent

— Brison-Saint-Innocent 73100 —
431 000 €
91 m² / 655 m²
4 pièces
parkingjardin

Nos partenaires locaux
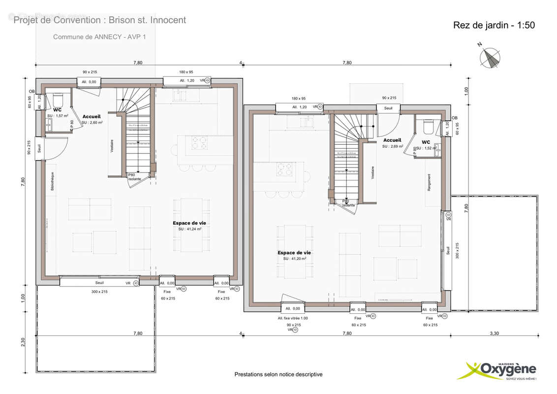
À deux pas d’Aix-les-Bains, découvrez cette villa récente (RE 2020) de 90,66 m2 habitables (142 m2 utiles) sur un terrain de 655 m2, offrant un cadre de vie privilégié.
Agencement :

- Rez-de-chaussée : Pièce de vie lumineuse de 41 m2 avec baies vitrées, entrée avec rangements, cuisine à aménager, WC.
- Étage : 3 chambres avec dressings, salle de bains (baignoire), WC.
- Sous-sol : Grand garage de 51,30 m2.

Prestations :
• Chauffage PAC air/eau (plancher chauffant dans la pièce de vie, radiateurs dans les chambres).
• Menuiseries PVC, volets roulants PVC/alu.
• Carrelage et parquet, murs en briques de 20 cm.
• Terrasse de 14,52 m2, jardin.
Le bien est actuellement à l'état de projet et n'a pas encore été édifié.
Un bien lumineux aux belles prestations, dans un secteur recherché !
Dossier complet sur demande.

Une annonce de Peak immobilier
Pour plus d'informations, contacter :
Stéphane MAURIN : O6 17 17 34 79
Agent Commercial enregistré sous le no 850 292 731
Voir plus

Honoraires à la charge du vendeur.

Prêt immobilier

Vous souhaitez connaître votre capacité d’emprunt et trouver le meilleur crédit immobilier ?
Réaliser une simulation gratuite

Maison à BRISON-SAINT-INNOCENT
Maison à BRISON-SAINT-INNOCENT
Maison à BRISON-SAINT-INNOCENT
Maison à BRISON-SAINT-INNOCENT
Maison à BRISON-SAINT-INNOCENT
Maison à BRISON-SAINT-INNOCENT
Maison à BRISON-SAINT-INNOCENT
Maison à BRISON-SAINT-INNOCENT
Maison à BRISON-SAINT-INNOCENT
Ce site est protégé par reCAPTCHA la Politique de confidentialité et les Conditions d’utilisation de Google s’appliquent.
Obtenir un prêt immobilier au meilleur taux ?

En poursuivant votre navigation sans modifier vos paramètres, vous acceptez l'utilisation de cookies susceptibles de réaliser des statistiques de visite. Cliquez ici pour plus d'informations