Bénéficiez des services de nos partenaires locaux soigneusement sélectionnés
pour vous accompagner dans votre parcours d'achat immobilier

Maison 282m² à chalonnes-sur-loire

— Chalonnes-Sur-Loire 49290 —
459 000 €
282 m² / 3 882 m²
8 pièces
parkingbalcon/terrassejardin

Nos partenaires locaux
Votre agence 123webimmo l'immobilier au meilleur prix vous présente : A voir absolument !

Cette maison de caractère de 282 m², située sur un terrain de plus de 3 800 m²,. Idéale pour une grande famille ou un projet de gîte, elle allie charme et confort.

Au rez-de-chaussée, découvrez une grande cuisine aménagée et équipée, ouverte sur un salon-séjour lumineux et spacieux. Une cave aménagée, parfaite pour vos dégustations, complète cet espace.

Le bureau, avec son mur en pierre à l'arrière et sa vue panoramique sur le Louet à l'avant, est un véritable atout.

À l'étage, la maison propose 5 chambres, dont une avec un grand dressing. La suite parentale de 36 m² dispose d'une salle de bain et de WC privatifs. Quelques travaux sont à prévoir.

? Pour plus d'informations sur les risques liés à ce bien : www.georisques.gouv.fr
Voir plus

Référence: WI_c53687
Honoraires à la charge du vendeur.
Barème des honoraires
DPE
A
B
C
D
E
F
G
GES
A
B
C
D
E
F
G

Prêt immobilier

Vous souhaitez connaître votre capacité d’emprunt et trouver le meilleur crédit immobilier ?
Réaliser une simulation gratuite

Séjour - Maison à CHALONNES-SUR-LOIRE
Séjour
Salon - Maison à CHALONNES-SUR-LOIRE
Salon
Jardin arborés - Maison à CHALONNES-SUR-LOIRE
Jardin arborés
Cuisine - Maison à CHALONNES-SUR-LOIRE
Cuisine
Salle à manger - Maison à CHALONNES-SUR-LOIRE
Salle à manger
Chambre parentale - Maison à CHALONNES-SUR-LOIRE
Chambre parentale
Salle à manger - Maison à CHALONNES-SUR-LOIRE
Salle à manger
Chambre parentale - Maison à CHALONNES-SUR-LOIRE
Chambre parentale
Salle de bain attenant à la chambre parentale - Maison à CHALONNES-SUR-LOIRE
Salle de bain attenant à la chambre parentale
Salon - Maison à CHALONNES-SUR-LOIRE
Salon
Salle d'eau - Maison à CHALONNES-SUR-LOIRE
Salle d'eau
Jardin et terasse - Maison à CHALONNES-SUR-LOIRE
Jardin et terasse
Cave - Maison à CHALONNES-SUR-LOIRE
Cave
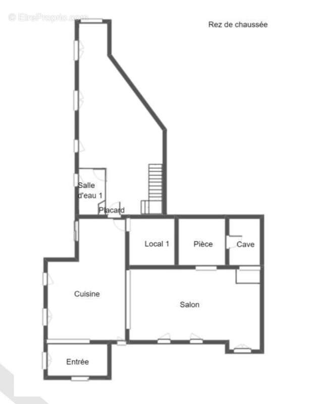
Plan RDC - Maison à CHALONNES-SUR-LOIRE
Plan RDC
Chambre avec Salle d'eau et WC - Maison à CHALONNES-SUR-LOIRE
Chambre avec Salle d'eau et WC
Séjour - Maison à CHALONNES-SUR-LOIRE
Séjour
Jardin arborés - Maison à CHALONNES-SUR-LOIRE
Jardin arborés
Salle de bain attenant à la chambre parentale - Maison à CHALONNES-SUR-LOIRE
Salle de bain attenant à la chambre parentale
Salle à manger - Maison à CHALONNES-SUR-LOIRE
Salle à manger
Chambre parentale - Maison à CHALONNES-SUR-LOIRE
Chambre parentale
Salon - Maison à CHALONNES-SUR-LOIRE
Salon
Salle d'eau - Maison à CHALONNES-SUR-LOIRE
Salle d'eau
Jardin et terasse - Maison à CHALONNES-SUR-LOIRE
Jardin et terasse
Chambre avec Salle d'eau et WC - Maison à CHALONNES-SUR-LOIRE
Chambre avec Salle d'eau et WC
Salle de bain attenant à la chambre parentale - Maison à CHALONNES-SUR-LOIRE
Salle de bain attenant à la chambre parentale
Salle d'eau - Maison à CHALONNES-SUR-LOIRE
Salle d'eau
Jardin et terasse - Maison à CHALONNES-SUR-LOIRE
Jardin et terasse
Salon - Maison à CHALONNES-SUR-LOIRE
Salon
Cuisine - Maison à CHALONNES-SUR-LOIRE
Cuisine
Salle à manger - Maison à CHALONNES-SUR-LOIRE
Salle à manger
Chambre parentale - Maison à CHALONNES-SUR-LOIRE
Chambre parentale
Salle de bain attenant à la chambre parentale - Maison à CHALONNES-SUR-LOIRE
Salle de bain attenant à la chambre parentale
Salle d'eau - Maison à CHALONNES-SUR-LOIRE
Salle d'eau
Jardin et terasse - Maison à CHALONNES-SUR-LOIRE
Jardin et terasse
Cave - Maison à CHALONNES-SUR-LOIRE
Cave
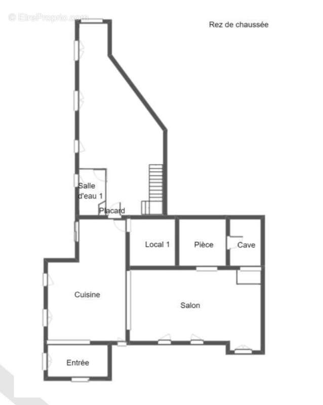
Plan RDC - Maison à CHALONNES-SUR-LOIRE
Plan RDC
Salon - Maison à CHALONNES-SUR-LOIRE
Salon
Cuisine - Maison à CHALONNES-SUR-LOIRE
Cuisine
Salle à manger - Maison à CHALONNES-SUR-LOIRE
Salle à manger
Chambre parentale - Maison à CHALONNES-SUR-LOIRE
Chambre parentale
Salle de bain attenant à la chambre parentale - Maison à CHALONNES-SUR-LOIRE
Salle de bain attenant à la chambre parentale
Salle d'eau - Maison à CHALONNES-SUR-LOIRE
Salle d'eau
Jardin et terasse - Maison à CHALONNES-SUR-LOIRE
Jardin et terasse
Cave - Maison à CHALONNES-SUR-LOIRE
Cave
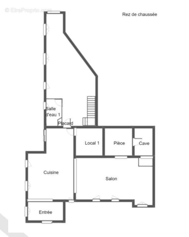
Plan RDC - Maison à CHALONNES-SUR-LOIRE
Plan RDC
Salon - Maison à CHALONNES-SUR-LOIRE
Salon
Cuisine - Maison à CHALONNES-SUR-LOIRE
Cuisine
Salle à manger - Maison à CHALONNES-SUR-LOIRE
Salle à manger
Chambre parentale - Maison à CHALONNES-SUR-LOIRE
Chambre parentale
Salle de bain attenant à la chambre parentale - Maison à CHALONNES-SUR-LOIRE
Salle de bain attenant à la chambre parentale
Salle d'eau - Maison à CHALONNES-SUR-LOIRE
Salle d'eau
Jardin et terasse - Maison à CHALONNES-SUR-LOIRE
Jardin et terasse
Cave - Maison à CHALONNES-SUR-LOIRE
Cave
Plan RDC - Maison à CHALONNES-SUR-LOIRE
Plan RDC
Salon - Maison à CHALONNES-SUR-LOIRE
Salon
Cuisine - Maison à CHALONNES-SUR-LOIRE
Cuisine
Salle à manger - Maison à CHALONNES-SUR-LOIRE
Salle à manger
Chambre parentale - Maison à CHALONNES-SUR-LOIRE
Chambre parentale
Salle de bain attenant à la chambre parentale - Maison à CHALONNES-SUR-LOIRE
Salle de bain attenant à la chambre parentale
Salle d'eau - Maison à CHALONNES-SUR-LOIRE
Salle d'eau
Jardin et terasse - Maison à CHALONNES-SUR-LOIRE
Jardin et terasse
Cave - Maison à CHALONNES-SUR-LOIRE
Cave
Plan RDC - Maison à CHALONNES-SUR-LOIRE
Plan RDC
Ce site est protégé par reCAPTCHA la Politique de confidentialité et les Conditions d’utilisation de Google s’appliquent.
Obtenir un prêt immobilier au meilleur taux ?

En poursuivant votre navigation sans modifier vos paramètres, vous acceptez l'utilisation de cookies susceptibles de réaliser des statistiques de visite. Cliquez ici pour plus d'informations