Maison 178m² à saint-francois

— Saint-Francois 97118 —
650 000 €
178 m² / 1 000 m²
8 pièces
jardin

Iad France - Gregory MOUSNIER vous propose : 'La Vallée d'Or', secteur prisé de Saint-François, je vous propose cette magnifique villa d'architecte, sa splendide piscine avec son jacuzzi intégré et sa dépendance de 32 m² avec son entrée indépendante.'

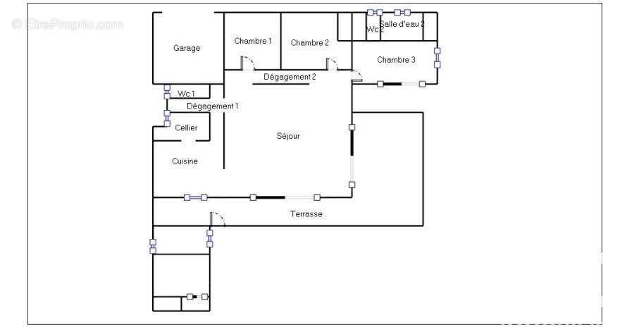
La villa principale se compose d'une pièce de vie de 70 m² (cuisine + séjour + salon) avec une grande hauteur sous charpente, un cellier contigu à la cuisine, une suite parentale de 30 m² avec 2 dressings et une salle d'eau / WC, une 2e chambre de 14 m² avec sa salle d'eau / WC, une 3e chambre de 12 m² avec rangements et un WC indépendant.

Fermetures par de grandes baies vitrées avec volets roulants électriques, stores bannes, climatiseurs performants pour votre plus grand confort.

Accès direct sur la terrasse et la piscine, son magnifique deck avec son coin détente !

À l'étage par l'escalier une chambre pour les enfants avec une salle d'eau et WC + des rangements.

Possibilité de faire une immense mezzanine grâce à la grande hauteur sous plafond !

Une entrée indépendante amène à une dépendance de 32 m² avec une chambre, une salle d'eau, une cuisine et sa terrasse couverte avec vue sur la piscine. Une source de revenu additionnel pour du locatif saisonnier, annuel ou autre !

En annexe, par une grande allée, un garage de 25 m².

Piscine au sel de 7m x 7m + jacuzzi et son superbe deck !

Local technique.

Terrain de 1000 m² clos et arboré.

Honoraires d'agence à la charge du vendeur.
Bien non soumis au DPE. Les informations sur les risques auxquels ce bien est exposé, y compris l'obligation légale de débroussaillement, sont disponibles sur le site Géorisques : http://www.georisques.gouv.fr.
La présente annonce immobilière a été rédigée sous la responsabilité éditoriale de M Gregory MOUSNIER mandataire indépendant en immobilier (sans détention de fonds), agent commercial de la SAS I@D France immatriculé au RSAC de SENS sous le numéro 828361584, titulaire de la carte de démarchage immobilier pour le compte de la société I@D France SAS.
Informations LOI ALUR :
Honoraires charge vendeur. (gedeon_6727_30706715)
Voir plus

Référence: 1676054
Honoraires à la charge du vendeur.
DPE
A
B
C
D
E
F
G

Prêt immobilier

Vous souhaitez connaître votre capacité d’emprunt et trouver le meilleur crédit immobilier ?
Réaliser une simulation gratuite

Photo 1 - Maison à SAINT-FRANCOIS
Photo 1
Photo 2 - Maison à SAINT-FRANCOIS
Photo 2
Photo 3 - Maison à SAINT-FRANCOIS
Photo 3
Photo 4 - Maison à SAINT-FRANCOIS
Photo 4
Photo 5 - Maison à SAINT-FRANCOIS
Photo 5
Photo 6 - Maison à SAINT-FRANCOIS
Photo 6
Photo 7 - Maison à SAINT-FRANCOIS
Photo 7
Photo 8 - Maison à SAINT-FRANCOIS
Photo 8
Photo 9 - Maison à SAINT-FRANCOIS
Photo 9
Ce site est protégé par reCAPTCHA la Politique de confidentialité et les Conditions d’utilisation de Google s’appliquent.
Obtenir un prêt immobilier au meilleur taux ?

En poursuivant votre navigation sans modifier vos paramètres, vous acceptez l'utilisation de cookies susceptibles de réaliser des statistiques de visite. Cliquez ici pour plus d'informations