Bénéficiez des services de nos partenaires locaux soigneusement sélectionnés
pour vous accompagner dans votre parcours d'achat immobilier

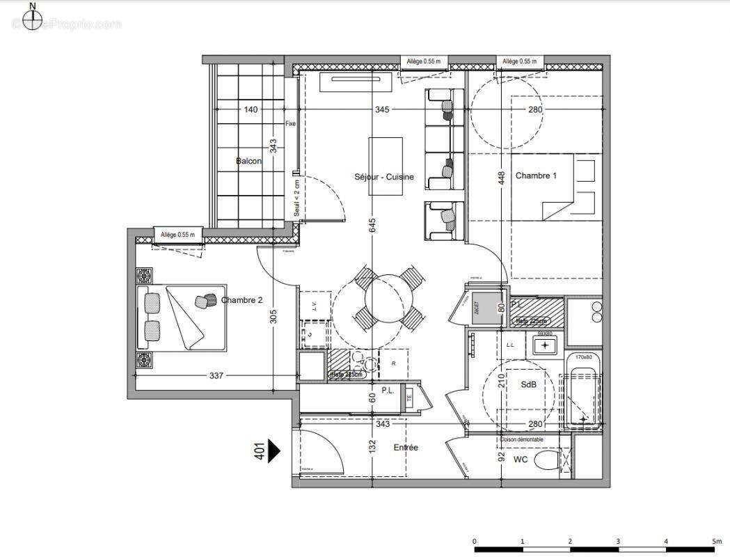
Appartement thonon les bains 3 pièces 60.2 m2

— Thonon-Les-Bains 74200 —
264 000 €
60 m²
3 pièces
parkingascenseur

Nos partenaires locaux
Situé dans Thonon, la résidence vous offrira une situation de premier plan proche des commerces et écoles et transport.
Je vous propose cet appartement T3, de 60 m² environ au quatrième étage, se composant d'une entrée donnant sur pièce de vie avec cuisine aménagée ouverte avec balcon exposé nord/ouest, deux chambres, une salle de bains et un wc séparé. Cet appartement est vendu avec box en sous-sol. Des prestations de standing, viennent compléter cet ensemble de qualité offrant un excellent niveau de confort moderne et d'isolation, ainsi que de faibles charges de copropriété.
Disponibilité au 4ème trimestre 2026

Autres configurations de distribution interne possibles, me contacter pour plus d'informations. Photos non contractuelles.

Pour visiter et vous accompagner dans votre projet, contactez Jérôme BLANDIN-SIKLI, au [Coordonnées masquées] ou par courriel à [Coordonnées masquées]
Selon l'article L.561.5 du Code Monétaire et Financier, pour l'organisation de la visite, la présentation d'une pièce d'identité vous sera demandée.

Cette présente annonce a été rédigée sous la responsabilité éditoriale de Jérôme BLANDIN-SIKLI agissant sous le statut d'agent commercial immatriculé au RSAC thonon les bains 483844122 auprès de la SAS PROPRIETES PRIVEES, au capital de 40 000 euros, ZAC LE CHÊNE FERRÉ - 44 ALLÉE DES CINQ CONTINENTS 44120 VERTOU; SIRET 487 624 777 00040, RCS Nantes. Carte professionnelle Transactions sur immeubles et fonds de commerce (T) et Gestion immobilière (G) n° CPI 44[Coordonnées masquées]10 388 délivrée par la CCI Nantes - Saint Nazaire. Compte séquestre n°3[Coordonnées masquées] BPA SAINT-SEBASTIEN-SUR-LOIRE (44230) ; Garantie GALIAN - 89 rue de la Boétie, 75008 Paris - n°28137 J pour 2 000 000 euros pour T et 120 000 euros pour G. Assurance responsabilité civile professionnelle par MMA Entreprise n° de police 120.137.405

Mandat réf : 325 898. - Le professionnel garantit et sécurise votre projet immobilier.
Copropriété de 52 lots - dont 52 lots habitation. ().

Charges annuelles : 900 euros.
Jérôme BLANDIN-SIKLI (EI) Agent Commercial - Numéro RSAC : thonon les bains 483844122 - .
Voir plus

Référence: 394904BSJ
Bien en copropriété. Nombre de lots : 52. Charges de copropriété : 75 €.
Honoraires à la charge du vendeur.

Prêt immobilier

Vous souhaitez connaître votre capacité d’emprunt et trouver le meilleur crédit immobilier ?
Réaliser une simulation gratuite

Appartement à THONON-LES-BAINS
Appartement à THONON-LES-BAINS
Appartement à THONON-LES-BAINS
Appartement à THONON-LES-BAINS
Appartement à THONON-LES-BAINS
Appartement à THONON-LES-BAINS
Appartement à THONON-LES-BAINS
Ce site est protégé par reCAPTCHA la Politique de confidentialité et les Conditions d’utilisation de Google s’appliquent.
Obtenir un prêt immobilier au meilleur taux ?

En poursuivant votre navigation sans modifier vos paramètres, vous acceptez l'utilisation de cookies susceptibles de réaliser des statistiques de visite. Cliquez ici pour plus d'informations