Bénéficiez des services de nos partenaires locaux soigneusement sélectionnés
pour vous accompagner dans votre parcours d'achat immobilier

Immeuble à vendre rivesaltes

— Rivesaltes 66600 —
162 000 €
114 m²
5 pièces

Nos partenaires locaux
À vendre, un charmant Immeuble d'Angle à Rivesaltes!
Découvrez cette belle opportunité d'investissement au cœur de Rivesaltes ! Cet immeuble d'angle, plein de caractère, se compose de plusieurs niveaux offrant un fort potentiel.
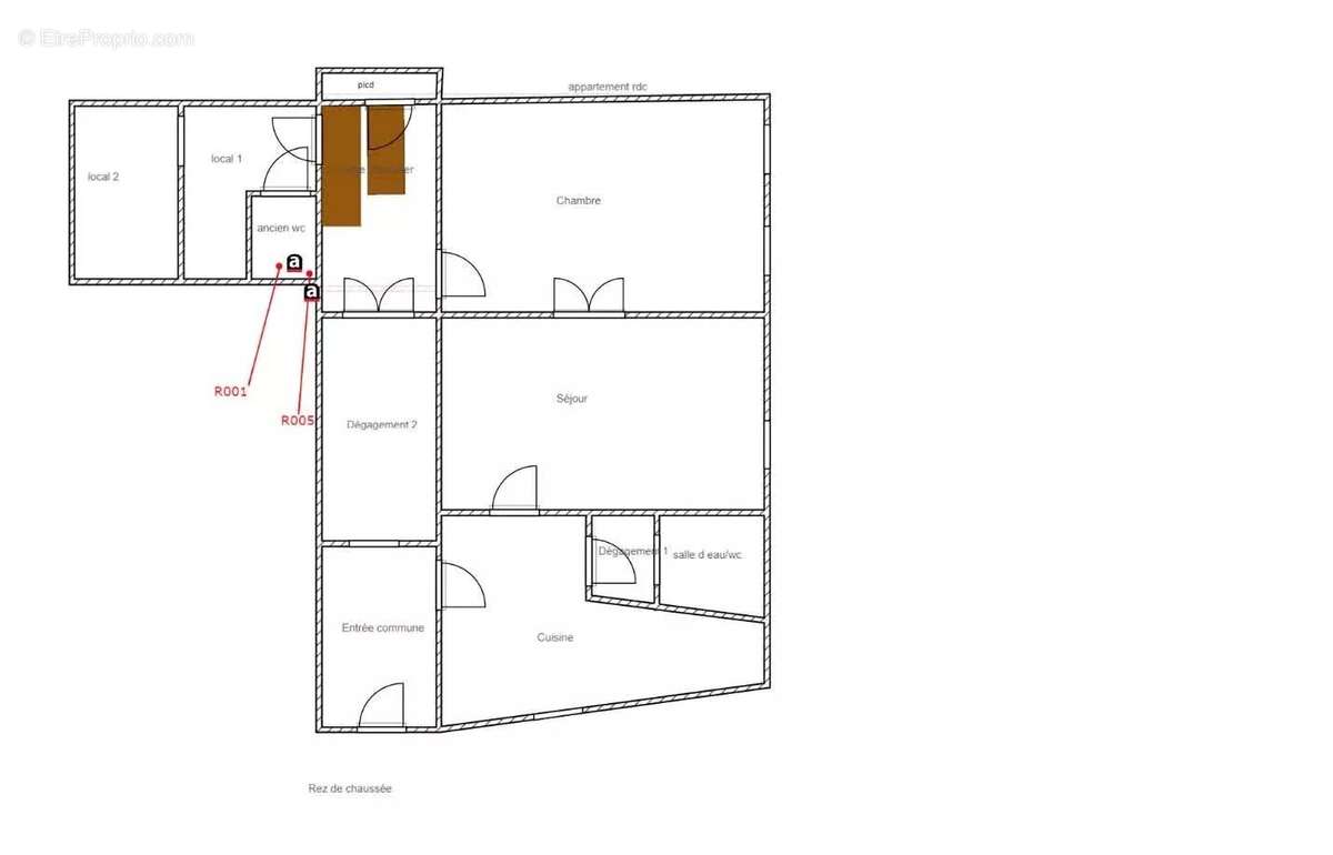
Au rez-de-chaussée; vous trouverez un appartement déjà loué, garantissant un revenu locatif immédiat. Idéal pour les investisseurs souhaitant bénéficier d'un retour sur investissement dès l'achat.
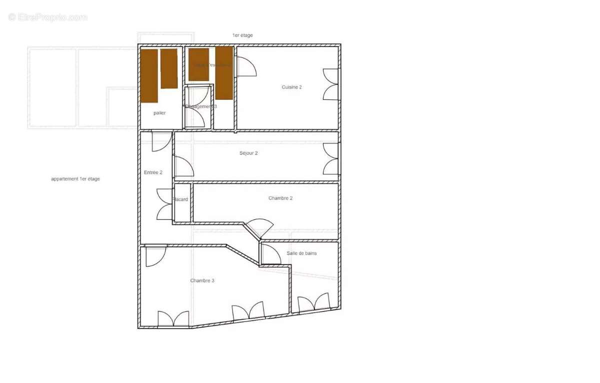
Au premier étage; un spacieux appartement T3 vous attend, parfait pour une famille ou des locataires à la recherche d'un cadre de vie agréable. Lumineux et bien agencé, cet espace de vie est idéal pour créer un nid douillé.
Au deuxième et dernier étage; un grand grenier offrant de nombreuses possibilités : aménageable en loft, espace de rangement ou même en appartement supplémentaire, selon vos envies et vos projets (sous conditions, bien entendu, des accords d'urbanismes nécessaires).
Situé dans un quartier dynamique, à proximité des commerces, écoles et transports, cet immeuble à de véritables atouts. Ne manquez pas l'occasion de devenir propriétaire de cet investissement attractif à Rivesaltes !Honoraires à charge vendeurs. Classe énergie : E
Voir plus

Référence: 85617300
Barème des honoraires
DPE
A
B
C
D
E
F
G
GES
A
B
C
D
E
F
G

Prêt immobilier

Vous souhaitez connaître votre capacité d’emprunt et trouver le meilleur crédit immobilier ?
Réaliser une simulation gratuite

Appartement à RIVESALTES
Appartement à RIVESALTES
Appartement à RIVESALTES
Appartement à RIVESALTES
Appartement à RIVESALTES
Appartement à RIVESALTES
Appartement à RIVESALTES
Appartement à RIVESALTES
Appartement à RIVESALTES
Appartement à RIVESALTES
Appartement à RIVESALTES
Appartement à RIVESALTES
Appartement à RIVESALTES
Appartement à RIVESALTES
Ce site est protégé par reCAPTCHA la Politique de confidentialité et les Conditions d’utilisation de Google s’appliquent.
Obtenir un prêt immobilier au meilleur taux ?

En poursuivant votre navigation sans modifier vos paramètres, vous acceptez l'utilisation de cookies susceptibles de réaliser des statistiques de visite. Cliquez ici pour plus d'informations