Appartement 103m² à decines-charpieu

— Decines-Charpieu 69150 —
250 000 €
103 m²
4 pièces
parkingascenseur

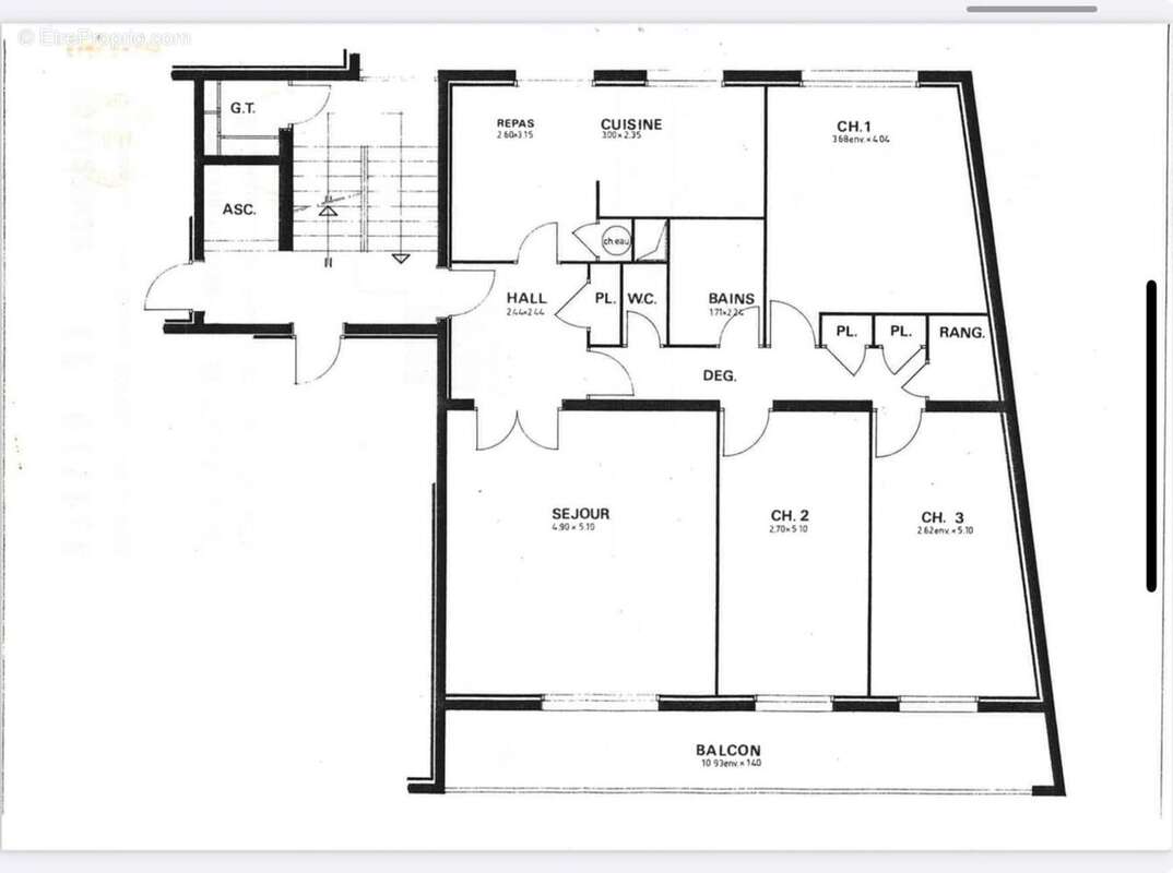
EXCLUSIVITÉ : Décines Centre, venez découvrir cet appartement idéalement bien situé qui se trouve à deux pas de l'arrêt du Tram et qui vous permettra de rejoindre Lyon en 30 min. Traversant et fonctionnel, ce grand T4 de 103,64 m² se situe dans une petite copropriété recherchée et sécurisée de 3 étages. Il se compose d'un Hall, d'une spacieuse cuisine dinatoire meublée indépendante, d'un séjour de 24 m², d'un espace nuit dans lequel se situe, 3 belles chambres (13,77; 13,99 et 15,44 m² ), un dressing, des rangements, 1 SDB et 1 toilette séparé. Le séjour et 2 chambres donnent sur une loggia fermée de 15,27 m². Font parti du lot, une cave, un garage et une place de parking privative. Prévoir travaux de rafraichissement. Copropriété comprenant 9 lots d'habitation, les charges annuelles s'élèvent à 2700 ¤ / An. Pas de procédures en cours. Certaines photos permettront de vous projeter.
Pour plus de renseignements : Hélène HERBEPIN au O6.64. 72.65. 12
Vous pouvez contacter Hélène HERBEPIN [Coordonnées masquées] [Coordonnées masquées].
Informations LOI ALUR :
Honoraires charge vendeur. (gedeon_5849_30718150)
Voir plus

Référence: 3749
Honoraires à la charge du vendeur.
DPE
A
B
C
D
E
F
G
GES
A
B
C
D
E
F
G

Prêt immobilier

Vous souhaitez connaître votre capacité d’emprunt et trouver le meilleur crédit immobilier ?
Réaliser une simulation gratuite

Photo 1 - Appartement à DECINES-CHARPIEU
Photo 1
Photo 2 - Appartement à DECINES-CHARPIEU
Photo 2
Photo 3 - Appartement à DECINES-CHARPIEU
Photo 3
Photo 4 - Appartement à DECINES-CHARPIEU
Photo 4
Photo 5 - Appartement à DECINES-CHARPIEU
Photo 5
Photo 6 - Appartement à DECINES-CHARPIEU
Photo 6
Photo 7 - Appartement à DECINES-CHARPIEU
Photo 7
Photo 8 - Appartement à DECINES-CHARPIEU
Photo 8
Photo 9 - Appartement à DECINES-CHARPIEU
Photo 9
Ce site est protégé par reCAPTCHA la Politique de confidentialité et les Conditions d’utilisation de Google s’appliquent.
Obtenir un prêt immobilier au meilleur taux ?

En poursuivant votre navigation sans modifier vos paramètres, vous acceptez l'utilisation de cookies susceptibles de réaliser des statistiques de visite. Cliquez ici pour plus d'informations