Bénéficiez des services de nos partenaires locaux soigneusement sélectionnés
pour vous accompagner dans votre parcours d'achat immobilier

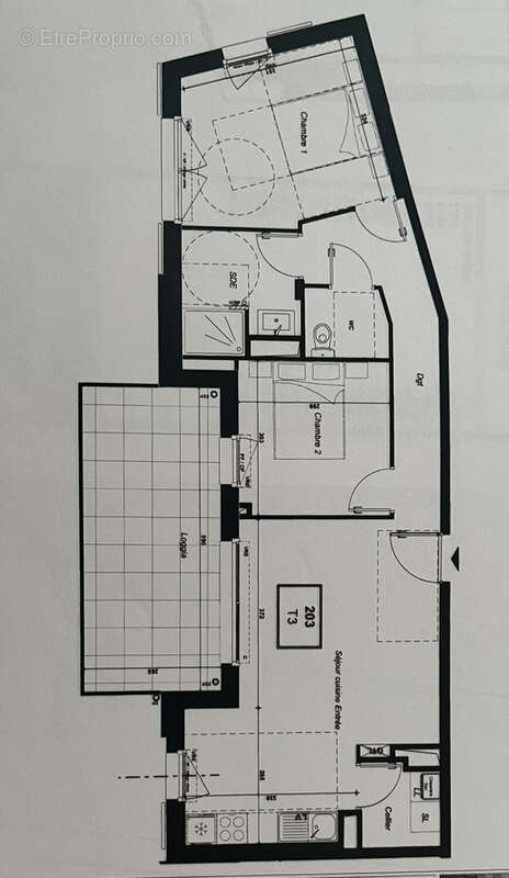
Appartement lumineux 64 m2-résidence de standing avec ascenseur- terrasse 16 m2, parking couvert et cave

— Saint-Sebastien-Sur-Loire 44230 —
280 500 €
64 m²
3 pièces
parkingbalcon/terrasse

Nos partenaires locaux
Situé dans une résidence de standing avec ascenseur, à proximité immédiate de toutes commodités, cet appartement lumineux de 64 m2 offre un cadre de vie agréable avec une belle terrasse avec une vue dégagée, une place de parking couverte et une cave. L’espace de vie se compose d’un salon convivial, d’un espace repas , ainsi que d’une cuisine aménagée et équipée, prolongée par une buanderie pour plus de praticité. Côté nuit, un dégagement dessert deux chambres, une salle d’eau moderne et un WC indépendant.

**Contactez-nous dès maintenant** pour plus d’informations ou pour organiser une visite !

carte professionnelle de ISADEC : SASU au capital de 100 000€ - RCS Nantes 892 978 909 - Siège social : 11 rue du chemin rouge CS17324 44300 NANTES - Titulaire de la carte professionnelle « Transaction sur immeubles et fonds de commerce » no CPI44[Coordonnées masquées]00017 délivrée par la CCI Nantes St Nazaire - RCP MMA IARD SA no00000[Coordonnées masquées]- Annonce rédigée par ISADEC -appartement d'une surface habitable de 64 m2, Prix du bien FAI: 300 000 € Honoraires à la charge du Vendeur. Date de réalisation du diagnostic énergétique 29/08/2019 www.georisques.gouv.fr - Annonce rédigée et publiée par un Agent Mandataire -
Voir plus

Bien en copropriété. Charges de copropriété : 1200 €.
Honoraires à la charge du vendeur.
Barème des honoraires
DPE
A
B
C
D
E
F
G
GES
A
B
C
D
E
F
G

Prêt immobilier

Vous souhaitez connaître votre capacité d’emprunt et trouver le meilleur crédit immobilier ?
Réaliser une simulation gratuite

Appartement à SAINT-SEBASTIEN-SUR-LOIRE
Appartement à SAINT-SEBASTIEN-SUR-LOIRE
Appartement à SAINT-SEBASTIEN-SUR-LOIRE
Appartement à SAINT-SEBASTIEN-SUR-LOIRE
Appartement à SAINT-SEBASTIEN-SUR-LOIRE
Appartement à SAINT-SEBASTIEN-SUR-LOIRE
Appartement à SAINT-SEBASTIEN-SUR-LOIRE
Appartement à SAINT-SEBASTIEN-SUR-LOIRE
Appartement à SAINT-SEBASTIEN-SUR-LOIRE
Ce site est protégé par reCAPTCHA la Politique de confidentialité et les Conditions d’utilisation de Google s’appliquent.
Obtenir un prêt immobilier au meilleur taux ?

En poursuivant votre navigation sans modifier vos paramètres, vous acceptez l'utilisation de cookies susceptibles de réaliser des statistiques de visite. Cliquez ici pour plus d'informations