Bénéficiez des services de nos partenaires locaux soigneusement sélectionnés
pour vous accompagner dans votre parcours d'achat immobilier

Appartement vue marne standing & potentiel a la varenne saint-hilaire

— Saint-Maur-Des-Fosses 94210 —
495 000 €
90 m²
4 pièces
parkingbalcon/terrasse

Nos partenaires locaux
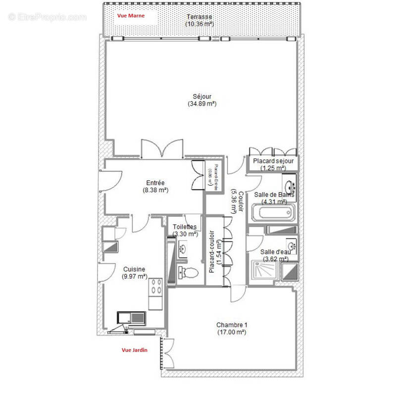
Vous rêvez d’un cadre de vie paisible tout en étant proche de tout ? Situé dans un quartier recherché de La Varenne Saint-Hilaire, à 8 minutes à pied du RER A, des commerces et du marché, cet appartement offre un emplacement privilégié et un potentiel unique. Dès l’entrée, vous serez séduit par les volumes généreux de ce 3 pièces de 90 m2 situé au 2e étage d’un immeuble de standing récemment ravalé (ITE 2022, parties communes rénovées en 2024). Son double séjour lumineux de 35 m2 s’ouvre sur un balcon-terrasse de 10 m2 offrant une vue dégagée sur la Marne, sans vis-à-vis. Une cuisine indépendante, une grande chambre de 17 m2 (avec possibilité d’aménagement en deux chambres), une salle de bains, une salle d’eau et de nombreux rangements complètent ce bien à fort potentiel de valorisation. Une cave et une place de parking extérieure complètent ce bien. Chauffage collectif au gaz. Travaux à prévoir pour en faire un cocon à votre image. Ne laissez pas passer cette opportunité rare ! Contactez-nous dès aujourd’hui pour organiser une visite. Copropriété de 79 lots - Charges annuelles de 6980 € - Honoraires agence charge vendeur - Dominique Sousa (EI) agent commercial RSAC Créteil 477 608 269.
Voir plus

Référence: 5264/3061
Bien en copropriété. Nombre de lots : 79. Charges de copropriété : 6980 €.
Honoraires à la charge du vendeur.
Barème des honoraires
DPE
A
B
C
D
E
F
G
GES
A
B
C
D
E
F
G
Appartement à SAINT-MAUR-DES-FOSSES
Appartement à SAINT-MAUR-DES-FOSSES
Appartement à SAINT-MAUR-DES-FOSSES
Appartement à SAINT-MAUR-DES-FOSSES
Appartement à SAINT-MAUR-DES-FOSSES
Appartement à SAINT-MAUR-DES-FOSSES
Appartement à SAINT-MAUR-DES-FOSSES
Appartement à SAINT-MAUR-DES-FOSSES
Appartement à SAINT-MAUR-DES-FOSSES
Appartement à SAINT-MAUR-DES-FOSSES
Géorisques

Les informations sur les risques auxquels ce bien est exposé sont disponibles sur le site Géorisques : www.georisques.gouv.fr

Ce site est protégé par hCaptcha Politique de confidentialité et Conditions d’utilisation s’appliquent.

En poursuivant votre navigation sans modifier vos paramètres, vous acceptez l'utilisation de cookies susceptibles de réaliser des statistiques de visite. Cliquez ici pour plus d'informations