En exclusivite superbe villa de caractere a stella-plage 5 chambres !

— Cucq 62780 —
599 000 €
168 m² / 850 m²
7 pièces
parkingbalcon/terrassejardin

Villa de Caractère en exclusivité à STELLA-PLAGE !








Une opportunité unique s'offre à vous avec cette somptueuse villa de caractère, alliant confort moderne et charme authentique.
Située dans un quartier paisible à proximité des commodités, cette propriété offre un style de vie incomparable tout en étant au calme.
Caractéristiques Principales :

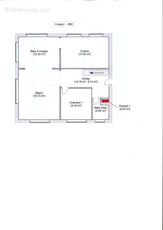
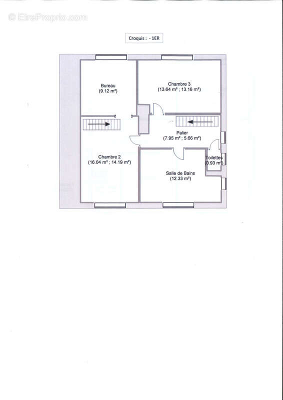
5 chambres spacieuses, dont 1 en rez-de-chaussée avec salle d'eau et wc
Séjour lumineux bénéficiant d'une triple exposition, inondant les espaces de vie de lumière naturelle tout au long de la journée.
Grande cuisine équipée séparée, idéale pour les passionnés de gastronomie, donnant accès à une vaste terrasse orientée Sud-Ouest, parfaite pour les repas en plein air et les moments de détente.
Bon état général, garantissant un confort immédiat et une vie sans tracas.
Jardin clôturé d'environ 850m2, magnifiquement aménagé, offrant intimité et espace pour vos loisirs en plein air.
Chalet en bois et dépendance offrant un espace de rangement supplémentaire et des possibilités d'aménagement selon vos besoins.
Parking aérien pour plusieurs véhicules, assurant praticité et facilité d'accès à votre domicile.

Localisation : Située dans un environnement boisé et paisible, cette villa bénéficie d'un cadre naturel préservé, propice à la détente et à la sérénité. À proximité immédiate des commerces.
Contactez-nous dès aujourd'hui au [Coordonnées masquées] ou au [Coordonnées masquées] pour organiser une visite (UNIQUEMENT SUR RENDEZ-VOUS)
Les informations sur les risques sont disponibles sur le site Géorisques : www.georisques.gouv.fr
Honoraire charge vendeur



 
 




Voir plus

Référence: 604MB.
Barème des honoraires
DPE
A
B
C
D
E
F
G
GES
A
B
C
D
E
F
G

Prêt immobilier

Vous souhaitez connaître votre capacité d’emprunt et trouver le meilleur crédit immobilier ?
Réaliser une simulation gratuite

Maison à CUCQ
Maison à CUCQ
Maison à CUCQ
Maison à CUCQ
Maison à CUCQ
Maison à CUCQ
Maison à CUCQ
Maison à CUCQ
Maison à CUCQ
Maison à CUCQ
Maison à CUCQ
Maison à CUCQ
Maison à CUCQ
Maison à CUCQ
Maison à CUCQ
Maison à CUCQ
Maison à CUCQ
Maison à CUCQ
Maison à CUCQ
Maison à CUCQ
Maison à CUCQ
Maison à CUCQ
Maison à CUCQ
Maison à CUCQ
Ce site est protégé par reCAPTCHA la Politique de confidentialité et les Conditions d’utilisation de Google s’appliquent.
Obtenir un prêt immobilier au meilleur taux ?

En poursuivant votre navigation sans modifier vos paramètres, vous acceptez l'utilisation de cookies susceptibles de réaliser des statistiques de visite. Cliquez ici pour plus d'informations