Retour a la vente - spécial investisseur - t2 meublé avec balcon en résidence de tourisme

— Balaruc-Les-Bains 34540 —
66 500 €
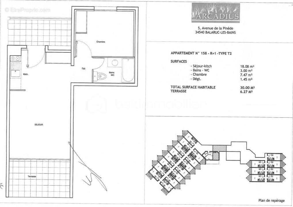
30 m²
2 pièces
balcon/terrasse

Dans une résidence de 2006 au coeur d'une pinède sur la colline dominant le bassin de Thau, investissez dans cet appartement T2 de 30m2 meublé avec balcon de près de 7m2, situé au 1er étage sur 3. Sous couvert d'un contrat de bail commercial avec la société GOELIA, garantissant un loyer annuel de 4.426€ HT (rentabilité brute de 6,65%), ce bien est idéal pour une constitution de patrimoine et/ou un complément de revenus retraite. Statut LMNP possible. A SAISIR !!!

Cette annonce référence 218889 vous est présentée par votre agent commercial BSK Immobilier OLIVIER CORTADELLAS (EI) immatriculé au RSAC de TOULOUSE (31000) sous le numéro 79181467600023.

Prix du bien : 66 500,00 €
Les honoraires d'agence sont à la charge du vendeur.

A propos de la copropriété :
Pas de procédure en cours.
Nombre de lots : 90
Charges prévisionnelles annuelles : 500,00 €

A propos des performances énergétiques :
Date de réalisation du diagnostic énergétique : 14/02/2024
Score DPE : 229 kWhEP/m²/an
Score GES : 26 kgepCO2/m²/an
Montant estimé des dépenses annuelles d'énergie pour un usage standard : entre 480.00 € et 700.00 € par an. Prix moyens des énergies indexés sur l'année 2023 (abonnements compris).

Les informations sur les risques auxquels ce bien est exposé sont disponibles sur le site Géorisques : www.georisques.gouv.fr
Voir plus

Référence: 218889
Bien en copropriété. Nombre de lots : 90. Charges de copropriété : 41 €.
Honoraires à la charge du vendeur.
DPE
A
B
C
D
E
F
G
GES
A
B
C
D
E
F
G

Prêt immobilier

Vous souhaitez connaître votre capacité d’emprunt et trouver le meilleur crédit immobilier ?
Réaliser une simulation gratuite

Appartement à BALARUC-LES-BAINS
Appartement à BALARUC-LES-BAINS
Appartement à BALARUC-LES-BAINS
Appartement à BALARUC-LES-BAINS
Appartement à BALARUC-LES-BAINS
Ce site est protégé par reCAPTCHA la Politique de confidentialité et les Conditions d’utilisation de Google s’appliquent.
Obtenir un prêt immobilier au meilleur taux ?

En poursuivant votre navigation sans modifier vos paramètres, vous acceptez l'utilisation de cookies susceptibles de réaliser des statistiques de visite. Cliquez ici pour plus d'informations