Bénéficiez des services de nos partenaires locaux soigneusement sélectionnés
pour vous accompagner dans votre parcours d'achat immobilier

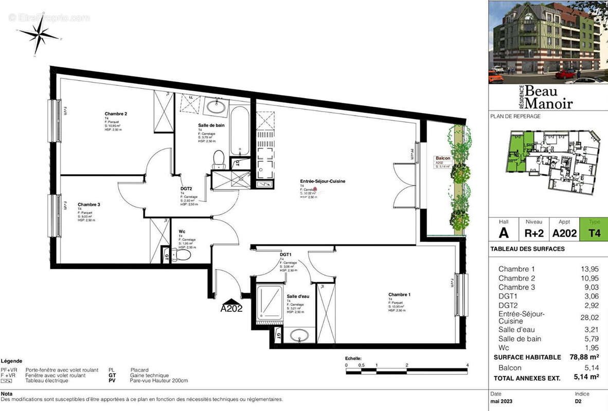
Appartement avec balcon et parking - residence securisee - rouen rive gauche - 4 pieces - 78.88 m² et 82.93 m²

— Rouen 76100 —
274 000 €
78 m²
4 pièces
parkingascenseur

Nos partenaires locaux
Vos agences ESPACE IMMO vous proposent à la vente ce bel appartement dans une nouvelle résidence "BEAU MANOIR", située sur Rouen Rive Gauche, à proximité de toutes commodités, jardins publics, équipements sportifs, écoles et commerces. Cette résidence se compose de 18 logements avec un parking en sous-sol permettant le stationnement des résidents. Elle se situe à proximité du parc Grammont doté d'une superficie de 29 000 m² adapté pour le sport, la détente et la promenade. D'une architecture soignée, la façade est dotée d'un style contemporain avec une inspiration néo-normande. Une végétation discrète agrémente le toit terrasse et les balcons privatifs. Les matériaux de façade sont en enduit de couleur gris clair et colombages dans les tons brun. Nous vous proposons cet appartement T4 situé au 2ème étage avec ascenseur comprenant : une entrée desservant un spacieux séjour-cuisine de 28.02 m², idéal pour recevoir vos convives, trois chambres dont une suite parentale avec salle d'eau, une salle de bains avec baignoire et un WC séparé. Vous disposerez d'un balcon afin de profiter des beaux jours et d'une place de parking privative en sous-sol sécurisé pour faciliter votre stationnement. Date de livraison prévue pour le 2ème trimestre 2025 ! !! FRAIS DE NOTAIRE REDUITS !! Un autre appartement T4 est encore disponible ! A partir de 274 000 euros. Faites de cet appartement votre nouveau cocon ! Contactez votre agence ESPACE IMMO - Pauline WEYRIG au [Coordonnées masquées] pour vous présenter ce beau projet. Un autre appartement T3 est disponible dans cette même résidence sous la référence 9237 !! Les informations sur les risques auxquels ce bien est exposé sont disponibles sur le site Géorisques : www.georisques.gouv.fr.
Voir plus

Référence: 1706
Honoraires à la charge du vendeur.
Barème des honoraires
Appartement à ROUEN
Appartement à ROUEN
Géorisques

Les informations sur les risques auxquels ce bien est exposé sont disponibles sur le site Géorisques : www.georisques.gouv.fr

Ce site est protégé par hCaptcha Politique de confidentialité et Conditions d’utilisation s’appliquent.

En poursuivant votre navigation sans modifier vos paramètres, vous acceptez l'utilisation de cookies susceptibles de réaliser des statistiques de visite. Cliquez ici pour plus d'informations