Bénéficiez des services de nos partenaires locaux soigneusement sélectionnés
pour vous accompagner dans votre parcours d'achat immobilier

Maison de village 225 m2 6 pièces - jardin

— Jardin 38200 —
370 000 €
207 m²
6 pièces
balcon/terrasse

Nos partenaires locaux
Située dans la paisible commune de Jardin (38200), l'agence Espaces et Lieux a le plaisir de vous présenter cette agréable maison de village d’une superficie totale de 225 m2.
Proche du centre-ville de Vienne et à 8 minutes de la gare, cette maison récemment rénovée, qui s’élève sur 3 niveaux, bénéficie au rez-de-chaussée d’une spacieuse pièce de vie d’environ 77 m2 composée d’un séjour et d’une cuisine ouverte avec un accès direct à une terrasse de 40 m2 propice à la détente en famille ou entre amis.
Au 1er étage, se trouve une première chambre de 18 m2, une salle de bains, un WC indépendant, ainsi qu’une suite parentale de 26 m2 avec son dressing et sa salle de douche.
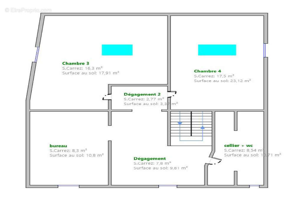
Au 2ème et dernier étage, vous profiterez de deux grandes chambres d’environ 17 m2 chacune, d'un WC indépendant, d'un espace de rangements (transformable en salle de bains), ainsi que d’une dernière pièce aménageable en salle de jeux, bibliothèque ou bureau.
Enfin, la maison bénéficie d’une buanderie et d’une cave de 25 m2.

Entre campagne et ville, cette maison saura séduire entre autres les citadins amoureux de la nature.

La terrasse sera entièrement carrelée avant la vente.

Les informations sur les risques auxquels ce bien est exposé sont disponibles sur le site www.géorisques.fr Nous sommes là pour vous ! Le stress associé à la recherche ou à la vente de votre logement est grandement diminué car nous gérons votre projet à 100 [percent] et mettons à votre service notre connaissance de l’immobilier. Espaces et Lieux est là pour faire de cette aventure une expérience résolument réussie et inoubliable, en mettant tout en œuvre pour votre confort, avec de nombreux services, comme une conciergerie, la visite virtuel à 360o en vidéo conférence, un interlocuteur unique, découvrez tous nos services sur www.espacesetlieux.fr
Voir plus

Référence: 213
Honoraires à la charge du vendeur.
Barème des honoraires
DPE
A
B
C
D
E
F
G
GES
A
B
C
D
E
F
G

Prêt immobilier

Vous souhaitez connaître votre capacité d’emprunt et trouver le meilleur crédit immobilier ?
Réaliser une simulation gratuite

Maison à JARDIN
Maison à JARDIN
Maison à JARDIN
Maison à JARDIN
Maison à JARDIN
Maison à JARDIN
Maison à JARDIN
Maison à JARDIN
Maison à JARDIN
Maison à JARDIN
Maison à JARDIN
Maison à JARDIN
Maison à JARDIN
Maison à JARDIN
Maison à JARDIN
Maison à JARDIN
Maison à JARDIN
Maison à JARDIN
Ce site est protégé par reCAPTCHA la Politique de confidentialité et les Conditions d’utilisation de Google s’appliquent.
Obtenir un prêt immobilier au meilleur taux ?

En poursuivant votre navigation sans modifier vos paramètres, vous acceptez l'utilisation de cookies susceptibles de réaliser des statistiques de visite. Cliquez ici pour plus d'informations