Bénéficiez des services de nos partenaires locaux soigneusement sélectionnés
pour vous accompagner dans votre parcours d'achat immobilier

Appartement 3 pièces dans la résidence hanami

— Tours-En-Savoie 73790 —
225 000 €
63 m²
3 pièces

Nos partenaires locaux
J'ai le plaisir de vous proposer à la vente la nouvelle résidence Hanami, idéalement située au coeur du village de Tours-en-Savoie, un lieu prisé pour sa proximité avec Albertville et son panorama dégagé sur les sommets environnants, notamment La Belle Étoile.

Cette résidence vous propose 20 appartements sur deux bâtiments allant du 2 au 5 pièces.
Chaque appartement bénéficie d'un espace extérieur, un cellier et un garage.

La situation même de cette résidence, au carrefour des quatre vallées, vous donne un accès facile aux stations de sports d'hiver comme Les Saisies, Arêches-Beaufort, Crest-Voland ou La Plagne.

Situé au coeur des Alpes, Hanami bénéficie d'un accès privilégié à de nombreux sentiers de randonnée, idéal pour les passionnés de nature. Sa proximité avec Albertville permet aux familles résidant à l'année de profiter facilement des commerces, services et transports.

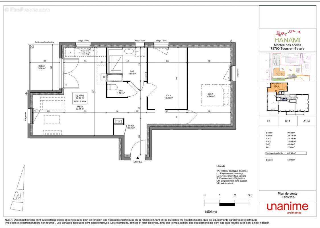
Cet appartement 3 pièces, qui se trouve au 1er étage, vous offre une pièce de vie donnant sur un balcon plein Ouest, 2 chambres, une salle de douches, un wc séparé, un cellier et un garage.

Surface : 63,33 m2
Non soumis au DPE
Prix de l'appartement : 225 000 euros
Honoraires à la charge vendeur.

Consommation énergie primaire : Non communiqué
Consommation énergie finale : Non communiqué

A propos de la copropriété :
Pas de procédure en cours
Statut provisoire du syndicat : Pas de procédure en cours
Nombre de lots : 50
Charges prévisionnelles annuelles : 700 euros

Pour visiter et vous accompagner dans votre projet, contactez Clara BUGAND-BUGANDET, au [Coordonnées masquées] ou par courriel à [Coordonnées masquées]

Selon l'article L.561.5 du Code Monétaire et Financier, pour l'organisation de la visite, la présentation d'une pièce d'identité vous sera demandée.
Cette vente est garantie 12 mois.

Cette présente annonce a été rédigée sous la responsabilité éditoriale de Clara BUGAND-BUGANDET agissant sous le statut d'agent commercial immatriculé au RSAC 925247231 auprès de la SAS PROPRIETES PRIVEES, au capital de 44 920 euros, ZAC LE CHÊNE FERRÉ - 44 ALLÉE DES CINQ CONTINENTS 44120 VERTOU; SIRET 487 624 777 00040, RCS Nantes. Carte professionnelle Transactions sur immeubles et fonds de commerce (T) et Gestion immobilière (G) n° CPI 44[Coordonnées masquées]10 388 délivrée par la CCI Nantes - Saint Nazaire. Compte séquestre n°3[Coordonnées masquées] BPA SAINT-SEBASTIEN-SUR-LOIRE (44230) ; Garantie GALIAN - 89 rue de la Boétie, 75008 Paris - n°28137 J pour 2 000 000 euros pour T et 120 000 euros pour G. Assurance responsabilité civile professionnelle par MMA Entreprise n° de police 120.137.405

Mandat réf : 388947- Le professionnel garantit et sécurise votre projet immobilier.

Clara BUGAND-BUGANDET (EI) Agent Commercial - Numéro RSAC : 925247231 - .

Clara BUGAND-BUGANDET (EI) Agent Commercial - Numéro RSAC : 925247231 - .
Voir plus

Référence: 388947BUGA
Honoraires à la charge du vendeur.

Prêt immobilier

Vous souhaitez connaître votre capacité d’emprunt et trouver le meilleur crédit immobilier ?
Réaliser une simulation gratuite

Appartement à TOURS-EN-SAVOIE
Appartement à TOURS-EN-SAVOIE
Appartement à TOURS-EN-SAVOIE
Ce site est protégé par reCAPTCHA la Politique de confidentialité et les Conditions d’utilisation de Google s’appliquent.
Obtenir un prêt immobilier au meilleur taux ?

En poursuivant votre navigation sans modifier vos paramètres, vous acceptez l'utilisation de cookies susceptibles de réaliser des statistiques de visite. Cliquez ici pour plus d'informations