Centre ville de poix

— Poix-De-Picardie 80290 —
230 000 €
68 m²
3 pièces

Appartement neuf situé dans le centre ville de Poix à proximité immédiate de tous les commerces et services.
Résidence de 20 logements avec ascenseur, parking et jardin. Belles prestations.
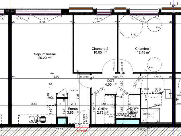
Logement d'une surface d'environ 67,55m2 comprenant : entrée, cuisine ouverte sur séjour, 2 chambres, salle de douche, wc et cellier.
Pompe à chaleur individuelle avec plancher chauffant. Menuiseries en aluminium.
Résidence sécurisée.
Possibilité d'acquérir une place dans le parking couvert et fermé situé en rez-de-chaussée.
N'hésitez pas à nous contacter pour plus d'informations. D'autres appartements sont encore disponibles (avec terrasse ou balcon).
Voir plus

Honoraires à la charge du vendeur.
Barème des honoraires

Prêt immobilier

Vous souhaitez connaître votre capacité d’emprunt et trouver le meilleur crédit immobilier ?
Réaliser une simulation gratuite

Appartement à POIX-DE-PICARDIE
Appartement à POIX-DE-PICARDIE
Appartement à POIX-DE-PICARDIE
Appartement à POIX-DE-PICARDIE
Appartement à POIX-DE-PICARDIE
Ce site est protégé par reCAPTCHA la Politique de confidentialité et les Conditions d’utilisation de Google s’appliquent.
Obtenir un prêt immobilier au meilleur taux ?

En poursuivant votre navigation sans modifier vos paramètres, vous acceptez l'utilisation de cookies susceptibles de réaliser des statistiques de visite. Cliquez ici pour plus d'informations