Bénéficiez des services de nos partenaires locaux soigneusement sélectionnés
pour vous accompagner dans votre parcours d'achat immobilier

Appartement à aménager avec son jardinet privatif

— Bourges 18000 —
100 440 €
47 m²
2 pièces
balcon/terrasse

Nos partenaires locaux
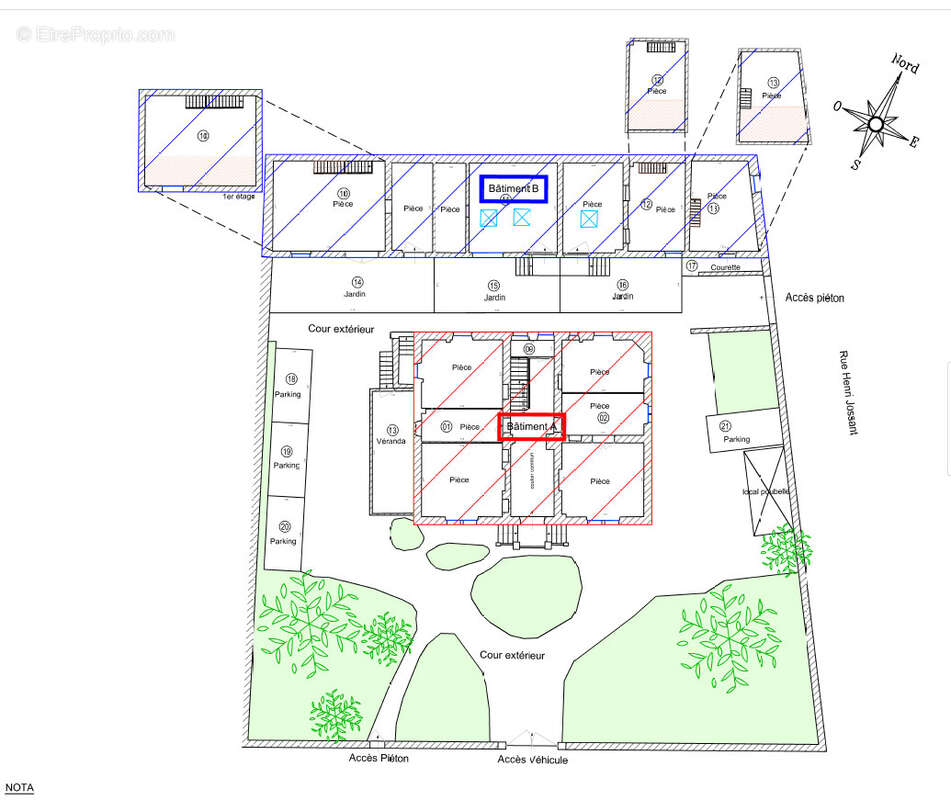
Au sein d’une copropriété en cours de création composée de 13 lots : un bâtiment principal, une maison de maître divisée en huit appartements, ainsi qu’une longère comprenant quatre appartements avec jardinets privatifs.
Plateau brut de deux pièces, d'une surface de 47.10m2 avec possibilité d’aménager une mezzanine ave partie exterieure privative.
Prestations : huisseries neuves, raccordements aux réseaux d’eau, d’électricité et de fibre.
Parties communes : les travaux comprendront la toiture, la structure, la façade, les chemins d’accès, ainsi que le ravalement de la façade et du pignon côté rue, conformément aux recommandations des Architectes des Bâtiments de France (ABF). Toutes les fenêtres, portes et Velux seront remplacés selon leurs prescriptions.
Voir plus

Référence: 1721
Bien en copropriété. Nombre de lots : 12.
Honoraires d'agence de 8% à la charge de l'acquéreur
Barème des honoraires

Prêt immobilier

Vous souhaitez connaître votre capacité d’emprunt et trouver le meilleur crédit immobilier ?
Réaliser une simulation gratuite

Appartement à BOURGES
Appartement à BOURGES
Appartement à BOURGES
Appartement à BOURGES
Appartement à BOURGES
Appartement à BOURGES
Appartement à BOURGES
Appartement à BOURGES
Ce site est protégé par reCAPTCHA la Politique de confidentialité et les Conditions d’utilisation de Google s’appliquent.
Obtenir un prêt immobilier au meilleur taux ?

En poursuivant votre navigation sans modifier vos paramètres, vous acceptez l'utilisation de cookies susceptibles de réaliser des statistiques de visite. Cliquez ici pour plus d'informations