Maison t6 maure-de-bretagne

— Maure-De-Bretagne 35330 —
221 600 €
131 m² / 686 m²
6 pièces
parking

Aurélie Hamelin vous propose ce bien :

Investissement locatif ou projet à long terme

Découvrez cette maison de 131 m² construite en 2005, nichée dans un lotissement paisible de Maure-de-Bretagne, à seulement 30 minutes de Rennes. Ce bien représente une opportunité unique pour les investisseurs avisés ou les futurs propriétaires à la recherche d'un habitat fonctionnel et lumineux.

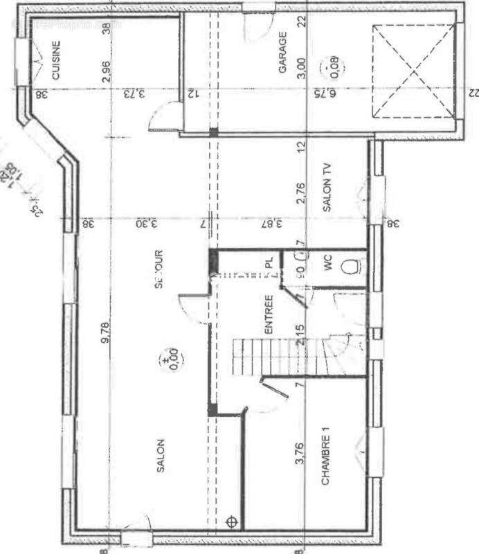
Au rez-de-chaussée, vous serez accueilli par un spacieux salon-séjour baigné de lumière naturelle, complété par un poêle à pellets qui offre un chauffage économique et chaleureux. La cuisine équipée et aménagée ouverte attenante crée un espace de vie convivial et pratique. Une première chambre, une buanderie et un placard dans l'entrée et des WC séparés complètent ce niveau.

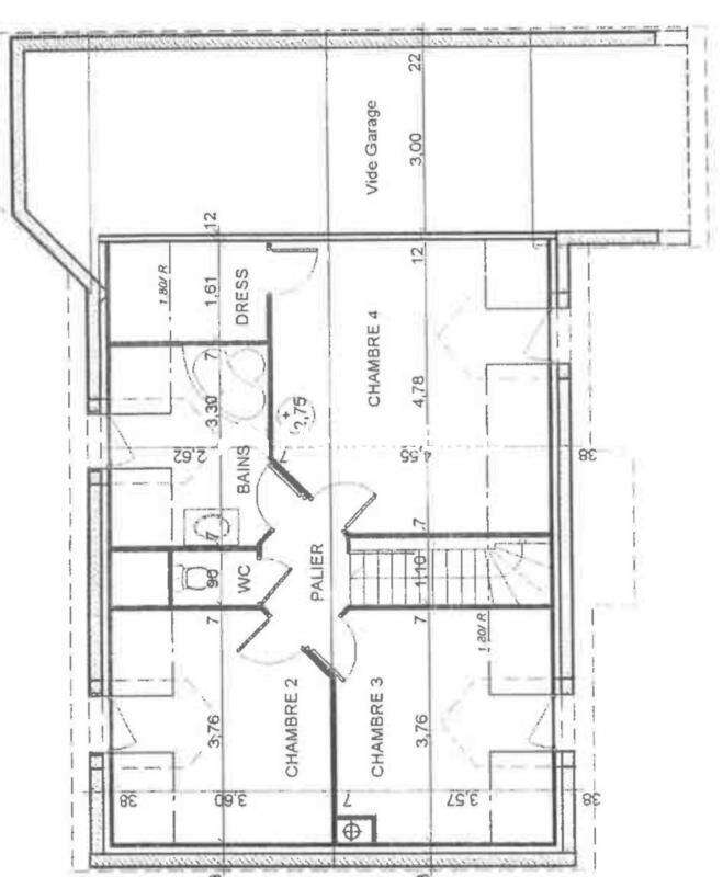
A l'étage un palier dessert trois grandes chambres parfaites pour une famille, desservies par une vaste salle de bain et des WC séparés. Un généreux grenier aménageable situé au-dessus du garage attend vos projets : bureau, salle de jeux ou espace de rangement supplémentaire selon vos besoins.

Le terrain, en partie clos, offre un potentiel d'aménagement pour satisfaire vos envies de personnalisation. Un portail reste à prévoir pour parfaire la sécurité et l'agrément extérieur. Un chalet de jardin est également installé au fond du jardin .

Actuellement louée avec un bail courant jusqu'en mi-2026, la propriété génère un loyer mensuel de 1 058 €, ce qui en fait un investissement attractif.

Maure-de-Bretagne vous séduira par son cadre de vie agréable, sa proximité des écoles, commerces et services.

Pour plus d'informations ou pour organiser une visite, contactez-moi dès aujourd'hui et laissez-vous séduire par cette maison au fort potentiel !\nLes informations sur les risques auxquels ce bien est exposé sont disponibles sur le site Géorisques : www.georisques.gouv.fr
Voir plus

Référence: MB1237603694
DPE
A
B
C
D
E
F
G
GES
A
B
C
D
E
F
G

Prêt immobilier

Vous souhaitez connaître votre capacité d’emprunt et trouver le meilleur crédit immobilier ?
Réaliser une simulation gratuite

Maison à MAURE-DE-BRETAGNE
Maison à MAURE-DE-BRETAGNE
Maison à MAURE-DE-BRETAGNE
Maison à MAURE-DE-BRETAGNE
Maison à MAURE-DE-BRETAGNE
Maison à MAURE-DE-BRETAGNE
Ce site est protégé par reCAPTCHA la Politique de confidentialité et les Conditions d’utilisation de Google s’appliquent.
Obtenir un prêt immobilier au meilleur taux ?

En poursuivant votre navigation sans modifier vos paramètres, vous acceptez l'utilisation de cookies susceptibles de réaliser des statistiques de visite. Cliquez ici pour plus d'informations