Bénéficiez des services de nos partenaires locaux soigneusement sélectionnés
pour vous accompagner dans votre parcours d'achat immobilier

Villa à carnoux-en-provence emplacement idéal, travaux à prévoir

— Carnoux-En-Provence 13470 —
526 000 €
109 m² / 920 m²
4 pièces
parkingjardin

Nos partenaires locaux
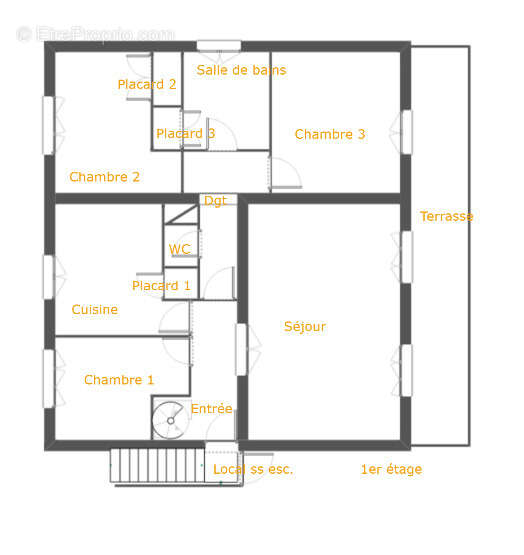
Située à Carnoux-en-Provence, cette belle villa offre un cadre de vie paisible et agréable sur une parcelle de 920 m2.
Au rez-de-chaussée, une entrée mène à un séjour lumineux ouvrant sur une terrasse. La cuisine, accompagnée de son arrière-cuisine, trois chambres, une salle de bain et un WC indépendant complètent cet espace de vie.
Au rez-de-jardin, un grand sous-sol avec atelier ainsi qu’un garage permettent de nombreux aménagements.
Située dans un quartier recherché, cette villa bénéficie d’un emplacement privilégié à proximité des commodités et des axes principaux. Des travaux sont à prévoir pour en exploiter tout le potentiel. Une opportunité à saisir. Contactez-nous dès maintenant pour une visite.
Voir plus

Référence: 3080
Honoraires à la charge du vendeur.
Barème des honoraires
DPE
A
B
C
D
E
F
G
GES
A
B
C
D
E
F
G

Prêt immobilier

Vous souhaitez connaître votre capacité d’emprunt et trouver le meilleur crédit immobilier ?
Réaliser une simulation gratuite

Maison à CARNOUX-EN-PROVENCE
Maison à CARNOUX-EN-PROVENCE
Maison à CARNOUX-EN-PROVENCE
Maison à CARNOUX-EN-PROVENCE
Maison à CARNOUX-EN-PROVENCE
Maison à CARNOUX-EN-PROVENCE
Maison à CARNOUX-EN-PROVENCE
Maison à CARNOUX-EN-PROVENCE
Maison à CARNOUX-EN-PROVENCE
Maison à CARNOUX-EN-PROVENCE
Ce site est protégé par reCAPTCHA la Politique de confidentialité et les Conditions d’utilisation de Google s’appliquent.
Obtenir un prêt immobilier au meilleur taux ?

En poursuivant votre navigation sans modifier vos paramètres, vous acceptez l'utilisation de cookies susceptibles de réaliser des statistiques de visite. Cliquez ici pour plus d'informations