Maison 273m² à brugnens

— Brugnens 32500 —
398 000 €
273 m² / 3 000 m²
6 pièces
parkingbalcon/terrassejardinpiscine

Le bonheur à la Campagne
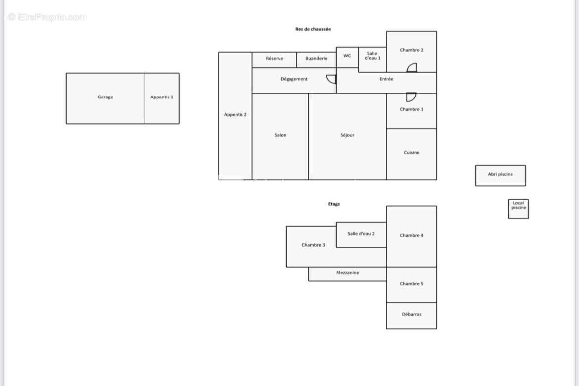
Venez poser vos valises, pour des ''vacances permanentes'' ou en résidence secondaire, dans cette très grande et charmante maison ancienne rénovée avec soin, située près de la ville de Fleurance. A proximité de toutes les commodités nécessaires (centres commerciaux - écoles - bases de loisirs),à seulement 1h00 de Toulouse et 30 minutes d'Auch et d'Agen, vous pourrez profiter toute l'année du confort et du calme ambiant de cette maison d'environ 273 m² habitables, composée de 5 chambres.
Sur 2 niveaux, la maison offre au RDC, un vaste séjour très lumineux agrémenté d' une très grande cheminée, une ancienne étable aménagée en salle de jeux, une cuisine indépendante entièrement rénovée et équipée, 2 chambres, 1 salle d'eau, et 1 WC.
À l'étage, vous disposerez de 3 chambres dont 1 suite parentale (avec salle d'eau et WC), une chambre ouverte pourra se transformer en bureau, salon, salle de jeux ou bibliothèque si vous le souhaitez.
Coté extérieur, un double garage avec appentis couvert, un puits, une grande et belle piscine, une cuisine d'été, garnissent ce grand et magnifique terrain.
Pour tout renseignement et/ou visite, je me tiens à votre disposition au [Coordonnées masquées] : Mylène Serres, RSAC 813 582 228, agent commercial immobilier à la bonne porte.
Les informations sur les risques auxquels ce bien est exposé sont disponibles sur le site Géorisques : wwwgeorisques.gouv.fr
Voir plus

Référence: 857V165M
Honoraires à la charge du vendeur.
DPE
A
B
C
D
E
F
G
GES
A
B
C
D
E
F
G

Prêt immobilier

Vous souhaitez connaître votre capacité d’emprunt et trouver le meilleur crédit immobilier ?
Réaliser une simulation gratuite

Maison à BRUGNENS
Maison à BRUGNENS
Maison à BRUGNENS
Maison à BRUGNENS
Maison à BRUGNENS
Maison à BRUGNENS
Maison à BRUGNENS
Maison à BRUGNENS
Maison à BRUGNENS
Ce site est protégé par reCAPTCHA la Politique de confidentialité et les Conditions d’utilisation de Google s’appliquent.
Obtenir un prêt immobilier au meilleur taux ?

En poursuivant votre navigation sans modifier vos paramètres, vous acceptez l'utilisation de cookies susceptibles de réaliser des statistiques de visite. Cliquez ici pour plus d'informations