Bénéficiez des services de nos partenaires locaux soigneusement sélectionnés
pour vous accompagner dans votre parcours d'achat immobilier

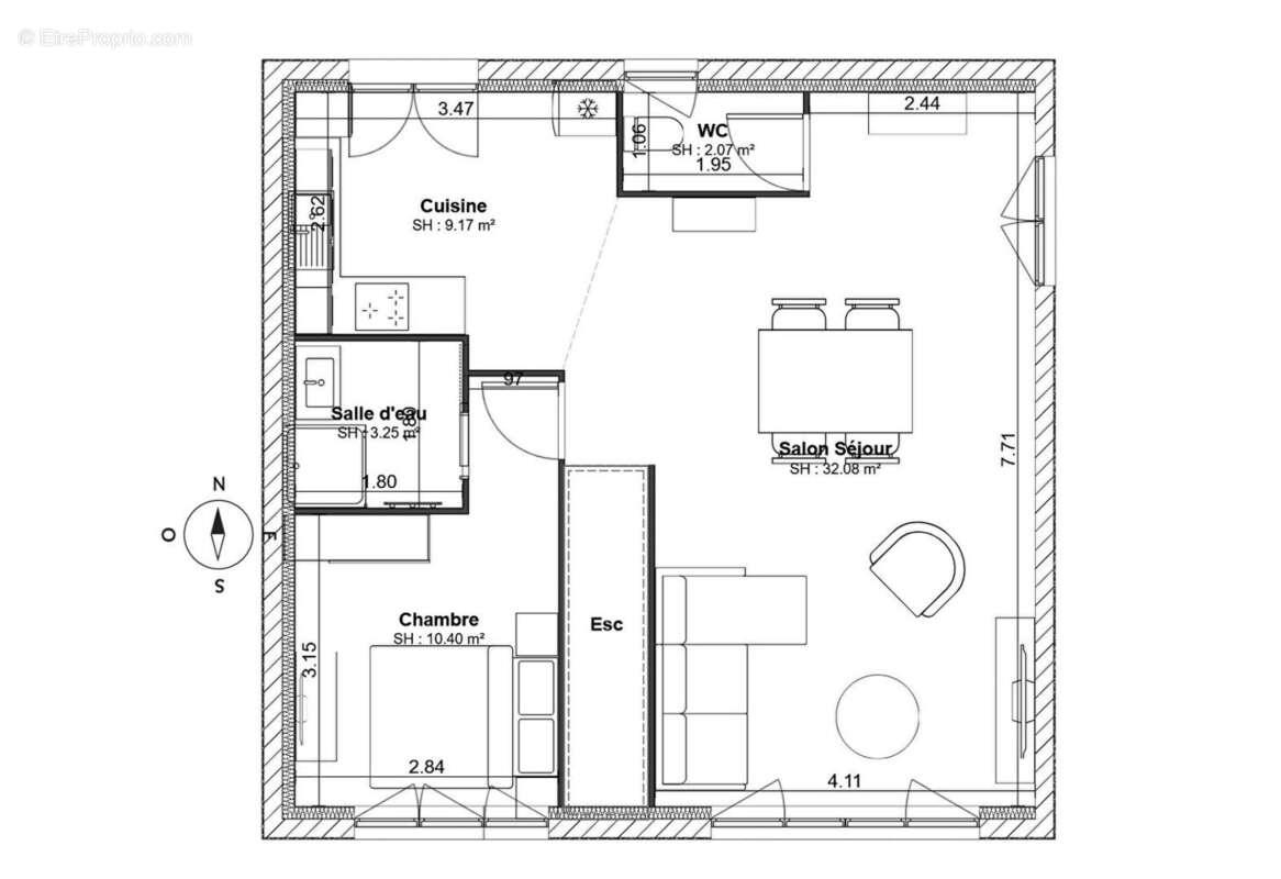
Maison merignac centre, hotel de ville 6 pièces 106 m2

— Merignac 33700 —
371 000 €
106 m² / 575 m²
6 pièces
parkingbalcon/terrassejardin

Nos partenaires locaux
En Exclusivité Maison familiale avec jardin Mérignac Centre Une adresse prisée, un cadre de vie rare Nichée au coeur de Mérignac Centre, à quelques pas de l'Hôtel de Ville et des écoles, cette maison des années 1950 dévoile un fort potentiel de transformation dans un environnement calme, verdoyant et recherché. Édifiée sur une belle parcelle arborée de 575 m², elle développe 106 m² habitables, répartis sur deux niveaux, offrant de multiples possibilités d'aménagement pour une vie de famille confortable et élégante. Caractéristiques principales Superficie : 106 m² habitables (potentiel évolutif) Parcelle : 575 m², sans vis-à-vis, exposée sud-ouest Espaces de vie : Séjour double lumineux de 30 m² Cuisine indépendante avec accès direct à la terrasse et au jardin 4 chambres possibilité d'une 5eme à l'étage Salle de bains, WC séparés Annexes : Garage attenant Stationnement possible sur la parcelle Les atouts Emplacement exceptionnel : tout se fait à pied (tram A, écoles, commerces, services) Calme absolu : dans une rue résidentielle paisible Beau jardin exposé sud-ouest : idéal pour une vie en extérieur, piscine envisageable Maison saine et lumineuse : à rénover selon vos goûts Potentiel familial et patrimonial : idéal pour une résidence principale de standing ou un projet de valorisation En résumé Un bien rare, exclusivement proposé à la vente, qui conjugue emplacement stratégique, cadre de vie privilégié et potentiel de réinvention, dans l'un des secteurs les plus convoités de l'agglomération bordelaise. (6.00 % honoraires TTC à la charge de l'acquéreur.) Lucas MAINGUET (EI) Agent Commercial - Numéro RSAC : 81866198500023 - Bordeaux.
Voir plus

Référence: 10028
Honoraires d'agence de 6% à la charge de l'acquéreur
Barème des honoraires
DPE
A
B
C
D
E
F
G
GES
A
B
C
D
E
F
G

Prêt immobilier

Vous souhaitez connaître votre capacité d’emprunt et trouver le meilleur crédit immobilier ?
Réaliser une simulation gratuite

Maison à MERIGNAC
Maison à MERIGNAC
Maison à MERIGNAC
Maison à MERIGNAC
Maison à MERIGNAC
Maison à MERIGNAC
Maison à MERIGNAC
Maison à MERIGNAC
Maison à MERIGNAC
Maison à MERIGNAC
Maison à MERIGNAC
Maison à MERIGNAC
Maison à MERIGNAC
Ce site est protégé par reCAPTCHA la Politique de confidentialité et les Conditions d’utilisation de Google s’appliquent.
Obtenir un prêt immobilier au meilleur taux ?

En poursuivant votre navigation sans modifier vos paramètres, vous acceptez l'utilisation de cookies susceptibles de réaliser des statistiques de visite. Cliquez ici pour plus d'informations