Bénéficiez des services de nos partenaires locaux soigneusement sélectionnés
pour vous accompagner dans votre parcours d'achat immobilier

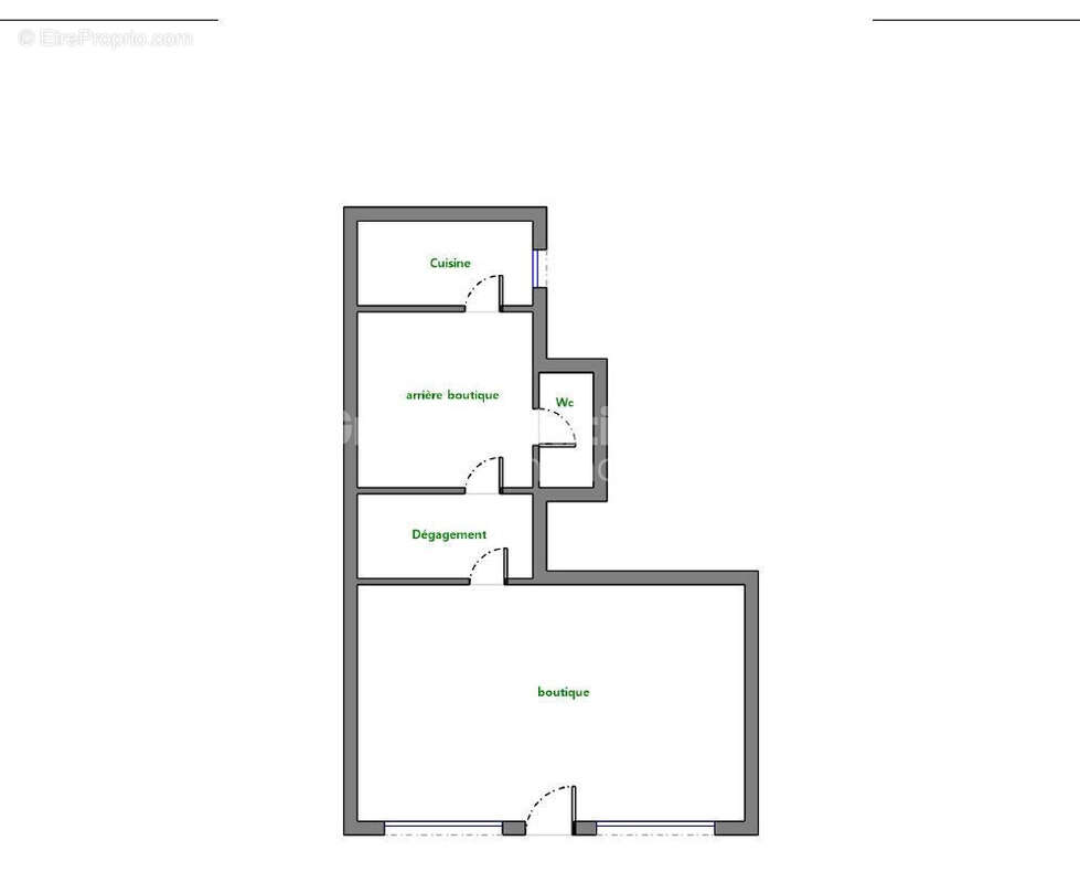
Quartier st louis- local commercial 62m² avec vitrine sur rue

— Versailles 78000 —
315 000 €
62 m²

Nos partenaires locaux
Rue de l'Orangerie local de 62m² comprenant : - 5m linéaires de vitrine sur la passante rue de l'Orangerie à Versailles - Boutique sur rue de 30m² - 2 réserves : 9 + 12m² à l'arrière - cuisine aménagée et sanitaire. - grenier au 5ème étage du bâtiment ( sans ascenseur) - 2 entrées indépendantes : une par la vitrine sur rue, une par le hall intérieur de l'immeuble ( portes rouges sur les photos); possibilité de scinder les espaces avant / arrière facilement. Le règlement de la copropriété autorise tous commerces et professions libérales sauf nuisances ( pas de restauration, ni activités sonores ou odorantes ni animaux). FAIBLES CHARGES - tout individuel ( eau chaude / chauffage électrique) Une toute petite marche à l'entrée du local < 3cm de hauteur Bail commercial 3/6/9 en cours à 2200 euros HT HC- locataire en cours de préavis de départ - libération du local 1er juillet 2025 Des TRAVAUX sont à prévoir pour rénovation partie arrière. Taxe foncière 1007 euros (5.00 % honoraires TTC à la charge de l'acquéreur.) Copropriété de 60 lots - dont 20 lots habitation. (Pas de procédure en cours). Charges annuelles : 1240 euros.
Voir plus

Référence: 9579
Bien en copropriété. Nombre de lots : 60. Charges de copropriété : 1240 €.
Honoraires d'agence de 5% à la charge de l'acquéreur
Barème des honoraires
DPE
A
B
C
D
E
F
G
GES
A
B
C
D
E
F
G

Prêt immobilier

Vous souhaitez connaître votre capacité d’emprunt et trouver le meilleur crédit immobilier ?
Réaliser une simulation gratuite

Commerce à VERSAILLES
Commerce à VERSAILLES
Commerce à VERSAILLES
Commerce à VERSAILLES
Commerce à VERSAILLES
Commerce à VERSAILLES
Ce site est protégé par reCAPTCHA la Politique de confidentialité et les Conditions d’utilisation de Google s’appliquent.
Obtenir un prêt immobilier au meilleur taux ?

En poursuivant votre navigation sans modifier vos paramètres, vous acceptez l'utilisation de cookies susceptibles de réaliser des statistiques de visite. Cliquez ici pour plus d'informations