Bénéficiez des services de nos partenaires locaux soigneusement sélectionnés
pour vous accompagner dans votre parcours d'achat immobilier

Appartement 111m² à floirac

— Floirac 33270 —
300 000 €
111 m²
4 pièces
parkingbalcon/terrasse

Nos partenaires locaux
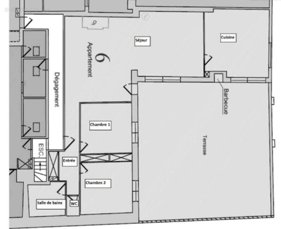
À VENDRE – APPARTEMENT 112 m² À RÉNOVER – FLOIRAC CENTRE – TERRASSE 90 M² SANS VIS-À-VIS

Situé en plein centre de Floirac, à deux pas de la mairie, des commerces et de toutes les commodités, cet appartement de 112 m² à rénover offre un énorme potentiel pour un investissement locatif ou un premier achat en résidence principale.

L'appartement bénéficie d'une grande luminosité, grâce à ses larges ouvertures donnant sur une immense terrasse de 90 m² sans vis-à-vis, un véritable atout pour profiter d'un extérieur en toute tranquillité.

Avec ses volumes généreux et ses nombreuses possibilités d'aménagement, ce bien est une opportunité rare pour créer un espace de vie unique, à votre image.

L'appartement bénéficie également d'une place de parking couverte et sécurisée.

À VENDRE – APPARTEMENT 112 m² À RÉNOVER – FLOIRAC CENTRE – TERRASSE 90 M² SANS VIS-À-VIS



Honoraires à la charge du vendeur. Dans une copropriété de 6 lots. Aucune procédure n'est en cours. Classe énergie F, Classe climat C Logement à consommation énergétique excessive. Montant estimé des dépenses annuelles d'énergie pour un usage standard : entre 2970.00 € et 4060.00 € sur les années 2021, 2022 et 2023 (abonnements compris). Les informations sur les risques auxquels ce bien est exposé sont disponibles sur le site Géorisques : georisques.gouv.fr.

Votre conseiller RH Patrimoine : Marc VEYRET
Agent commercial (Entreprise individuelle)
Voir plus

Référence: VA2901-RHPATRI
Bien en copropriété. Nombre de lots : 6.
Honoraires à la charge du vendeur.
Barème des honoraires
DPE
A
B
C
D
E
F
G
GES
A
B
C
D
E
F
G

Prêt immobilier

Vous souhaitez connaître votre capacité d’emprunt et trouver le meilleur crédit immobilier ?
Réaliser une simulation gratuite

Appartement à FLOIRAC
Appartement à FLOIRAC
Appartement à FLOIRAC
Appartement à FLOIRAC
Appartement à FLOIRAC
Appartement à FLOIRAC
Appartement à FLOIRAC
Appartement à FLOIRAC
Ce site est protégé par reCAPTCHA la Politique de confidentialité et les Conditions d’utilisation de Google s’appliquent.
Obtenir un prêt immobilier au meilleur taux ?

En poursuivant votre navigation sans modifier vos paramètres, vous acceptez l'utilisation de cookies susceptibles de réaliser des statistiques de visite. Cliquez ici pour plus d'informations