Appartement

— Suresnes 92150 —
419 000 €
42 m²
2 pièces
balcon/terrasseascenseur

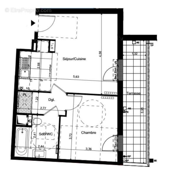
Rosso Immobilier vous invite à découvrir votre appartement de 46.57m² au sein d'une belle résidence à SURESNES. Livraison prévue au T1 20 26. Se composant d'un séjour avec accès à une terrasse de plus de 9m², cuisine américaine, dégagement avec rangement, SdB/wc et une chambre avec accès à la terrasse. POINTS FORTS: - Entouré d'espaces verts - Chauffage urbain alliant efficacité et économie énergétique - Parking inclus pour plus de commodité - Micro Crèche dans au rez de chaussé d'un des bâtiments de la résidence - Finitions haut de gamme avec des matériaux nobles, alliant esthétique et durabilité, pour un confort de vie quotidien. Un cadre de vie privilégié : Situé dans un environnement exceptionnel, cette résidence conçue pour votre confort, à proximité immédiate des commerces, des transports en commun, 3500m² d'espaces verts, vous offrant ainsi un cadre de vie agréable et pratique. D'autres lots T2 encore disponibles sur demande Surface CARREZ : 42.79 m² Bien soumis au statut juridique de la Copropriété. Pas de procédure en cours. Prix de vente 419 000 € Prix TTC et Honoraires à charge vendeur TTC Pour visiter et vous accompagner dans votre projet, contactez Imane ROSSO [Coordonnées masquées] Prix TTC et Honoraires à charge vendeur TTC Prix de vente 419 000 € Selon l'article L.561.5 du Code Monétaire et Financier, pour l'organisation de la visite, la présentation d'une pièce d'identité vous sera demandée. Les informations sur les risques auxquels ce bien est exposé sont disponibles sur le site Géorisques : www.georisques.gouv.fr Cette présente annonce a été rédigée sous la responsabilité éditoriale de Imane ROSSO agissant sous le statut d'agent commercial immatriculé au Ville du greffe : NANTERRE sous le numéro RSAC N° 819 908 773 auprès de la SAS IMMO RESEAU au capital de 10 000€ - Réseau national immobilier sur internet, 44 Allée des Cinq Continents - 44120 VERTOU - RNE NANTES 519 718 886. Carte professionnelle T et G n° CPI 30[Coordonnées masquées]24 971 CCI de Nantes-Saint-Nazaire (44) ; Garantie par GALIAN – 89 rue de la Boétie - 75008 Paris N°171379G pour 120 000€ pour T. Assurance responsabilité civile professionnelle par GALIAN n° de police 120 137 405 (réf. 32835) - Le professionnel garantit et sécurise votre projet immobilier Bien soumis au statut juridique de la Copropriété. Pas de procédure en cours. Prix de vente 419 000 € Prix TTC et Honoraires à charge vendeur TTC
Voir plus

Référence: 3011437598
Bien en copropriété.
Honoraires à la charge du vendeur.

Prêt immobilier

Vous souhaitez connaître votre capacité d’emprunt et trouver le meilleur crédit immobilier ?
Réaliser une simulation gratuite

Appartement à SURESNES
Appartement à SURESNES
Appartement à SURESNES
Ce site est protégé par reCAPTCHA la Politique de confidentialité et les Conditions d’utilisation de Google s’appliquent.
Obtenir un prêt immobilier au meilleur taux ?

En poursuivant votre navigation sans modifier vos paramètres, vous acceptez l'utilisation de cookies susceptibles de réaliser des statistiques de visite. Cliquez ici pour plus d'informations