Bénéficiez des services de nos partenaires locaux soigneusement sélectionnés
pour vous accompagner dans votre parcours d'achat immobilier

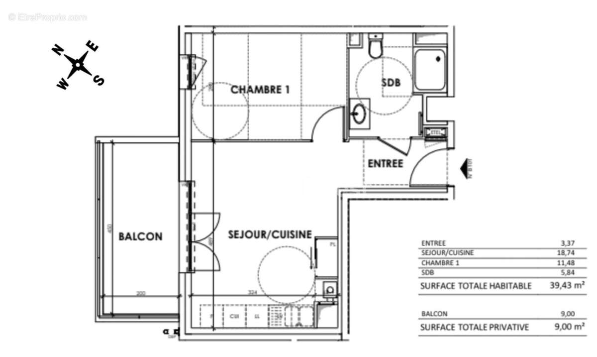
Appartement 39m² à le pont-de-beauvoisin

— Le Pont-De-Beauvoisin 38480 —
158 400 €
39 m²
2 pièces
parkingbalcon/terrasseascenseur

Nos partenaires locaux
Notre agence de Bourgoin Jallieu vous propose ce ravissant appartement sans travaux, situé à Pont de Beauvoisin : une occasion unique d'acquérir un logement sans aucun besoin de rénovation !

Ce généreux T2 de 39m2 s'inscrit harmonieusement dans un quartier résidentiel de qualité.
Il offre un espace séjour/cuisine lumineux ainsi qu'un balcon orienté nord-ouest, idéal pour des moments de détente en plein air.

Conforme à la réglementation thermique RT2012 -20%, garantissant un confort optimal tout en diminuant les dépenses énergétiques.

Que vous recherchiez une résidence principale ou un investissement locatif, cette propriété présente de multiples avantages :
- Frais de notaire réduits
- Classe énergétique : B (consommation énergétique faible)
- Éligible au Prêt à Taux Zéro (sous conditions)
- Garanties incluses

Pour de plus amples renseignements sur cet appartement à vendre, n'hésitez pas à nous contacter.

Veuillez noter que les images utilisées illustrent un exemple d'aménagement.

Classe énergie B, Classe climat B Montant moyen estimé des dépenses annuelles d'énergie pour un usage standard, établi à partir des prix de l'énergie de l'année 2020 : entre 300.00 et 400.00 €. Les informations sur les risques auxquels ce bien est exposé sont disponibles sur le site Géorisques : georisques.gouv.fr.

Votre conseiller Mazaline Immo : Directrice d'Agence - Catherine Giroud
Carte T CPI38[Coordonnées masquées]00003
Voir plus

Référence: VA11139
Honoraires à la charge de l'acquéreur.
Barème des honoraires
DPE
A
B
C
D
E
F
G
GES
A
B
C
D
E
F
G

Prêt immobilier

Vous souhaitez connaître votre capacité d’emprunt et trouver le meilleur crédit immobilier ?
Réaliser une simulation gratuite

Appartement à LE PONT-DE-BEAUVOISIN
Appartement à LE PONT-DE-BEAUVOISIN
Appartement à LE PONT-DE-BEAUVOISIN
Ce site est protégé par reCAPTCHA la Politique de confidentialité et les Conditions d’utilisation de Google s’appliquent.
Obtenir un prêt immobilier au meilleur taux ?

En poursuivant votre navigation sans modifier vos paramètres, vous acceptez l'utilisation de cookies susceptibles de réaliser des statistiques de visite. Cliquez ici pour plus d'informations