Bénéficiez des services de nos partenaires locaux soigneusement sélectionnés
pour vous accompagner dans votre parcours d'achat immobilier

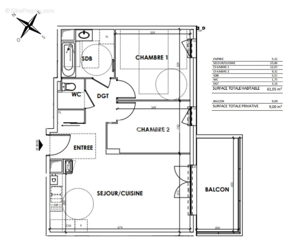
Appartement 61m² à le pont-de-beauvoisin

— Le Pont-De-Beauvoisin 38480 —
208 400 €
61 m²
3 pièces
parkingascenseur

Nos partenaires locaux
Notre agence à Bourgoin Jallieu vous offre l'opportunité d'acquérir cet adorable appartement à Pont de Beauvoisin, sans nécessité de travaux : une chance unique d'obtenir une résidence sans rénovation !

Ce spacieux T3 de 61,05 m2 s'intègre parfaitement dans un quartier résidentiel de qualité. Il propose un séjour/cuisine lumineux ainsi qu'un balcon orienté sud-est, idéal pour profiter de moments de détente en plein air.

De plus, dans une démarche écologique, il répond aux normes thermiques RT2012 -20%, assurant un confort optimal tout en réduisant les dépenses énergétiques.

Que vous cherchiez une résidence principale ou un investissement locatif, cette propriété offre de nombreux avantages :
- Frais de notaire réduits
- Classe énergétique : B (faible consommation d'énergie)
- Éligible au Prêt à Taux Zéro (sous conditions)
- Garanties incluses

Pour plus d'informations sur cette vente d'appartement, n'hésitez pas à contacter nos conseillers.

Veuillez noter que les images utilisées illustrent un exemple d'aménagement.

Honoraires à la charge du vendeur. Classe énergie B, Classe climat B Montant moyen estimé des dépenses annuelles d'énergie pour un usage standard, établi à partir des prix de l'énergie de l'année 2020 : entre 300.00 et 400.00 €. Les informations sur les risques auxquels ce bien est exposé sont disponibles sur le site Géorisques : georisques.gouv.fr.

Votre conseiller Mazaline Immo : Directrice d'Agence - Catherine Giroud
Carte T CPI38[Coordonnées masquées]00003
Voir plus

Référence: VA11141
Honoraires à la charge du vendeur.
Barème des honoraires
DPE
A
B
C
D
E
F
G
GES
A
B
C
D
E
F
G

Prêt immobilier

Vous souhaitez connaître votre capacité d’emprunt et trouver le meilleur crédit immobilier ?
Réaliser une simulation gratuite

Appartement à LE PONT-DE-BEAUVOISIN
Appartement à LE PONT-DE-BEAUVOISIN
Appartement à LE PONT-DE-BEAUVOISIN
Appartement à LE PONT-DE-BEAUVOISIN
Ce site est protégé par reCAPTCHA la Politique de confidentialité et les Conditions d’utilisation de Google s’appliquent.
Obtenir un prêt immobilier au meilleur taux ?

En poursuivant votre navigation sans modifier vos paramètres, vous acceptez l'utilisation de cookies susceptibles de réaliser des statistiques de visite. Cliquez ici pour plus d'informations