Appartement

— Pontoise 95300 —
220 000 €
90 m²
4 pièces
parkingbalcon/terrasseascenseur

95300 PONTOISE- APPARTEMENT F3/F4-90,5m²- LUMINEUX ET FONCTIONNEL-
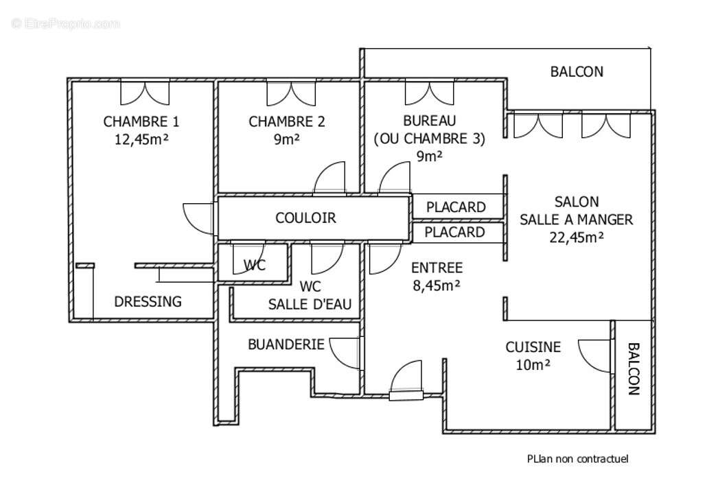
Efficity, l'agence qui estime votre bien en ligne, vous propose ce bel appartement situé au 4ème étage d'une résidence très bien ENTRETENUE et SECURISEE, AVEC 2 ASCENCEURS.

Il se compose d'une belle entrée avec placards, largement ouverte sur un séjour et sur une cuisine équipée. Cette dernière, donne accès à un 1er BALCON.
Le SEJOUR de plus de 22m², vous permettra d'accéder à un 2ème BALCON avec VUE DEGAGEE. Une pièce attenante de 9m² peut servir, selon vos besoins, de salon, ou de bureau ou encore de 3ème chambre.
Dans le coin nuit, vous trouverez 2 CHAMBRES, dont une avec DRESSING, une SALLE D'EAU avec WC et des WC séparés.

A tout cela s'ajoute une BUANDERIE, UNE CAVE et UNE PLACE DE STATIONNEMENT dans le parking de la résidence.

A proximité des COMMERCES et de L'HOPITAL
En bas de la résidence, arrêt de BUS qui vous amène en 15 minutes à la gare
A 6 minutes en voiture de la GARE DE PONTOISE
Ne laissez pas passer cette opportunité, contactez dès maintenant contacter Catherine BLOUIN au [Coordonnées masquées]."afin d'organiser une visite et découvrir ce bel appartement à Pontoise.
Les informations sur les risques auxquels ce bien est exposé sont disponibles sur le site Georisque : georisques. gouv. fr
Catherine Blouin - EI - est Agent Commercial mandataire en immobilier, immatriculé au Registre Spécial des Agents Commerciaux du Tribunal de Commerce de Pontoise sous le n°852432491.
Siège social du mandant : effiCity, 48 avenue de Villiers - 75017 PARIS - Société par Actions Simplifiée, société au capital de 132 373,05 euros, immatriculée au RCS Paris 497 617 746 et titulaire de la Carte professionnelle CPI 75[Coordonnées masquées]02 025 - CCI Paris IDF - Caisse de Garantie : GALIAN Assurances 89 rue de la Boétie 75008 Paris
Voir plus

Référence: 165966
Bien en copropriété. Nombre de lots : 592. Charges de copropriété : 12 €.
Honoraires d'agence de 4.76% à la charge de l'acquéreur
Barème des honoraires
DPE
A
B
C
D
E
F
G
GES
A
B
C
D
E
F
G

Prêt immobilier

Vous souhaitez connaître votre capacité d’emprunt et trouver le meilleur crédit immobilier ?
Réaliser une simulation gratuite

Appartement à PONTOISE
Appartement à PONTOISE
Appartement à PONTOISE
Appartement à PONTOISE
Appartement à PONTOISE
Appartement à PONTOISE
Appartement à PONTOISE
Appartement à PONTOISE
Appartement à PONTOISE
Appartement à PONTOISE
Appartement à PONTOISE
Appartement à PONTOISE
Appartement à PONTOISE
Appartement à PONTOISE
Ce site est protégé par reCAPTCHA la Politique de confidentialité et les Conditions d’utilisation de Google s’appliquent.
Obtenir un prêt immobilier au meilleur taux ?

En poursuivant votre navigation sans modifier vos paramètres, vous acceptez l'utilisation de cookies susceptibles de réaliser des statistiques de visite. Cliquez ici pour plus d'informations