Appartement t3 neuf a esey

— Reignier 74930 —
399 000 €
65 m²
3 pièces
parkingbalcon/terrasse

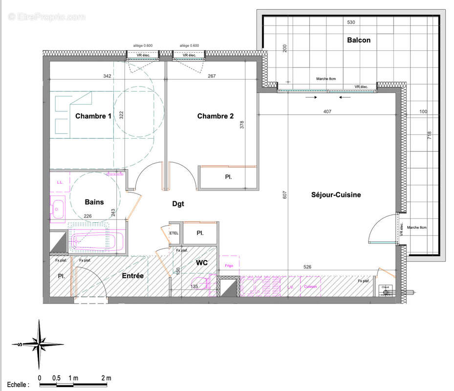
NG IMMO vous fait découvrir cet appartement de type 3 au 1er étage de la nouvelle résidence 'Grand Horizon' à Esery ! Niché dans un environnement paisible avec une vue panoramique sur les montagnes, cet appartement de prestige offre une harmonie parfaite entre modernité et nature avec ses matériaux naturels.
Composé d'un hall d'entré avec deux placards de rangement, une cuisine ouverte sur l'espace séjour avec double accès à la terrasse offrant une belle luminosité. Deux chambre, une salle de bain et un toilette séparé.
Une cave et un parking en sous-sol complètent ce bien.
A seulement 2 pas de l'école maternelle et primaire, proche de toutes commodités.
Livraison prévue au 2ème trimestre 2026 - réservez dès aujourd'hui votre place dans ce joyau architectural d'Esery.
Voir plus

Bien en copropriété. Nombre de lots : 20.
Barème des honoraires

Prêt immobilier

Vous souhaitez connaître votre capacité d’emprunt et trouver le meilleur crédit immobilier ?
Réaliser une simulation gratuite

Appartement à REIGNIER
Appartement à REIGNIER
Appartement à REIGNIER
Ce site est protégé par reCAPTCHA la Politique de confidentialité et les Conditions d’utilisation de Google s’appliquent.
Obtenir un prêt immobilier au meilleur taux ?

En poursuivant votre navigation sans modifier vos paramètres, vous acceptez l'utilisation de cookies susceptibles de réaliser des statistiques de visite. Cliquez ici pour plus d'informations