Terrains constructibles

— Saint-Quay-Portrieux 22410 —
194 120 €
800 m²

Commune de SAINT-QUAY PORTRIEUX
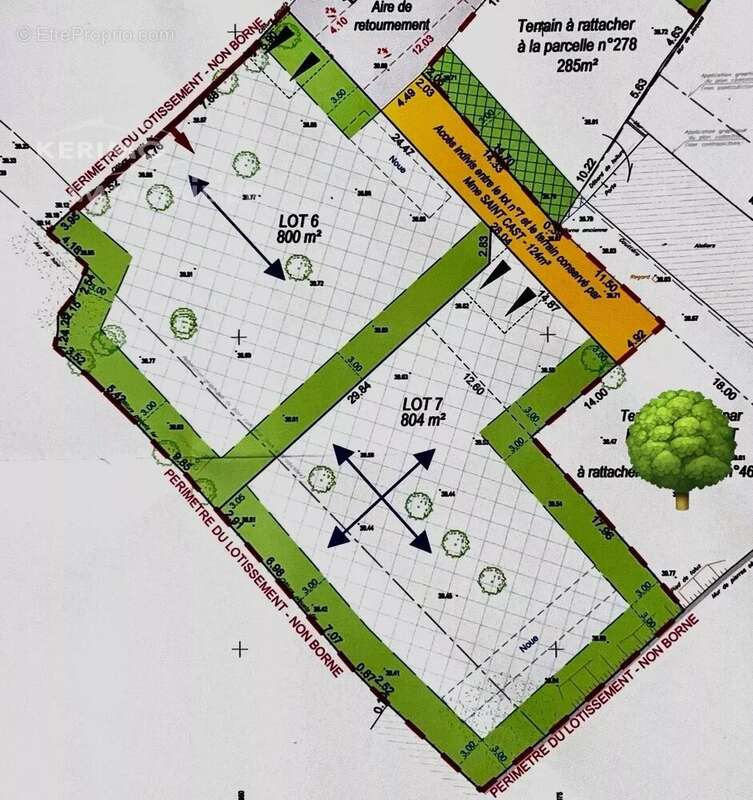
2 LOTS.. CONSTRUCTIBLES BORNES ET VIABILISES

Dans petit lotissement privatif :

Lot Numéro 6 de 800 m² 194 120 euros FAI

Lot Numéro 7 de 804 m² avec accès indivis. 200 120 euros FAI

Référence: 1192
Barème des honoraires

Prêt immobilier

Vous souhaitez connaître votre capacité d’emprunt et trouver le meilleur crédit immobilier ?
Réaliser une simulation gratuite

Terrain à SAINT-QUAY-PORTRIEUX
Terrain à SAINT-QUAY-PORTRIEUX
Ce site est protégé par reCAPTCHA la Politique de confidentialité et les Conditions d’utilisation de Google s’appliquent.
Obtenir un prêt immobilier au meilleur taux ?

En poursuivant votre navigation sans modifier vos paramètres, vous acceptez l'utilisation de cookies susceptibles de réaliser des statistiques de visite. Cliquez ici pour plus d'informations