Bénéficiez des services de nos partenaires locaux soigneusement sélectionnés
pour vous accompagner dans votre parcours d'achat immobilier

Maison 101m² à beziers

— Beziers 34500 —
335 000 €
101 m² / 339 m²
4 pièces
parkingjardin

Nos partenaires locaux
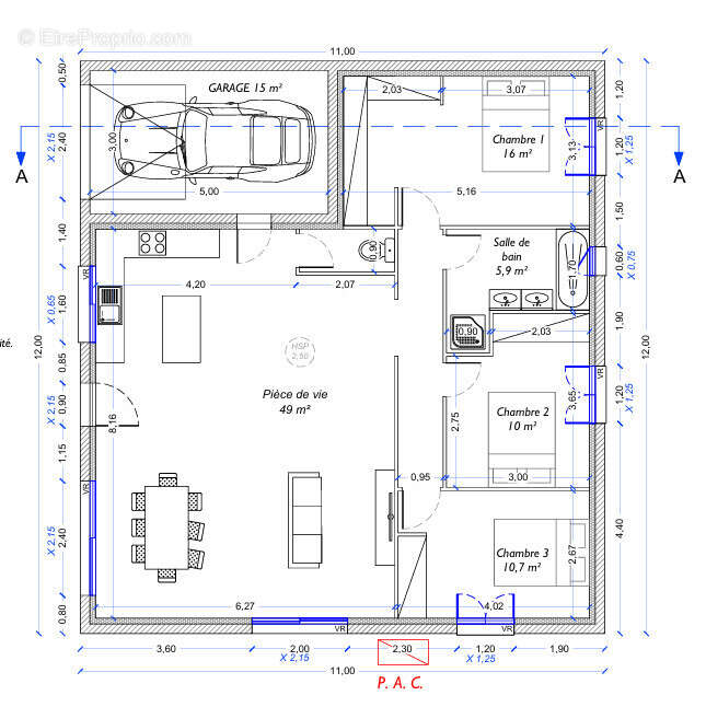
A découvrir rapidement, cette villa de 101 m2 habitable de plain-pied, située dans un nouveau quartier agréable et calme de Beziers.


La maison est en cours de construction. Elle sera livrée finie.


La superficie de la parcelle est de 339 m2.


Elle se composera ainsi:

une vaste pièce séjour / salle à manger / cuisine de 49 m2 donnant sur terrasse et jardin côté Sud, un wc séparé, trois chambres, et une salle d'eau et de bain.


Un garage de 15 m2 ainsi qu'un stationnement extérieur complèteront le bien.


Cette villa sera aux normes RE2020, équipée d'une climatisation gainable réversible, d'un ballon thermodynamique, d'une porte de garage automatique,...


Elle bénéficie d'une belle exposition et n'est mitoyenne que sur une face (côté garage).


La cuisine et les aménagements de placards sont à prévoir en supplément.


*FRAIS DE NOTAIRE REDUITS


Les informations sur les risques auxquels ce bien est exposé sont disponibles sur le site Géorisques : www.georisques.gouv.fr
Voir plus

Référence: s121
Honoraires à la charge du vendeur.
Barème des honoraires
DPE
A
B
C
D
E
F
G
GES
A
B
C
D
E
F
G

Prêt immobilier

Vous souhaitez connaître votre capacité d’emprunt et trouver le meilleur crédit immobilier ?
Réaliser une simulation gratuite

Maison à BEZIERS
Maison à BEZIERS
Maison à BEZIERS
Maison à BEZIERS
Ce site est protégé par reCAPTCHA la Politique de confidentialité et les Conditions d’utilisation de Google s’appliquent.
Obtenir un prêt immobilier au meilleur taux ?

En poursuivant votre navigation sans modifier vos paramètres, vous acceptez l'utilisation de cookies susceptibles de réaliser des statistiques de visite. Cliquez ici pour plus d'informations