Bénéficiez des services de nos partenaires locaux soigneusement sélectionnés
pour vous accompagner dans votre parcours d'achat immobilier

Appartement 73m² à avon

— Avon 77210 —
273 000 €
73 m²
4 pièces
balcon/terrasse

Nos partenaires locaux
Appartement 4 pièces avec terrasse – Résidence calme – Avon (77210)
2ᵉ étage – Sans vis-à-vis – Proche forêt & Fontainebleau

Vente en exclusivité

Prix : 273 000 € FAI
(Honoraires d’agence inclus – 4,80 % à la charge de l’acquéreur)
Un emplacement recherché

Situé à Avon, dans le sud de la Seine-et-Marne, à proximité immédiate de Fontainebleau, de son château et de la forêt, cet appartement bénéficie d’un environnement paisible, au sein d’une résidence prisée, au calme et sans vis-à-vis.

Un emplacement idéal pour conjuguer qualité de vie, nature et commodités.

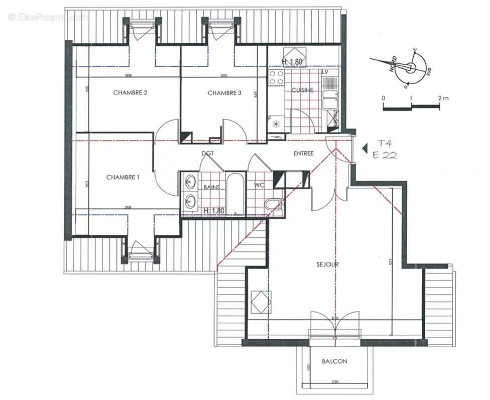
Un appartement clé en main

Implanté au 2ᵉ étage, cet appartement sans travaux à prévoir offre une surface de 73,22 m² parfaitement agencée :

Entrée

Salon / séjour lumineux, ouvrant sur une agréable terrasse exposée ouest, idéale pour profiter du soleil en fin de journée

Cuisine indépendante

Couloir desservant l’espace nuit

Trois chambres, toutes équipées de penderies intégrées

Salle de bains

WC indépendant

Annexes

Une place de parking en sous-sol, fermée et sécurisée

Informations complémentaires

Charges de copropriété (appartement + parking) : 523 € / trimestre

Taxe foncière : 1 350 €

Aucune procédure en cours

Performances énergétiques

DPE : classe C (142 kWh/m²/an)

GES : classe C (29 kg CO₂/m²/an)

Estimation des coûts annuels d’énergie : entre 820 € et 1 150 €

Les informations sur les risques auxquels ce bien est exposé sont disponibles sur :
https://georisques.gouv.fr

Les atouts du bien

Résidence calme et recherchée
Sans vis-à-vis
Terrasse exposée ouest
3 chambres
Aucun travaux à prévoir
Parking sécurisé en sous-sol
Vente en exclusivité

À visiter sans tarder

Un appartement idéal pour une famille, un premier achat, ou un investissement sécurisé, dans l’un des secteurs les plus appréciés d’Avon.

Mandataire immobilier
Greffe de Melun – RSAC 531 741 544
Voir plus

Référence: 85653759
Barème des honoraires
DPE
A
B
C
D
E
F
G
GES
A
B
C
D
E
F
G

Prêt immobilier

Vous souhaitez connaître votre capacité d’emprunt et trouver le meilleur crédit immobilier ?
Réaliser une simulation gratuite

Appartement à AVON
Appartement à AVON
Appartement à AVON
Appartement à AVON
Appartement à AVON
Appartement à AVON
Appartement à AVON
Appartement à AVON
Appartement à AVON
Appartement à AVON
Ce site est protégé par reCAPTCHA la Politique de confidentialité et les Conditions d’utilisation de Google s’appliquent.
Obtenir un prêt immobilier au meilleur taux ?

En poursuivant votre navigation sans modifier vos paramètres, vous acceptez l'utilisation de cookies susceptibles de réaliser des statistiques de visite. Cliquez ici pour plus d'informations