Appartement

— Vars 05560 —
742 000 €
91 m²
4 pièces
parkingbalcon/terrasseascenseur

Les CHALETS DE L'OR BLANC situés à VARS (Hautes Alpes), situation qui en fait une station appartenant à un domaine skiable le plus attractif de toute La Forêt Blanche. Ce programme est très bien si situé à seulement 3 heures de Grenoble, 30 minutes en voiture de l'aérodrome de Saint-Crépin et 4 h de l'aéroport de Marseille-Provence, les premiers commerces sont accessibles à pied. Ce village qui bénéficie d'un ensoleillement exceptionnel séduira les contemplatifs et les amoureux de particularités architecturales du bâti ancien. Skis aux pieds et accès direct aux pistes

Parlons un peu de la station ! :
Vars les Claux appartient au domaine skiable de Vars/Risoul : La Forêt Blanche, qui fait partie des dix domaines skiables les plus hauts de France. Cet exceptionnel domaine skiable de Vars/Risoul c'est 185 km de pistes de ski ainsi que 36 remontées mécaniques. Une station dynamique avec des activités adaptées à toute la famille l'hiver comme l'été : sentiers de randonnées, sentiers d'interprétation, luge sur rail, accrobranche, escalade, VTT, Kayak, la via ferrata, la canirando, quad, le parapente, piscineou encore les spectacles et animations

Puis évoquons cette fabuleuse Résidence !

La Résidence bénéficie d'un emplacement privilégié au cœur de la station Vars-les-Claux. Elle est composée de 18 appartements répartis sur 3 Chalets en duplex du T3 au T6A - , des aménagements éventuellement sur les plans sont encore possibles à ce stade d'avancement des travaux. Stationnement : 18 places couvertes, locaux vélos, locaux à ski. Date de livraison : 4 T 2025
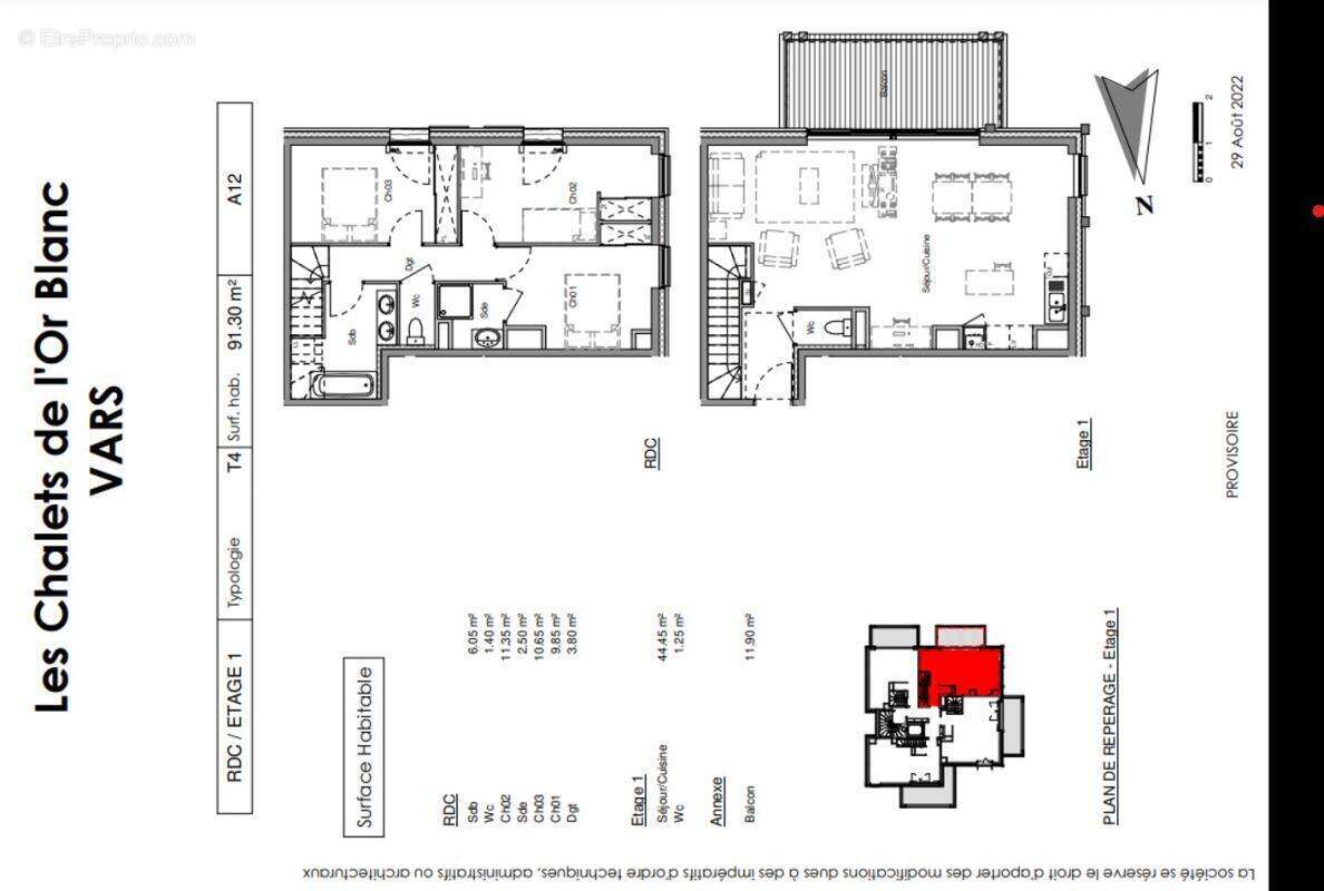
Je vous propose ce superbe T4 en Duplex d'une superficie de 91.10 m² avec terrasse de 11.90 m² . Le séjour/cuisine est de 44.45 m² donnant sur cette terrasse de 11.90 m² et balcon au 1ER étage puis au RDC les trois chambres de 11.35m², 10.65m², 9.85 m², une salle de bains de 6.05 m² et salle d'eau de 2.50 m², dégagement de 3.80m², et toilettes au 1 er et RDC.
L'orientation est en Sud.
NOTEZ que vous arrivez directement à l'appartement skis aux pieds ! Vous avez également la possibilité de vous baigner dans la superbe piscine de l'hôtel attenant.

PARA-HÔTELLERIE : CONCIERGERIE SUR PLACE / OCCUPATION LIBRE

Notre conciergerie, spécialisée dans la gestion de bien très haut de gamme en montagne, sera sur place durant les périodes d'ouverture de la station et s‘occupera pour votre compte de :
commercialiser les séjours sur les plateformes spécialisées (Booking, Airbnb, Abritel, Expédia…) mais également de négocier avec les tours opérateurs ou les comités d'entreprise pour optimiser le remplissage
Délivrance de prestations para-hotellières :
Accueil personnalisé
Ménage régulier des locaux
Fourniture de linge de lit et de toilette
Délivrance éventuelle de petit déjeuner
A noter, qu'il ne s'agit aucunement de la mise en place d'un bail mais bien d'une mandat de conciergerie, de seulement 21% sur les séjours réalisés.

Enfin, très important, vous pouvez occuper le bien comme vous le souhaitez.

FISCALITE AVANTAGEUSE

Comme vous pourrez le constater, la fiscalité sur la parahôtellerie avec prestations hôtelières est très avantageuse à bien des égards :

Récupération de la TVA soit 20% du prix de l'acquisition, en totalité dans les 6 mois suivant l'acte chez le notaire.
Pas d'impôt sur les revenus générés par la location
Amortissement du bien immo permettant de créer un déficit comptable
Pas de taxe sur la plus-value à la revente après 5 ans d'exercice
Aussi pour revenir sur le montage juridique et fiscale que nous présentons (qui n'est pas obligatoire mais que nous recommandons) , il vous faut monter une Entreprise Individuelle (ou SARL ou SAS, mais pas de SCI), en B.I.C Pro, avec comme objet social l'hébergement hotellière avec services hôteliers et que vous (avec la conciergerie) soyez en capacité de fournir au moins 3 des 4 services de manière régulière (accueil, fourniture du linge, ménage régulier, petit déjeuner) . Vous pourrez donc bénéficiez des dispositifs fiscaux suivants :

Assujettissement à la TVA
Récupération des 20% de TVA sur le bien immobilier (avec acquisition définitive d'1/20 chaque année)
Récupération de la TVA sur le pack meuble et toutes les autres charges (frais de notaire, copro, comptable, électricité, eau…)
Collecte de 10% de TVA sur les séjours facturés à vos clients
Toutes les charges sont déductibles + amortissement comptable du bien immobilier
Le prix HT du bien immobilier est amortissable sur minimum 20 ans, ce qui crée une charge (dite fictive) qui fera que votre résultat comptable sera déficitaire chaque année (sauf à louer exceptionnellement bien).
Etant donné que c'est une activité pro, toutes les charges sont déductibles : frais de notaire, copro, taxe foncière, CFE, forfait URSSAF (si montage en EI ou SARL), frais de déplacement pour vous rendre sur place pour des raisons pro, intérêt d'emprunt….
Intégration du résultat de l'activité à votre Revenu Fiscal de Référence
Comme toute activité professionnelle, vous devez intégrer le résultat (en l'occurrence le déficit) à votre RFR, ce qui baissera votre base imposable d'IR et réduira votre impôt de la tranche marginal la plus haute (40% ou 30%).
Exonération de la taxe sur la plus-value après 5ans
Comme tout commerçant qui vend son activité après 5 ans d'activité et qui fait moins de 250 000 € de Chiffre d'affaires à l'année
N'hésitez pas je vous propose cet appartement à 636.600 HT alors contactez moi !
Les informations sur les risques auxquels ce bien est exposé sont disponibles sur le site Georisque : georisques. gouv. fr
Catherine Medina - EI - est Agent Commercial mandataire en immobilier, immatriculé au Registre Spécial des Agents Commerciaux du Tribunal de Commerce de Manosque sous le n°488492091.
Siège social du mandant : effiCity, 48 avenue de Villiers - 75017 PARIS - Société par Actions Simplifiée, société au capital de 132 373,05 euros, immatriculée au RCS Paris 497 617 746 et titulaire de la Carte professionnelle CPI 75[Coordonnées masquées]02 025 - CCI Paris IDF - Caisse de Garantie : GALIAN Assurances 89 rue de la Boétie 75008 Paris
Voir plus

Référence: 147023
Bien en copropriété. Nombre de lots : 18. Charges de copropriété : 41 €.
Honoraires à la charge du vendeur.
Barème des honoraires
DPE
A
B
C
D
E
F
G
GES
A
B
C
D
E
F
G

Prêt immobilier

Vous souhaitez connaître votre capacité d’emprunt et trouver le meilleur crédit immobilier ?
Réaliser une simulation gratuite

Appartement à VARS
Appartement à VARS
Appartement à VARS
Appartement à VARS
Appartement à VARS
Appartement à VARS
Appartement à VARS
Appartement à VARS
Appartement à VARS
Appartement à VARS
Appartement à VARS
Ce site est protégé par reCAPTCHA la Politique de confidentialité et les Conditions d’utilisation de Google s’appliquent.
Obtenir un prêt immobilier au meilleur taux ?

En poursuivant votre navigation sans modifier vos paramètres, vous acceptez l'utilisation de cookies susceptibles de réaliser des statistiques de visite. Cliquez ici pour plus d'informations