Appartement 56m² à castelnau-le-lez

— Castelnau-Le-Lez 34170 —
369 800 €
57 m²
3 pièces
parkingbalcon/terrasseascenseur

Appartement T3 Neuf avec Terrasse et Jardin

Découvrez ce magnifique appartement T3 neuf disponible immédiatement, situé dans un environnement paisible et moderne. Construit en 2025, cet appartement de presque 60 m² offre un cadre de vie exceptionnel, idéal pour ceux qui recherchent un équilibre parfait entre confort et modernité.

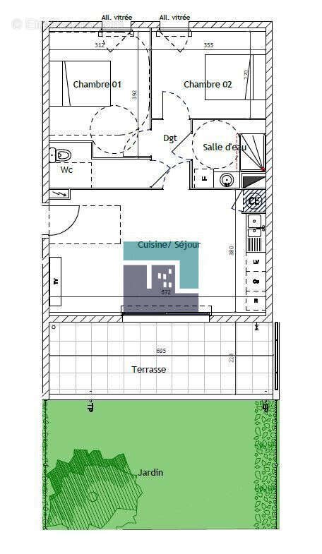
L'appartement se compose de trois pièces spacieuses, dont deux chambres confortables et une salle de séjour lumineuse de 25 m². Chaque espace a été conçu avec soin pour maximiser l'utilisation de l'espace et offrir une ambiance chaleureuse et accueillante. L'état intérieur est impeccable, avec des finitions de haute qualité qui ajoutent une touche de sophistication à chaque pièce.

La terrasse de 17 m² est un véritable havre de paix, parfaite pour profiter des beaux jours en toute tranquillité. Imaginez-vous savourer un café matinal ou un dîner en plein air, entouré de la verdure du jardin privatif de 30 m². Cet espace extérieur est idéal pour les amateurs de jardinage ou simplement pour se détendre en plein air.

L'appartement est également équipé d'un ascenseur pour un accès facile à tous les étages, et d'un stationnement extérieur pour votre véhicule. Les commodités intérieures comprennent une salle d'eau moderne et des WC indépendants, offrant un confort optimal pour toute la famille.

Cet appartement est situé dans un quartier dynamique, à proximité de plusieurs commodités essentielles. À seulement 5 minutes à pied, vous trouverez un bus et un médecin généraliste, ainsi que plusieurs restaurants pour satisfaire toutes vos envies culinaires. À 10 minutes à pied, vous aurez accès à plusieurs commerces de proximité, dont des supermarchés, des écoles maternelles, des collèges, des parcs et jardins, et des tramways pour vos déplacements rapides et pratiques.

Ne manquez pas cette opportunité unique de vivre dans un environnement moderne et confortable, où chaque détail a été pensé pour votre bien-être. Contactez-nous dès aujourd'hui pour organiser une visite et découvrir par vous-même tout le charme de cet appartement exceptionnel.

Dans une copropriété de 7 lots. Aucune procédure n'est en cours. Non soumis au DPE. Les informations sur les risques auxquels ce bien est exposé sont disponibles sur le site Géorisques : georisques.gouv.fr.
.
Les informations sur les risques auxquels ce bien est exposé sont disponibles sur le site Géorisques : www.georisques.gouv.fr.

Agence immobilière LEBRAY & FINNE – SIREN 934 151 846 – CPI 34[Coordonnées masquées]00009
Voir plus

Référence: 22-LEFIMM
Bien en copropriété. Nombre de lots : 7.
Honoraires à la charge de l'acquéreur.
Barème des honoraires

Prêt immobilier

Vous souhaitez connaître votre capacité d’emprunt et trouver le meilleur crédit immobilier ?
Réaliser une simulation gratuite

Appartement à CASTELNAU-LE-LEZ
Appartement à CASTELNAU-LE-LEZ
Appartement à CASTELNAU-LE-LEZ
Appartement à CASTELNAU-LE-LEZ
Appartement à CASTELNAU-LE-LEZ
Appartement à CASTELNAU-LE-LEZ
Ce site est protégé par reCAPTCHA la Politique de confidentialité et les Conditions d’utilisation de Google s’appliquent.
Obtenir un prêt immobilier au meilleur taux ?

En poursuivant votre navigation sans modifier vos paramètres, vous acceptez l'utilisation de cookies susceptibles de réaliser des statistiques de visite. Cliquez ici pour plus d'informations