Bénéficiez des services de nos partenaires locaux soigneusement sélectionnés
pour vous accompagner dans votre parcours d'achat immobilier

Appartement 113m² à paris-15e

— Paris-15e 75015 —
850 000 €
113 m²
5 pièces
parkingbalcon/terrasse

Nos partenaires locaux
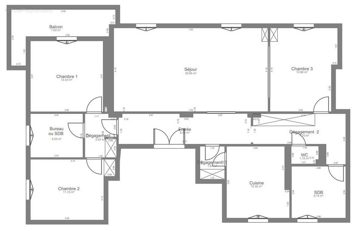
Métro Porte de Versailles. 5 Pièces 113 m2 + balcon 8 m2 exposé sud, avec superbe vue dégagée. 7ème étage avec ascenseur d'une petite copropriété de bon standing datant des années 1950. Entrée, double séjour 31 m2, 3 chambres (12.9 m2, 12.3 m2, 11 m2), bureau (pouvant être transformé en 2ème sdb), grande cuisine aménagée, salle de bains, 2 wc, nombreux placards. Balcon sans vis à vis. Cave en sous sol. Possibilité d'acquérir en sus un double parking situé à proximité. Immeuble bien entretenu (le ravalement est voté / payé), appartement à rafraîchir. Chauffage collectif gaz par radiateurs, charges de 453 € / mois. DPE Classe E. Florent BERNARD IETUDE S. MAYORKAS Conseil Immobilier depuis 1984 176 rue de la Convention 75015 Paris Tel : [Coordonnées masquées]. Email : [Coordonnées masquées]
Voir plus

Barème des honoraires
DPE
A
B
C
D
E
F
G
GES
A
B
C
D
E
F
G

Prêt immobilier

Vous souhaitez connaître votre capacité d’emprunt et trouver le meilleur crédit immobilier ?
Réaliser une simulation gratuite

Appartement à PARIS-15E
Appartement à PARIS-15E
Appartement à PARIS-15E
Appartement à PARIS-15E
Appartement à PARIS-15E
Appartement à PARIS-15E
Appartement à PARIS-15E
Appartement à PARIS-15E
Appartement à PARIS-15E
Appartement à PARIS-15E
Ce site est protégé par reCAPTCHA la Politique de confidentialité et les Conditions d’utilisation de Google s’appliquent.
Obtenir un prêt immobilier au meilleur taux ?

En poursuivant votre navigation sans modifier vos paramètres, vous acceptez l'utilisation de cookies susceptibles de réaliser des statistiques de visite. Cliquez ici pour plus d'informations