Maison 170m², de type t6, centre ville, garage et jardin

— Cazaubon 32150 —
64 990 €
170 m²
6 pièces

Opportunité unique.
Au cœur de Cazaubon, village thermal et son centre historique je vous présente cette maison d'environ 170m², avec des travaux.
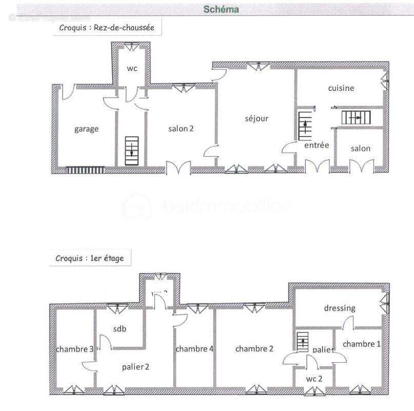
La maison est composée d'une grande entrée donnant sur le salon de près de 35m², sol en béton et cheminée. Arrière salon de 20m² environ.
Vous profiterez d'une mezzanine de plus de 60m².
Le garage - chaufferie de 19m².
À l'étage deux grandes chambres lumineuses de près de 12m², avec une hauteur sous plafond de 2.9m, une grande salle de bain et WC séparés.

Un jardin de 200m² vient compléter l'ensemble.

Maison idéale pour des primo accédants, pour rénover votre maison à votre goût et avoir en pied à terre ou pour faire du locatif grâce a ses vastes espaces.

Contactez moi vite pour organiser une visite [Coordonnées masquées] [Coordonnées masquées]

Cette annonce référence 275314 vous est présentée par votre agent commercial BSK Immobilier LEIDY MARTINEZ ORTIZ (EI) immatriculé au RSAC de AUCH (32000) sous le numéro 89166604200017.

Prix du bien : 64 990,00 €
Les honoraires d'agence sont à la charge du vendeur.

Non soumis au DPE.

Les informations sur les risques auxquels ce bien est exposé sont disponibles sur le site Géorisques : www.georisques.gouv.fr
Voir plus

Référence: 275314
Honoraires à la charge du vendeur.

Prêt immobilier

Vous souhaitez connaître votre capacité d’emprunt et trouver le meilleur crédit immobilier ?
Réaliser une simulation gratuite

Maison à CAZAUBON
Maison à CAZAUBON
Maison à CAZAUBON
Maison à CAZAUBON
Maison à CAZAUBON
Maison à CAZAUBON
Maison à CAZAUBON
Ce site est protégé par reCAPTCHA la Politique de confidentialité et les Conditions d’utilisation de Google s’appliquent.
Obtenir un prêt immobilier au meilleur taux ?

En poursuivant votre navigation sans modifier vos paramètres, vous acceptez l'utilisation de cookies susceptibles de réaliser des statistiques de visite. Cliquez ici pour plus d'informations