Bénéficiez des services de nos partenaires locaux soigneusement sélectionnés
pour vous accompagner dans votre parcours d'achat immobilier

A vendre 4 pièces cimiez

— Nice 06000 —
650 000 €
77 m²
4 pièces
balcon/terrasseascenseur

Nos partenaires locaux
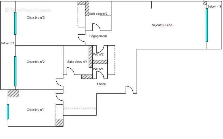
VENTE APPARTEMENT CIMIEZ NICE

Entièrement refait à neuf, ce spacieux appartement de 4 pièces traversant et baigné de lumière se situe au 4ème étage, offrant une magnifique vue mer, à deux pas du Regina.

L'appartement comprend un séjour lumineux avec cuisine ouverte entièrement équipée, s'ouvrant sur une terrasse exposée sud. Il dispose également de trois chambres, dont deux accès à un balcon, ainsi que deux salles de bains et deux WC indépendants. De nombreux rangements sur mesure complètent ce bien.


Une cave est mise à disposition avec ce bien.
Possibilité d'acquérir un garage en supplément.

Venez le visiter sans plus tarder!!
Voir plus

Référence: 85651883
Barème des honoraires
DPE
A
B
C
D
E
F
G
GES
A
B
C
D
E
F
G

Prêt immobilier

Vous souhaitez connaître votre capacité d’emprunt et trouver le meilleur crédit immobilier ?
Réaliser une simulation gratuite

Appartement à NICE
Appartement à NICE
Appartement à NICE
Appartement à NICE
Appartement à NICE
Appartement à NICE
Appartement à NICE
Appartement à NICE
Appartement à NICE
Appartement à NICE
Appartement à NICE
Appartement à NICE
Appartement à NICE
Appartement à NICE
Appartement à NICE
Ce site est protégé par reCAPTCHA la Politique de confidentialité et les Conditions d’utilisation de Google s’appliquent.
Obtenir un prêt immobilier au meilleur taux ?

En poursuivant votre navigation sans modifier vos paramètres, vous acceptez l'utilisation de cookies susceptibles de réaliser des statistiques de visite. Cliquez ici pour plus d'informations