Bénéficiez des services de nos partenaires locaux soigneusement sélectionnés
pour vous accompagner dans votre parcours d'achat immobilier

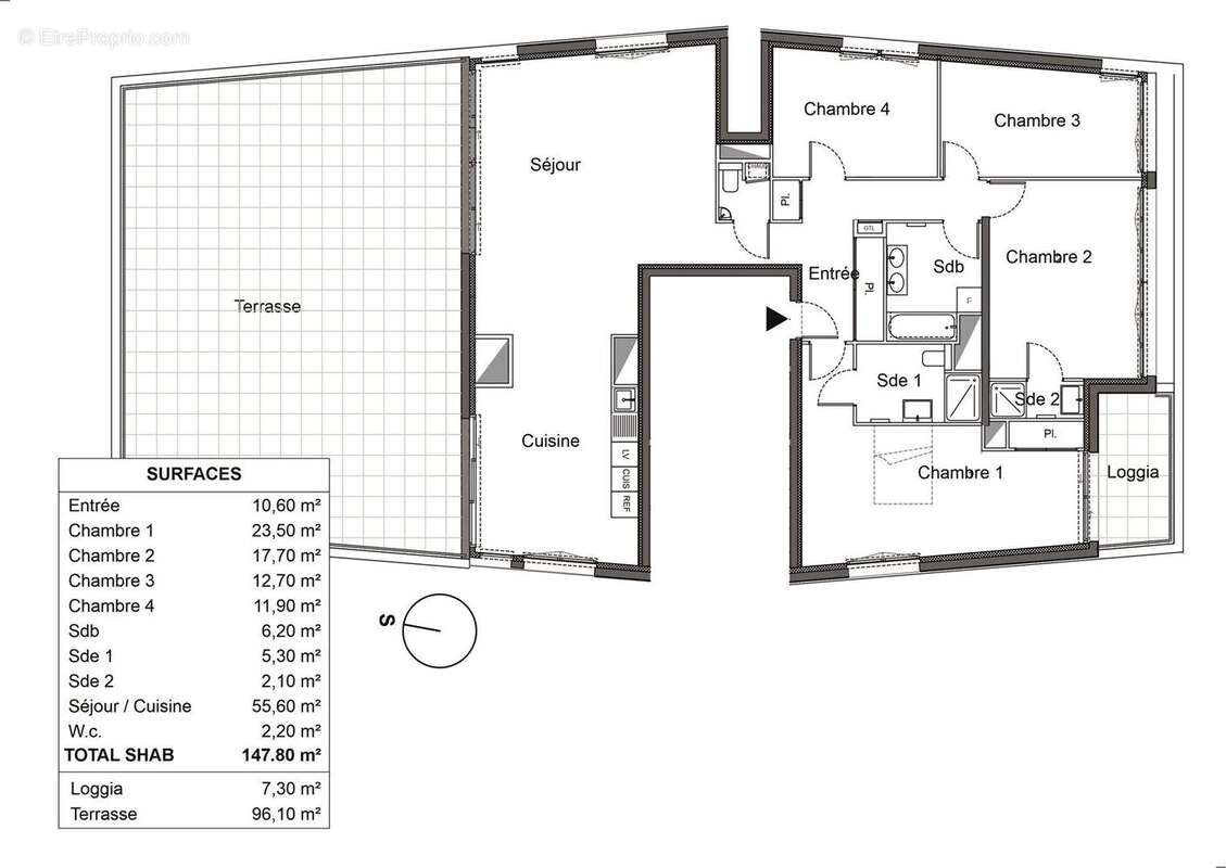
Appartement 148m² à merignac

— Merignac 33700 —
764 000 €
148 m²
5 pièces
parkingbalcon/terrasseascenseuraccès handicapé

Nos partenaires locaux
Bel appartement T5 neuf, de 148 m², ouvrant sur une terrasse au Sud de 96 m², au dernier étage d’un bâtiment de 15 logements. Il se compose d’un séjour-cuisine de 55 m², de quatre belles chambres dont deux avec salle d’eau et d’une salle de bains. Conforme à la RE2020, il est équipé d’un chauffage individuel au gaz. Il dispose de deux places de stationnement au sous-sol. Des commerces occupent le pied d’immeuble et sont nombreux dans les environs immédiats. L’arrêt du tram A en direction du centre de Bordeaux ou de l’aéroport est distant de 150 m. À moins de 800 m, nous trouvons une crèche, une école, deux collèges et un lycée. Au centre de Mérignac, un cinéma et une salle de spectacles. Charges de copropriété 220 euros, taxe foncière 1800 euros, honoraires d’agence à la charge du vendeur. Les informations sur les risques auxquels ce bien est exposé sont disponibles sur le site Géorisques : www.georisques.gouv.fr. Proposé à la vente à 799 000 euros, il sera disponible fin 2026.
Voir plus

Référence: 75
Bien en copropriété. Nombre de lots : 55. Charges de copropriété : 2640 €.
Honoraires à la charge du vendeur.
Barème des honoraires

Prêt immobilier

Vous souhaitez connaître votre capacité d’emprunt et trouver le meilleur crédit immobilier ?
Réaliser une simulation gratuite

Appartement à MERIGNAC
Appartement à MERIGNAC
Appartement à MERIGNAC
Ce site est protégé par reCAPTCHA la Politique de confidentialité et les Conditions d’utilisation de Google s’appliquent.
Obtenir un prêt immobilier au meilleur taux ?

En poursuivant votre navigation sans modifier vos paramètres, vous acceptez l'utilisation de cookies susceptibles de réaliser des statistiques de visite. Cliquez ici pour plus d'informations