Lyon 5 : maison de caractère avec vue

— Lyon-5e 69005 —
1 144 000 €
303 m² / 1 547 m²
7 pièces
jardin

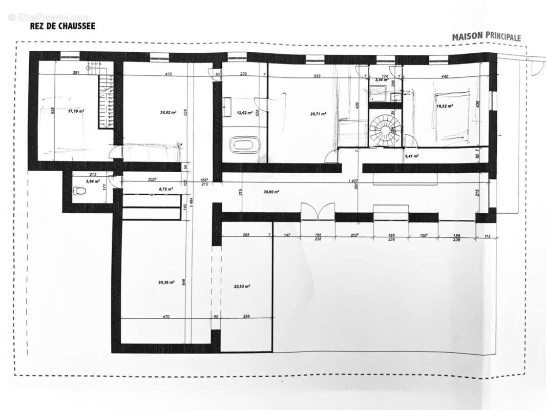
Sur une parcelle de 1.547m2, maison principale en pierres d'env. 259m2 habitables (+ 70m2 non habitables) sur plusieurs niveaux + maison annexe d'env. 44m2 habitables + garage double.

Au niveau principal (205m2), un grand salon (avec grande cheminée et véranda) et une cuisine, tous deux ouvrant sur une très grande terrasse de plain-pied, dégagement, 3 chambres, bureau, SdE, SdB et WC.

Au niveau supérieur accessible par un escalier intérieur, une 4ème chambre (16,5m2) avec point d'eau ; au dernier niveau, en forme de tour surplombant la propriété, jouissant d'une vue exceptionnelle et d'un accès indépendant, une 5ème chambre (18m2) disposant d'une douche et de WC, pouvant être transformée en studio.

Au niveau bas, se trouvent d'un côté des caves (50m2 non habitables) et de l'autre une pièce (19m2) avec accès par l'extérieur, pouvant servir à divers projets (atelier, 6ème chambre, studio, sauna...) ; ainsi qu'une pièce voutée (20m2 non habitables).


Dans un second bâtiment avec accès indépendant, annexe (44m2), aménagée en un petit appartement sur 2 niveaux avec pièce de vie et coin cuisine en haut ; SdE et WC en bas.


Dans un 3ème corps de bâtiment, grand garage pouvant accueillir 2 véhicules avec terrasse au-dessus.


Jardin arboré sur près de 1200m2, disposant d'un sentier, d'escaliers en pierres et d'une zone plane pour terrasse complémentaire. Grand portail. Vue extra-ordinaire. Charme des vieilles pierres. Puits. Chaudière à condensation récente. Travaux à prévoir, mais de nombreux projets sont possibles. Honoraires d'agence de 4% à la charge de l'Acquéreur (soit 44.000€ TTC) inclus au prix de vente de 1.144.000€ HAI. DPE en cours.


Les informations sur les risques éventuels auxquels ce bien est exposé sont disponibles sur le site Géorisques http://www.georisques.gouv.fr.


Pour toute demande de renseignement ou de visite, merci de prendre contact avec Florence KOMAROFF (RSAC 820 939 916 Lyon), de préférence par téléphone au [Coordonnées masquées] (ou selon numéro de la fiche contact), du lundi au samedi, de 8h30 à 20h30.
Voir plus

Référence: 14425
Honoraires d'agence de 4% à la charge de l'acquéreur
Barème des honoraires

Prêt immobilier

Vous souhaitez connaître votre capacité d’emprunt et trouver le meilleur crédit immobilier ?
Réaliser une simulation gratuite

Maison à LYON-5E
Maison à LYON-5E
Maison à LYON-5E
Maison à LYON-5E
Maison à LYON-5E
Maison à LYON-5E
Maison à LYON-5E
Maison à LYON-5E
Maison à LYON-5E
Maison à LYON-5E
Maison à LYON-5E
Maison à LYON-5E
Maison à LYON-5E
Maison à LYON-5E
Maison à LYON-5E
Maison à LYON-5E
Maison à LYON-5E
Maison à LYON-5E
Maison à LYON-5E
Maison à LYON-5E
Maison à LYON-5E
Maison à LYON-5E
Maison à LYON-5E
Maison à LYON-5E
Ce site est protégé par reCAPTCHA la Politique de confidentialité et les Conditions d’utilisation de Google s’appliquent.
Obtenir un prêt immobilier au meilleur taux ?

En poursuivant votre navigation sans modifier vos paramètres, vous acceptez l'utilisation de cookies susceptibles de réaliser des statistiques de visite. Cliquez ici pour plus d'informations